EasyManua.ls Logo

Nimos Micro-Trac - E Lectrical Diagram (M Achine ) E-1

Nimos Micro-Trac
27 pages
Print Icon
To Next Page IconTo Next Page
To Next Page IconTo Next Page
To Previous Page IconTo Previous Page
To Previous Page IconTo Previous Page
Loading...
Usermanual NIMOS Micro-Trac Page 19
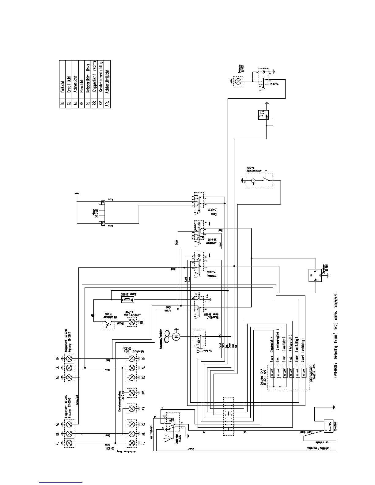
7.2 Electrical diagram (Machine) E-1