EasyManua.ls Logo

Noritz NR501-OD - Plumbing Applications; Recirculation System

Noritz NR501-OD
27 pages
Print Icon
To Next Page IconTo Next Page
To Next Page IconTo Next Page
To Previous Page IconTo Previous Page
To Previous Page IconTo Previous Page
Loading...
17
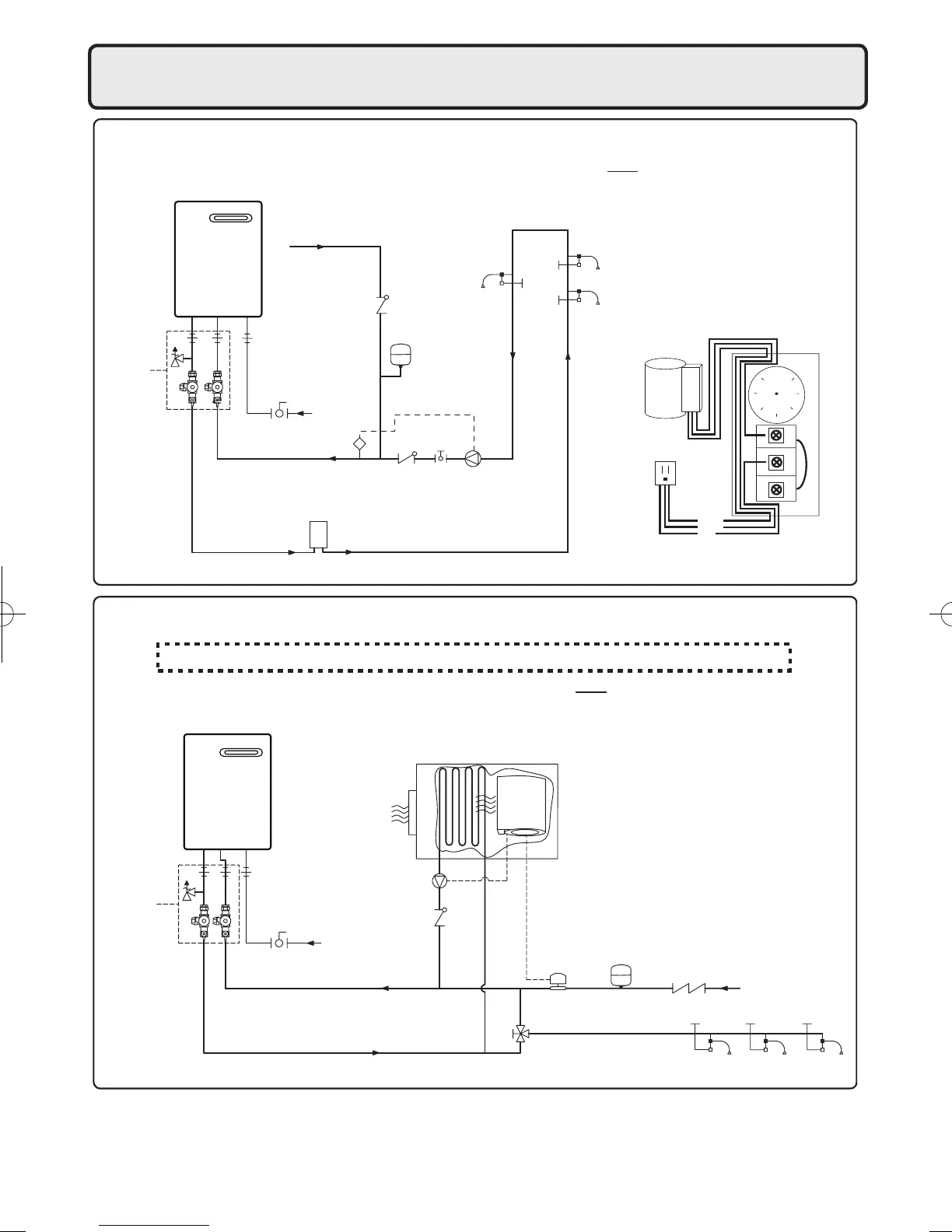
Combination Potable Water and Space Heating System
Isolation
Kit(*1)
Gas Supply
Backflow Preventer
(optional)
Check
Valve(*3)
Cold Water
Supply
Mixing Valve(*5)
Hot Water
Pump(*2)
Flow Switch(*4)
Fixtures
Air Handler
Optional
Expansion Tank(*6)
Recirculation System
Cold Water Supply
Isolation
Kit(*)
Gas Supply
Aquastat(*2)
Hot Water
Optional 8-10 Gallon
Storage Tank
(To alleviate cold water sandwich)
Globe
Valve
Pump(*1)
Expansion Tank
(Install according
to local code)
Fixtures
Hot Water Return
R
B
W
Pump
120VAC
105
Neutral
Ground
Live
S
Use Honeywell Aquastat
(Model L6006A or L6006C)
Aquastat Wiring
Notes:
1. Noritz recommends the use of an Isolation Kit with
the installation.
These kits include an integrated shut-off and service
valve with unions and a pressure relief valve.
2. Size the pump to provide
a maximum of
2 GPM
(7.5 L/min.) with a head pressure equal to the loss
through the water heater and Air Handler.
3
.
Check valve required if it is not included with the pump.
4.
Set the flow switch to deactivate the Air Handler when
the domestic hot water flow reaches 2 GPM (7.5 L/min.).
Adjust as necessary to prevent cycling.
5. If the system requires water for space heating at a higher
temperature than for other uses, means such as a
mixing valve shall be provided to temper the water for
the other uses to help prevent scalding.
7. The water heater cannot be used for space heating
applications only.
8. Only POTABLE water may be plumbed through
the water heater.
6. Expansion tank required if a backflow preventer is installed.
NORITZ
Tankless Gas
Water Heater
NORITZ
Tankless Gas
Water Heater
Notes:
1. Size the pump to provide a maximum of 1.5GPM
(5.7L/min.) through the system at 10ft (0.3m) of
head plus piping losses.
Adjust the flow using a globe valve and verify the
flow rate with the maintenance monitors.
2.
Set the Aquastat to 10˚F below the set output temperature.
An aquastat is the minimum pump control requirement
in order to maintain the full recirculation waranty.
If it is not installed, the water heater can not detect
the Scale Build-up in the Heat Exchanger.
3. Noritz recommends the use of an Isolation Kit
with the installation.
These kits include an integrated shut-off and service
valve with unions and a pressure relief valve.
If the Air Handler does not control the water flow automatically, the Scale detection feature will not work.
9.
Plumbing Applications
▲The illustration is an example. Please check with the actual water heater about the position of piping, and form.

Other manuals for Noritz NR501-OD

Related product manuals