EasyManua.ls Logo

Noritz NR501-OD - Installation Clearances

Noritz NR501-OD
27 pages
Print Icon
To Next Page IconTo Next Page
To Next Page IconTo Next Page
To Previous Page IconTo Previous Page
To Previous Page IconTo Previous Page
Loading...
5
5.
Installation Clearances
Before installing, check for the following:
Install in accordance with relevant building and mechanical codes, as well as any local, state or national
regulations, or in the absence of local and state codes, to the National Fuel Gas Code ANSI Z223.1/
NFPA 54 latest edition.
WARNING
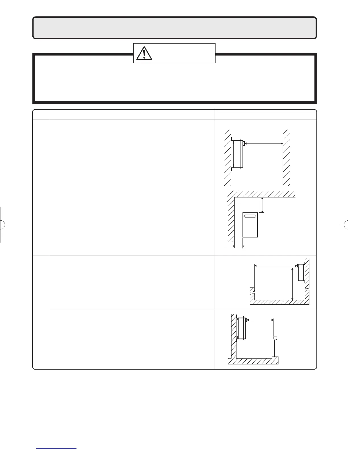
Item Check
When installing the unit on a balcony, etc., secure an
evacuation route of 24" (600mm) or more in width.
Provide clearance of 24" (600mm) or more in front of
the unit to facilitate inspection and repair. Do install the
unit such as the wall of the second oor where the unit
is out of reach.
When installing the unit in a common side corridor, provide
a clearance of 47" (1,190mm) or more in front of the unit.
Set the bottom edge of the exhaust port about
84" (2,130mm) from the corridor oor.
Handrail
common side
corridor
balcony, etc.
Handrail
about 84"
(2,130mm)
Maintain the following clearance from both combustible
and non-combustible materials.
24" (600mm)
or more
36" (900mm)
or more
Surrounding the area of installation
24" (600mm)
or more
47" (1,190mm) or more
Required Clearances From Heater
Illustration
6" (150mm)
or more
▲The illustration is an example. Please check with the actual water heater about the position of piping, and form.

Other manuals for Noritz NR501-OD

Related product manuals