EasyManua.ls Logo

Noritz NR501-OD - Page 23

Noritz NR501-OD
27 pages
Print Icon
To Next Page IconTo Next Page
To Next Page IconTo Next Page
To Previous Page IconTo Previous Page
To Previous Page IconTo Previous Page
Loading...
23
13.
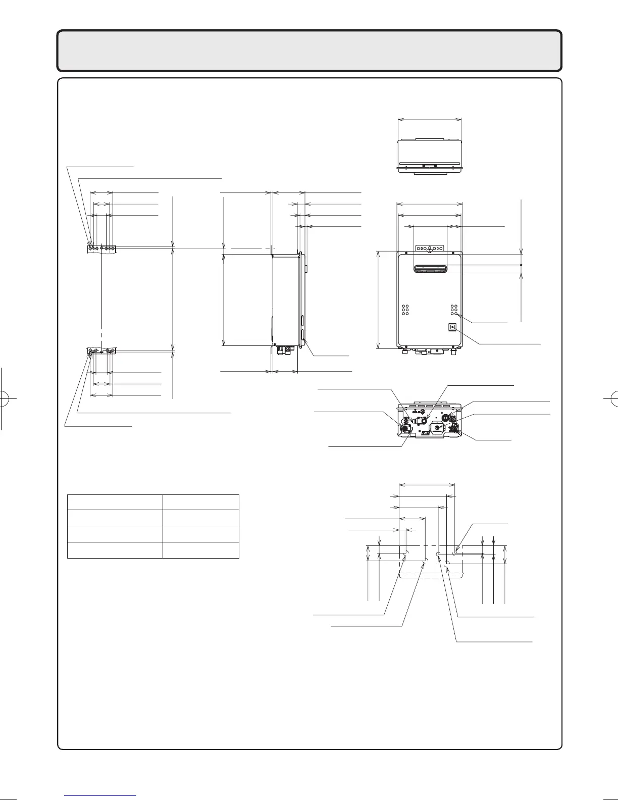
Dimensions
13.1" (334mm)
13.8" (350mm)
1.7" (42mm)
2.2" (57mm)
20.5" (520mm)
7.0" (178mm)
2.9" (73mm)
AIR INLET
DISPLAY WINDOW
13.3" (338mm)
COLD WATER INLET
HOT WATER OUTLET
WATER DRAIN VALVE
WIRING THROUGHWAY
GAS INLET
(AC120V)
WIRING THROUGHWAY
(WATER FILTER)
WATER DRAIN VALVE
6.7" (170mm)
0.4" (11mm)
0.4" (10mm)
0.4" (10mm)
5.2" (133mm)
1.1" (27mm)
1.6" (40mm)
AIR INLET
2.0" (50mm)
3.3" (85mm)
4.7" (120mm)
0.4" (10mm)
0.4" (10mm)
21.3" (542mm)
19.2" (487mm)
1.2" (31mm)
0.3"×0.6" (3-6.516.5mm) OBLONG HOLE
2-0.3"×0.5" (6.5×13mm) OBLONG HOLE
1.6" (40mm)
3.2" (80mm)
1.8" (45mm)
3.8" (97mm)
1.6" (40mm)
1.4" (36mm)
5.5" (139mm)
8.2" (208mm)
9.9" (252mm)
11.7" (296mm)
WIRING THROUGHWAY
(AC120V)
WIRING THROUGHWAY
GAS INLET
COLD WATER INLET
(VIEW FROM TOP)
HOT WATER OUTLET
HEIGHT OF EACH FITTING
FROM BOTTOM OF CASE
< inch (mm) >
(NR501-OD)
HOT WATER OUTLET 1.8" (45mm)
COLD WATER INLET
1.9" (49mm)
GAS INLET
2.0" (50mm)
4- φ0.5" (φ13mm)
2.4" (60mm)
3.5" (90mm)
4.7" (120mm)
4- φ0.5" (φ13mm)
NR501-OD

Other manuals for Noritz NR501-OD

Related product manuals