EasyManua.ls Logo

Noritz NRCB180DV - Dimensions

Noritz NRCB180DV
84 pages
Print Icon
To Next Page IconTo Next Page
To Next Page IconTo Next Page
To Previous Page IconTo Previous Page
To Previous Page IconTo Previous Page
Loading...
10
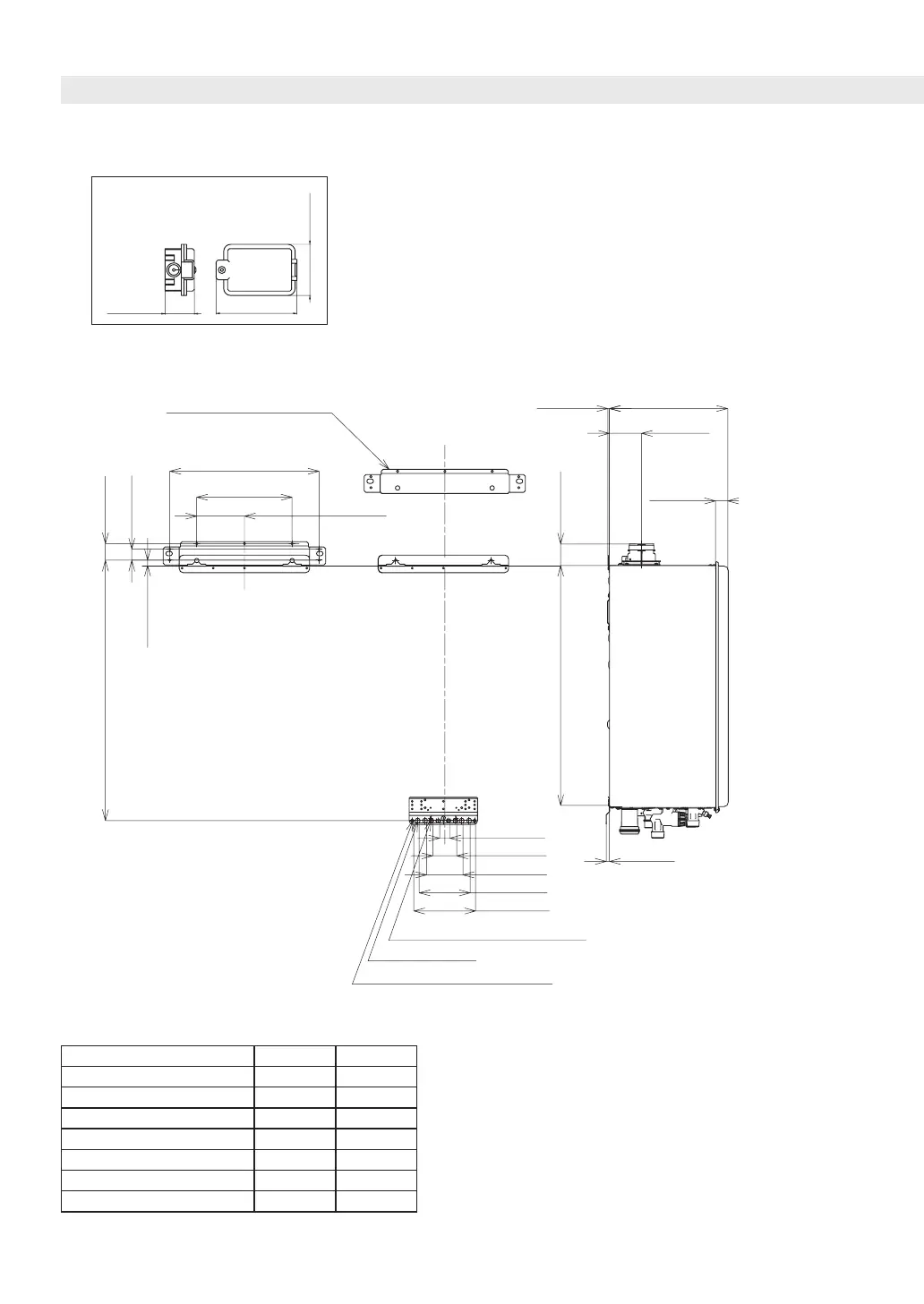
HEIGHT OF EACH FITTING FROM CASE
PRESSURE RELIEF VALVE FOR HEATING
TOP 1.0” [26]
DOMESTIC WATER OUTLET BOTTOM 2.0” [51]
DOMESTIC WATER INLET BOTTOM 1.9” [49]
HEATING WATER OUTLET BOTTOM 2.2” [55]
HEATING WATER INLET BOTTOM 3.4” [86]
AUTO FEEDER WATER INLET BOTTOM 2.3” [58]
CONDENSATE DRAIN BOTTOM 1.7” [42]
GAS INLET BOTTOM 2.2” [55]
PRESSURE RELIEF VALVE
FOR HEATING (3/4”)
Outdoor Temperature Sensor
27.0” [687]
2.8” [71]
1.97” [50]
Ø2.4” [Ø61]
Ø2.4” [Ø61]
10.1” [256]
17.8” [451]
18.5” [471]
17.7” [450]
1.3” [34] 3.6” [92]
2.3” [58]
5.1” [130]
AIR INLET
FLUE COLLAR
HEATING WATER OUTLET (1”)
HEATING WATER INLET (1”)
AUTO FEEDER WATER INLET (1/2”)
WATER DRAIN VALVE
DOMESTIC WATER OUTLET (3/4
)
DOMESTIC WATER INLET (3/4”)
GAS INLET (3/4”)
(WATER FILTER)
WATER DRAIN VALVE
(WATER FILTER)
WATER DRAIN VALVE
WATER DRAIN VALVE
(WATER FILTER)
WATER DRAIN VALVE
WIRING THROUGHWAY
WIRING THROUGHWAY
(AC120V)
CONDENSATE DRAIN (1/2”)
4 x Ø0.5” [Ø13]
2 x 0.24” x 0.4” [6 x 10] OBLONG HOLE
4 x 0.24” x 0.6” [6 x 15] OBLONG HOLE
0.4” [10]
WALL MOUNTING BRACKET
(INCLUDED ACCESSORY)
1.8” [46]
28” [711]
1.2” [30]
0.5” [13]
26.0” [600]
2.3” [59]
12.8” [325]
0.2” [5.0]
10.2” [260]
16” [406]
5.1” [130]
3.5” [88]
1.3” [34]
1.1” [28]
2.6” [66]
3.9” [100]
5.5” [140]
6.7” [170]
(VIEW FROM BOTTOM)
2.5 Dimensions
About the Combi Boiler

Table of Contents

Related product manuals