EasyManua.ls Logo

Noritz NRCB180DV - Pressure Relief Valve

Noritz NRCB180DV
84 pages
Print Icon
To Next Page IconTo Next Page
To Next Page IconTo Next Page
To Previous Page IconTo Previous Page
To Previous Page IconTo Previous Page
Loading...
45
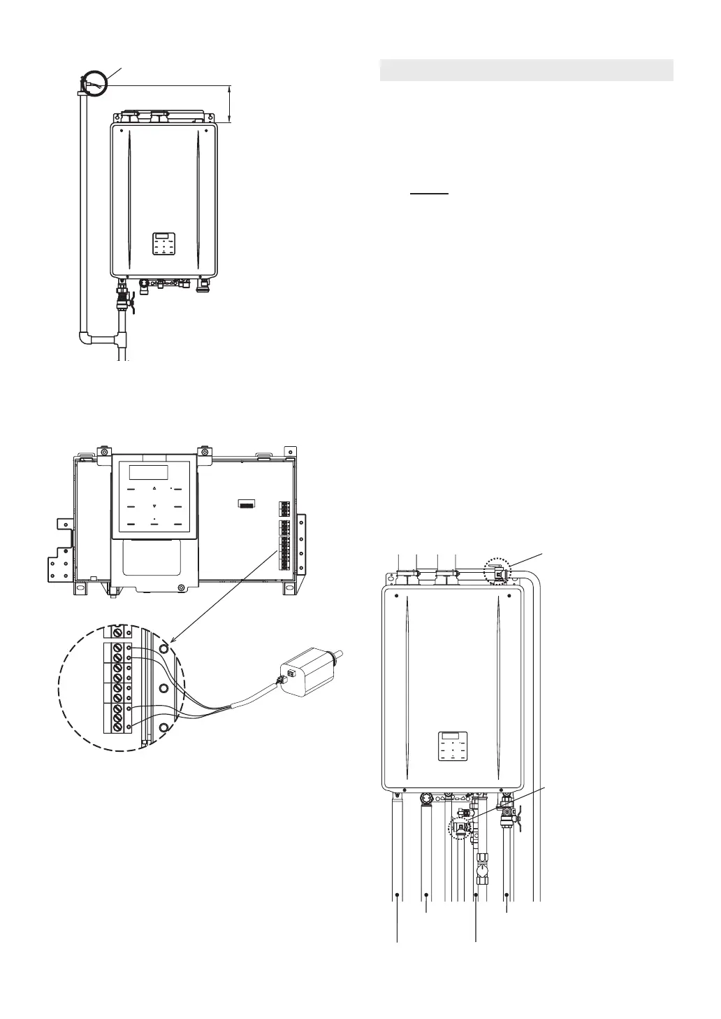
LWCO
LWCO needs
to be installed
above the top
of casing.
[CN234]
LWCO
[CN231]
24VAC
OUT
Heating (3/4” 30psi)
Pressure Relief Valve
(Included Accessory)
DHW (3/4” 150psi)
Pressure Relief Valv
e
(Sold separately)
DHW Cold
Water Supply
DHW Supply
Heating
Return
Heating Supply
External pressure relief valve must be installed.
Observe the following. Failure to comply with the
guidelines on installing the pressure relief valve
and discharge piping can result in personal injury,
death or substantial property damage.
Approved “Pressure Relief Valve” must be used.
An approved ASME HV Valve must be installed on
the DHW supply line for hydronic domestic hot
water loop as close to the unit as possible. (Valve
size 3/4”, maximum 150 psi) Refer to the figure
below for more information on approved pressure
relief valves. (Install “pressure relief valve”, Field
Supplied).
No other valve should be installed between the
pressure relief valve and Combi Boiler.
Direct the discharge piping of the pressure relief
valve so that hot water will not splash on anyone
or any nearby equipment. Attach the discharge
line to the pressure relief valve and run the end
of the line to within 6 - 12” (150 - 300 mm) of the
floor.
Isolation Valve should be installed, sold
separately.
Remove the factory installed jumper on the LWCO
terminals (CN234) prior to connecting the LWCO.
The Combi Boiler supplies 24 VAC from the
terminal (CN231) (see below illustration).
9.3 Pressure Relief Valve
NOTE
DO NOT install a relief valve (DHW
pipe line) with pressure higher than
150 psi and relief valve (Heating pipe
line) with pressure higher than 30 psi.
This is the maximum allowable relief
valve setting for the Combi Boiler.
Connecting the Heating Pipe

Table of Contents

Related product manuals