EasyManua.ls Logo

Noritz NRCB180DV - Quick Connect Multi System Installation

Noritz NRCB180DV
84 pages
Print Icon
To Next Page IconTo Next Page
To Next Page IconTo Next Page
To Previous Page IconTo Previous Page
To Previous Page IconTo Previous Page
Loading...
80
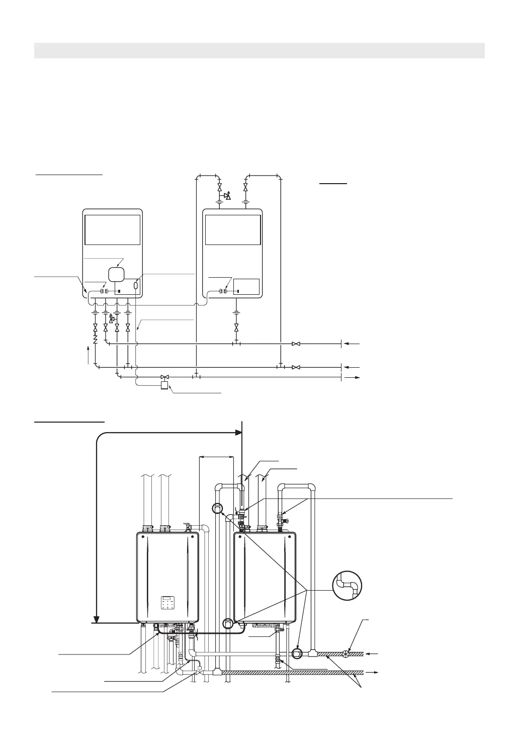
18.7 Quick Connect Multi System Installation
The Quick Connect Multi System allows the installation of two units together utilizing only the Quick Connect
Cord (QC-2). Unit’s MAX Btuh must be same in order to quick connect. e.g. When installing NRCB199DV
(GHQ-C3201WX-FF US), you must install EZ111DV (GQ-C3259(60)WX-FF US) or NCC199CDV (GQ-C3259(60)
WZ-FF US).
The Quick Connect Cord (QC-2) is 6 ft. (2m) long. Install the units 3-18 in. (75-457 mm) apart from each other
to ensure the cord will be able to reach between the units. (See Typical Plumbing diagram).
(If the distance between the two units is too great, not only will the cord not be able to reach, but the water
temperature may also become unstable because of the difference in pipe length between the two units).
System Diagram
Quick Connect
Cord
Solenoid Terminal
(Refer to page 52)
Solenoid Valve
To Auto Feeder
Gas Supply
S
Cold Water Suppl
y
DHW Supply
Cord
Connector
Wire Connection
NRCB199DV or
NRCB180DV
(Combi Boiler)
Cord
Connector
EZ111/98DV
or
NCC199CDV
Operation Display
NOTE
This system is operated by
the Combi Boilers Operation
Display.
Don’t connect the remote
controller to the water heater.
The Water Heater’s remote
controller (Included Accessory)
will be required to troubleshoot,
make sure the customer keeps
the remote for future use.
Typical Plumbing
Insulate the hot water piping to
prevent heat loss. Insulate and apply
heating materials to the cold water
supply piping to prevent heat loss and
freezing of pipes when exposed to
excessively cold temperatures.
Exhaust
Intake
To drain outlet
To drain outlet
Distance on sides
3 - 18 in. (75 - 457 mm)
DHW Cold Water Suppl
y
DHW Supply
Size the piping to allow for the
maximum flow rates of the units.
Gas Valve
Union
Isolation Valve*
Quick Connect Cord
* Isolation Valves are necessary for flushing
the Plate Heat Exchanger.
This allows for easy flushing of the system.
Solenoid Valve (refer to page 52)
Wire connection
Leave enough clearance around
the plumbing to apply insulation.
It will be necessary to add bends
to the piping to ensure that this
clearance is available.
The backflow preventer should
be placed upstream of the cold
water branch.
Make this distance as
short as possible
.
The hot water
temperature will
become unstable as
the pipe length
increases.
Plumbing Applications

Table of Contents

Related product manuals