EasyManua.ls Logo

Notifier AFP1010 - Section 4.7 The Control Module

Notifier AFP1010
268 pages
Print Icon
To Next Page IconTo Next Page
To Next Page IconTo Next Page
To Previous Page IconTo Previous Page
To Previous Page IconTo Previous Page
Loading...
1-60
Installation 15088:K 3/21/01
123
1
2
3
1
2
3
1
2
3
1
2
3
1
2
3
1
2
3
1
2
3
1
2
3
1
2
3
1
2
3
1
2
3
1
2
3
1
2
3
1
2
3
1
2
3
1
2
3
1
2
3
1
2
3
1
2
3
1
2
3
1
2
3
1
2
3
123
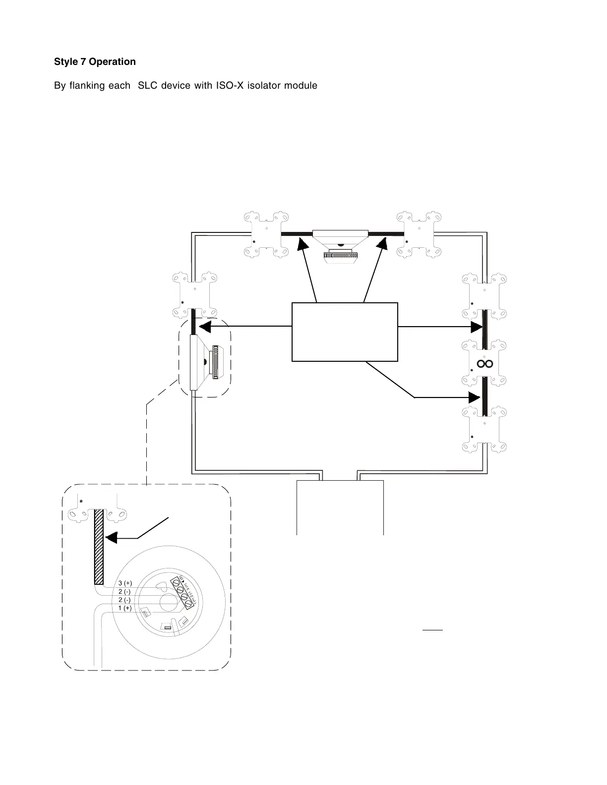
Style 7 Operation
By flanking each SLC device with ISO-X isolator modules and/or isolator detector bases, each device is
protected from an open or short on the SLC. In Figure 4.3-5 below, the MMX monitor module or XP transponder,
the non isolator-based device, and the isolator-based device will continue to function if there is an open or short
on the SLC.
The isolator-based device pictured below requires only one ISO-X module, as the isolator bases B524B1(A) and
B224B1(A) act as isolators. However, if the short circuit occurs on the wiring connected to terminals 2 and 3 of
the isolator base, the smoke detector in that base will not be isolated. Therefore, the conduit and ISO-X is
installed on this wiring. Refer to the isolator base wiring diagram in the figure.
Figure 4.3-5 NFPA Style 7 SLC
LIB SLC Loop
Channel
A
SSD Isolator Base
B524B1(A) or
B224B1(A)
MMX Monitor
Module or XP
Transponder
NO T- T APPING PERMITTED
ISO-X
Isolator
Module
ISO-X
Isolator
Module
ISO-X
Isolator
Module
ISO-X
Isolator
Module
ISO-X
Isolator
Module
Conductors must be in
conduit.
Isolators must be within
20 feet ( 6.1m) of the
addressable device.
20 foot (6.1m)
conduit maximum
Note
When more than 100 Isolator Modules/Isolator
Bases are connected to an SLC Loop, decrease
the 198 address capacity by two addresses for
every isolator in excess of 100.
Style 7 wiring for SSD Isolator Bases
B524B1(A) and B224B1(A)
Non-isolator
base
Channel
B

Table of Contents

Other manuals for Notifier AFP1010

Related product manuals