EasyManua.ls Logo

Notifier AFP1010 - Page 76

Notifier AFP1010
268 pages
Print Icon
To Next Page IconTo Next Page
To Next Page IconTo Next Page
To Previous Page IconTo Previous Page
To Previous Page IconTo Previous Page
Loading...
1-66
Installation 15088:K 3/21/01
NOTES
• For additional ratings, refer to Appendix A.
• For connection of the initiating devices, refer to the manufacturer's installation instructions packaged with each device.
• For more information, refer to the MMX-2 Installation Instructions.
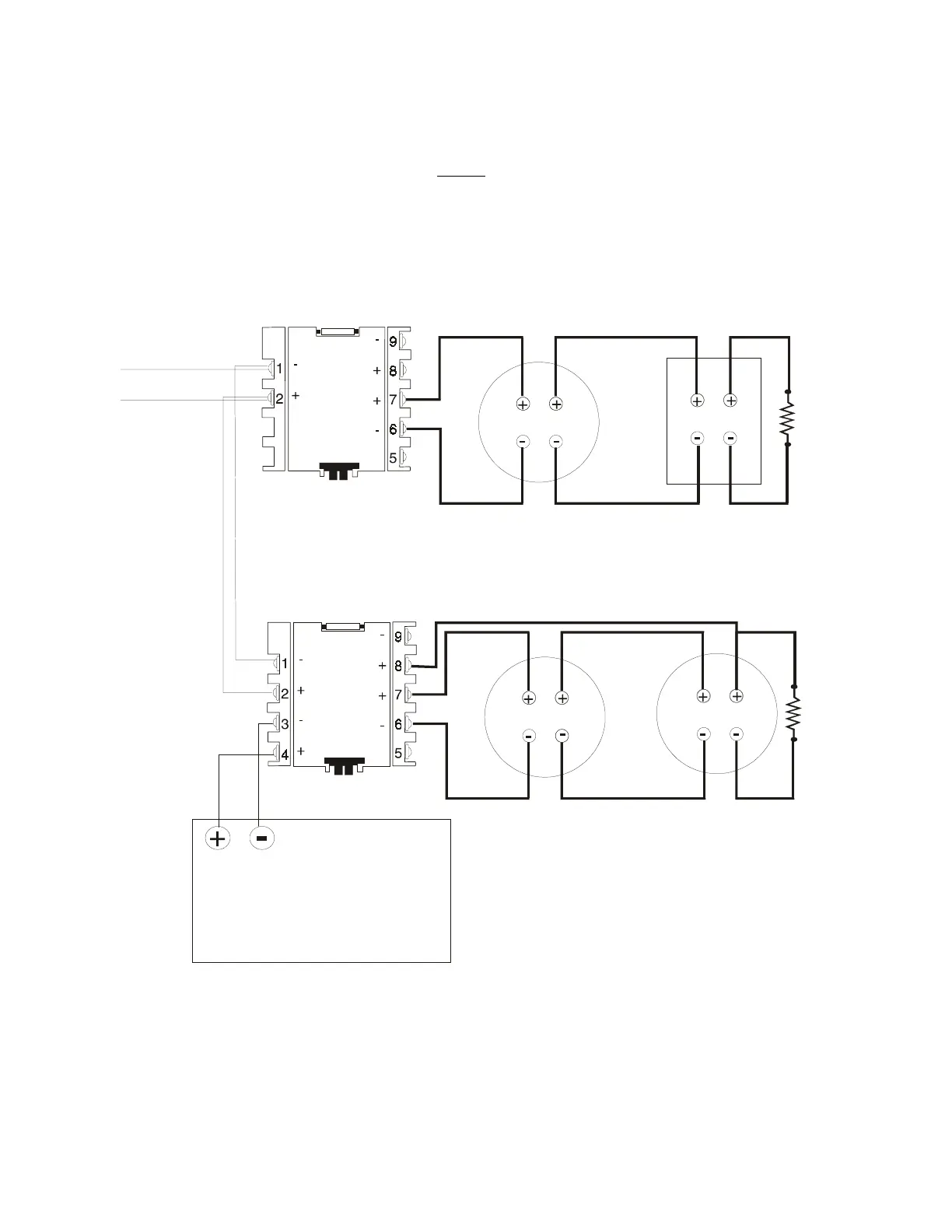
Figure 4.6-3 illustrates an MMX-1 monitoring normally open contact fire alarm initiating devices that do not
require power and an MMX-2 monitoring powered two-wire smoke detectors and a normally open contact alarm
initiating device. Refer to Figure 4.6-5 for circuits using four-wire detectors.
LIB SLC Port A ( - )
LIB SLC Port A (+)
MMX-1
MMX-2
Heat Detector Pull Station
24 VDC Two-wire Smoke Detectors
47K
End-of-Line
Resistor
(A2143-00)
A-2143-10
3.9K
Listed
End-of-
Line
Resistor
SLC Loop Channel A
Supervised and power-limited
Figure 4.6-3 NFPA Style B Initiating Device Circuit
Power-limited
UL-listed 24 VDC Filtered Regulated Power
Limited Power Supply for Fire Protective
Signaling
or
MPS-24A/E, TB3 Terminal 1 (+) and 2 (-)
APS-6R, TB2 Terminal 1 (+) and 2 (-)
Terminal 3 (+) and 4 (-)

Table of Contents

Other manuals for Notifier AFP1010

Related product manuals