EasyManua.ls Logo

Notifier AFP1010 - Page 77

Notifier AFP1010
268 pages
To Next Page IconTo Next Page
To Next Page IconTo Next Page
To Previous Page IconTo Previous Page
To Previous Page IconTo Previous Page
Loading...
1-67
Installation 15088: K 3/21/01
MMX-1
MMX-2
Heat Detector Pull Station
SLC Loop Channel A
Supervised and power-limited
24 VDC Two-wire Smoke Detectors
See third bulleted
note above.
Power-limited
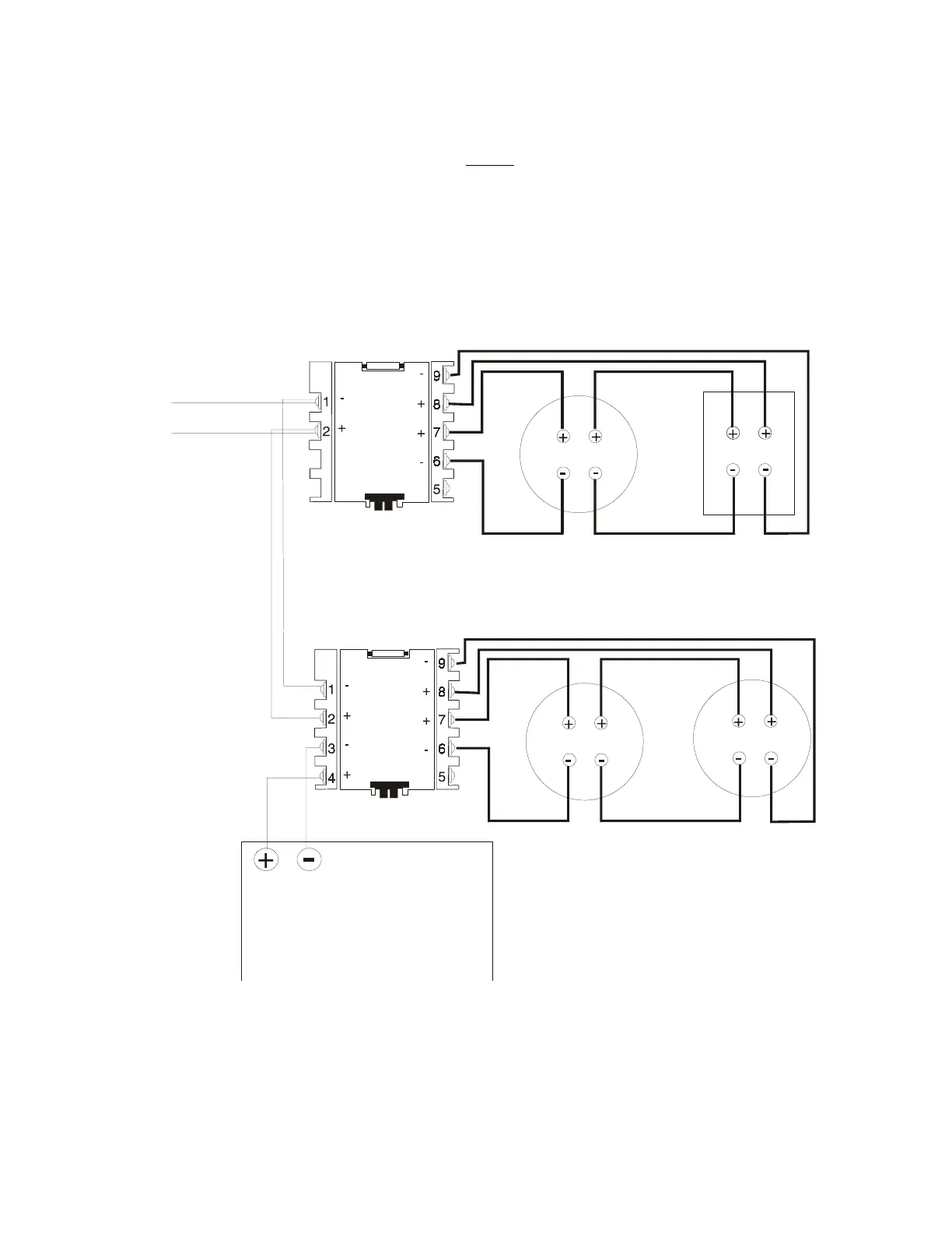
Figure 4.6-4 illustrates an MMX-1 monitoring normally open contact fire alarm initiating devices that do not
require power and an MMX-2 monitoring powered two-wire smoke detectors. Refer to Figure 4.6-6 for circuits
using four-wire detectors.
NOTES
• For additional ratings, refer to Appendix A.
• For connection of the initiating devices, refer to the manufacturer's installation instructions packaged with each device.
• For MMX-2 mount the appropriate ELR across terminals 8 and 9.
• For more information, refer to the MMX-2 Installation Instructions.
Figure 4.6-4 NFPA Style D Initiating Device Circuit
24V DC Four-Wire Smoke Detector Power
Up to one amp for four-wire smoke detectors can be drawn from TB3 terminals 1(+) and 2(-). Power is removed
from these terminals during system reset. This 24V DC regulated source is power-limited but must be supervised
via an end-of-line Power Supervision Relay (refer to Figures 4.6-5 and 4.6-6).
UL-listed 24 VDC Filtered Regulated
Power Limited Power Supply for Fire
Protective Signaling
or
MPS-24A/E, TB3 Terminal 1 (+) and 2 (-)
APS-6R, TB2 Terminal 1 (+) and 2 (-)
Terminal 3 (+) and 4 (-)
LIB SLC Port A ( - )
LIB SLC Port A (+)

Table of Contents

Other manuals for Notifier AFP1010

Related product manuals