EasyManua.ls Logo

NTI Trinity Ti 150 - 6.3 Domestic Combi System

NTI Trinity Ti 150
38 pages
Print Icon
To Next Page IconTo Next Page
To Next Page IconTo Next Page
To Previous Page IconTo Previous Page
To Previous Page IconTo Previous Page
Loading...
18
AB
B
A
Boiler
C
H
M
Throttling Valve
A
B
C
Check Valve
Drain Valves for Cleaning
H
D
E
F
G
Mixed Domestic
Wate
r
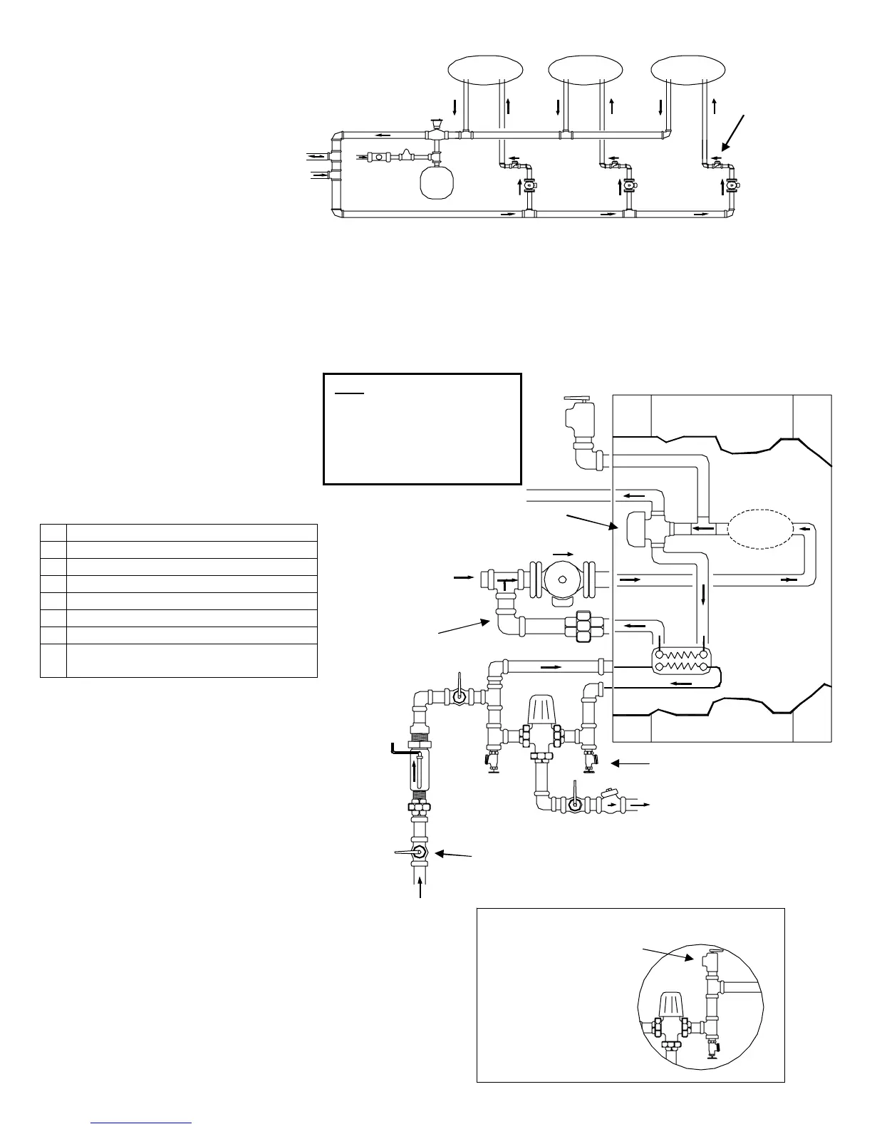
6.3 Domestic Combi System
(((OPTIONAL on Ti150 and Ti200 Only)))
"The Trinity Combi is designed for installations where there is a limited DHW demand, such as smaller apartments and condos. In
applications where there is a greater DHW demand we recommend the use of our heating model boiler in conjunction with an Indirect
Water Heater."
The Combi has all the
features of the standard heating version plus;
External Combi Manifold, diverting valve,
plate heat exchanger & flow switch. Note:
The installer is required to install the pump
flange (included in Combi kit) onto the boiler
return pipe prior to installing the boiler; the
bolts must be inserted into the flange prior to
installing the flange.
COMBI Sequence of operation
When water flow greater than .5 GPM passes through
the flow switch, it closes a contact to terminals A-C on
the Sentry 2100 controller. The boiler is immediately
energized (if not already on), the 3-way diverting valve
moves to the domestic hot water position “A”, and the
circulator is energized. Hot water is circulated through
the plate heat exchanger. The flame is modulated to
maintain the “LO” setting on the Sentry control. The
Sentry uses the boiler thermister to read the
temperature of the boiler water. Space heating is not
provided during a call for domestic.
A
Heating System Supply (hot)
B
Heating System Return (cool)
C
Heating & Combi Circulator
D
No elbows within 2” of flow switch
E
3 way diverting valve
F
Domestic Water in (Cold)
G
External Combi Manifold #82470-1
H Flow switch MUST be in vertical
position, inlet down.
S
R
S
R
S
R
Check Valves
N
ote: See page 15 for location of
expansion tank and other
components
Insert secondary
Loop here. See pages16 & 17
Primary Loop For multiple
boilers (Non-Combi’s only)
Boiler 3
Boiler 2
Boiler 1
Pump 3
Pump 2
Pump 1
For the state of Massachusetts
Combi must
be field equipped
with 150 PSI
relief valve as
shown (not
provided)
C
H
M
Relief
Va lve
Note: Locations of plumbing
connections are not be as
shown, refer to labels on
boiler, contact NTI with any
questions.

Other manuals for NTI Trinity Ti 150

Related product manuals