EasyManua.ls Logo

NTI Trinity Ti 200 - Multiple Zones with Different Temperatures

Default Icon
38 pages
Print Icon
To Next Page IconTo Next Page
To Next Page IconTo Next Page
To Previous Page IconTo Previous Page
To Previous Page IconTo Previous Page
Loading...
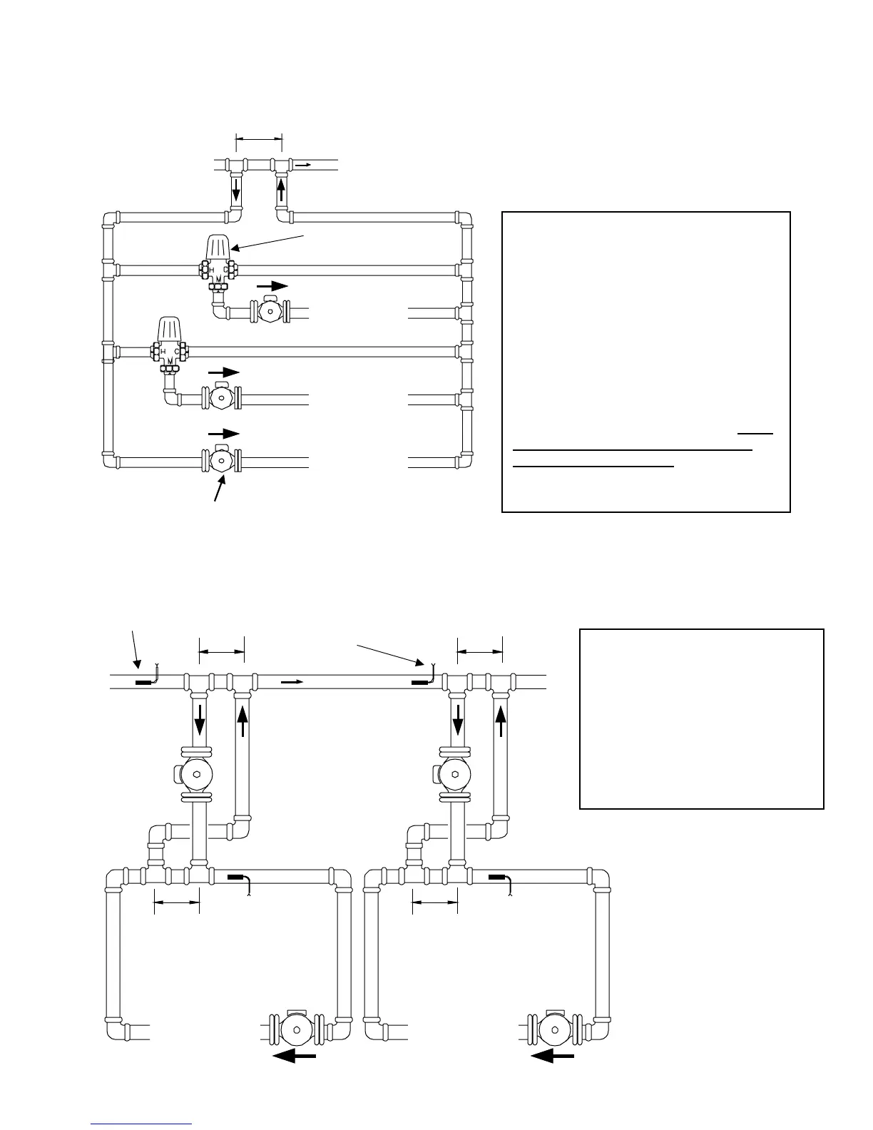
17
Zone 3
High Temp.
Tempering valve
Zone 2
Med. Temp.
Zone 1
Low Temp.
Pumps sized to each
zones flow and head
requirements
Primary
Loo
p
Max. 12” apart
6.2.3 Multiple Zones with Different Temperatures
Using pumps and tempering valves
Using Injection pumps
Loop 1
High
Temp.
Injection
Pump
Primar
y
loo
p
Max. 12” apart
Max. 12” apart
Max. 12”
apart
Max. 12”
a
p
art
Loop 2
Low
Temp.
Injection
Pump
Loop Pumps sized to each loops flow and head requirements
Boiler sensor #2
(Lo Temp.)
Boiler sensor #1
(Hi Temp.)
Mix sensor #1
(Hi Temp.)
Mix sensor #2
Lo Temp.)
See figure
7.2.3 “Multiple Zones using pumps,
and pump controller
By setting the tempering valves to different
settings, multiple temperatures can be
obtained.
Installer may require throttling and check
valves to correctly regulate the system.
Other configurations may work, but under
no circumstances can a mixing valve be
placed in the primary loop as overheating
of the boiler could occur.
See figure
7.2.4 “Multiple temperature Zones
using injection pump”
Installer may require throttling and
check valves to correctly regulate
the system

Other manuals for NTI Trinity Ti 200

Related product manuals