EasyManua.ls Logo

Nussbaum 2.35 TSK - Hydraulic Diagram Drawing

Nussbaum 2.35 TSK
35 pages
Print Icon
To Next Page IconTo Next Page
To Next Page IconTo Next Page
To Previous Page IconTo Previous Page
To Previous Page IconTo Previous Page
Loading...
Operating Instruction and Documentation
2.35 TSK
- 13 -
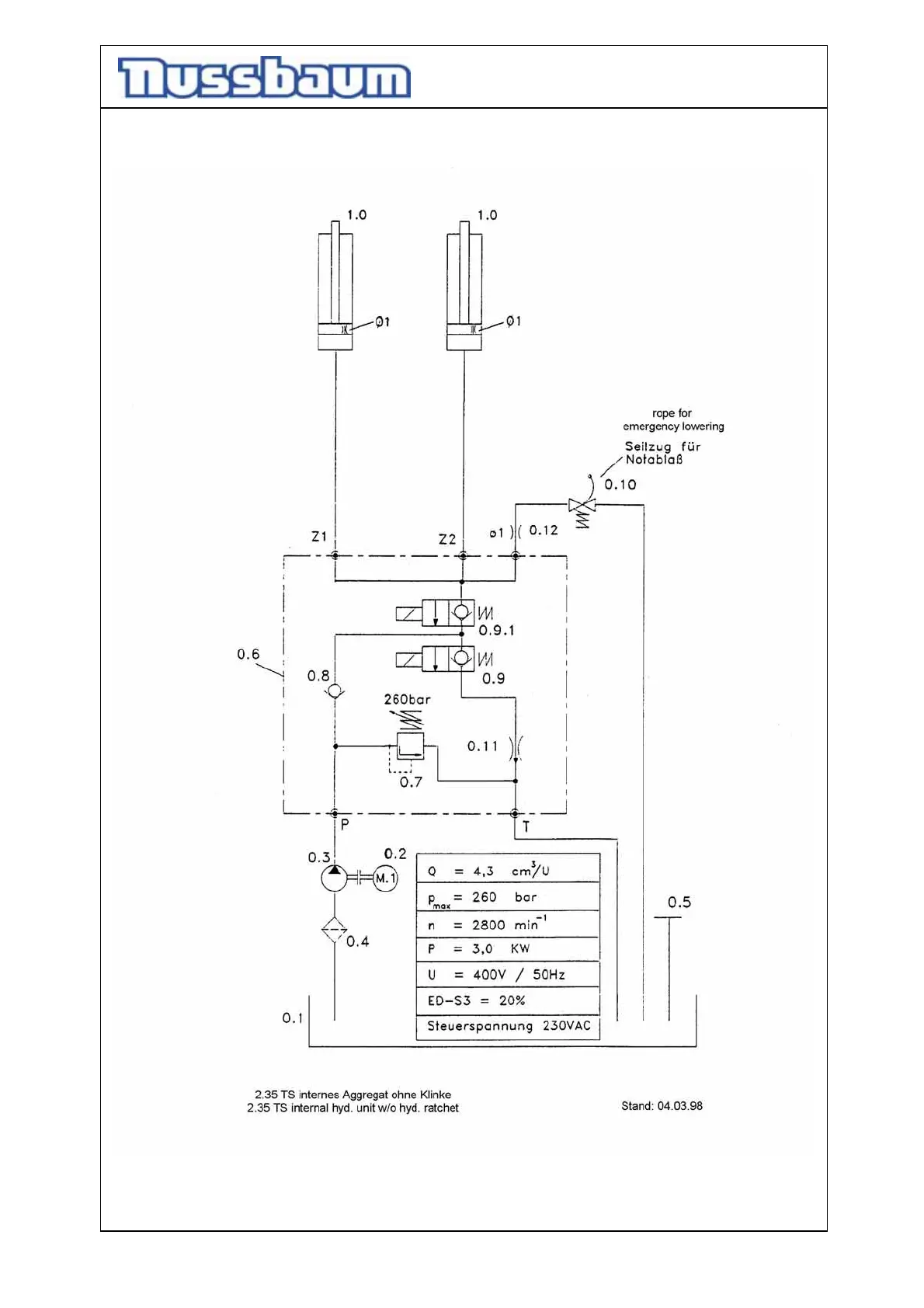
3.5 Hydraulic diagram drawing

Related product manuals