EasyManua.ls Logo

Nyle C25W - Registration

Nyle C25W
47 pages
Print Icon
To Next Page IconTo Next Page
To Next Page IconTo Next Page
To Previous Page IconTo Previous Page
To Previous Page IconTo Previous Page
Loading...
45
38
4. See Closed Systems and Thermal Expansion on page 13
5. See Water Connections on page 17.
6. If a building recirculation loop is present the circulation pump must be controlled by a
thermostat.
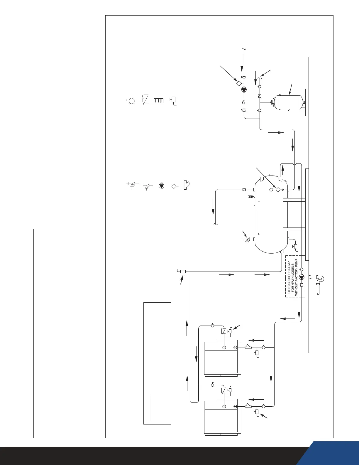
WATER PIPING DIAGRAMS
Before installation of water piping review the following:
1. See Mixing Valves on page 13.
2. See Water Temperature on page 10.
3. See Temperature - Pressure Relief Valve on page 14.
44
WARNING: THIS DRAWING SHOWS SUGGESTED
PIPING CONFIGURATION AND OTHER DEVICES;
CHECK WITH LOCAL CODES AND ORDINANCES
FOR ADDITIONAL REQUIREMENTS.
LEGEND
TEMPERATURE & PRESSURE
RELIEF VALVE
PRESSURE RELIEF VALVE
CIRCULATING PUMP
DRAIN
WYE STRAINER
FULL PORT BALL VALVE
TEMPERATURE GAGE
CHECK VALVE
TANK OR LINE TEMPERATURE
CONTROL
TWO HEAT PUMPS, SINGLE TEMPERATURE WITH
HORIZONTAL STORAGE TANK
WITH FORCED BUILDING RECIRCULATION
HOT OUTLET
TO FIXTURES OR
INLET OF BACKUP
WATER HEATER
BUILDING
RECIRCULATION
LOOP RETURN
NOTE:
CONNECT BUILDING
RECIRC RETURN TO
INLET OF BACKUP
WATER HEATER
WHEN PRESENT
SUPPLY
SUPPLY
WATER
(OUTLET)
FINISHED
FLOOR
RETURN
WATER
(INLET)
PURGE
VALVE
LINE THERMOSTAT
COLD WATER
SUPPLY
PIPE T&P TO
OPEN DRAIN
TANK THERMOSTAT
DRAIN &
FLUSH
VALVES
FLUSH
VALVES
EXPANSION
TANK
HPWHHPWH
STORAGE
TANK

Table of Contents

Other manuals for Nyle C25W

Related product manuals