EasyManua.ls Logo

Olympus U-TR30-2 - Page 29

Olympus U-TR30-2
36 pages
Print Icon
To Next Page IconTo Next Page
To Next Page IconTo Next Page
To Previous Page IconTo Previous Page
To Previous Page IconTo Previous Page
Loading...
25
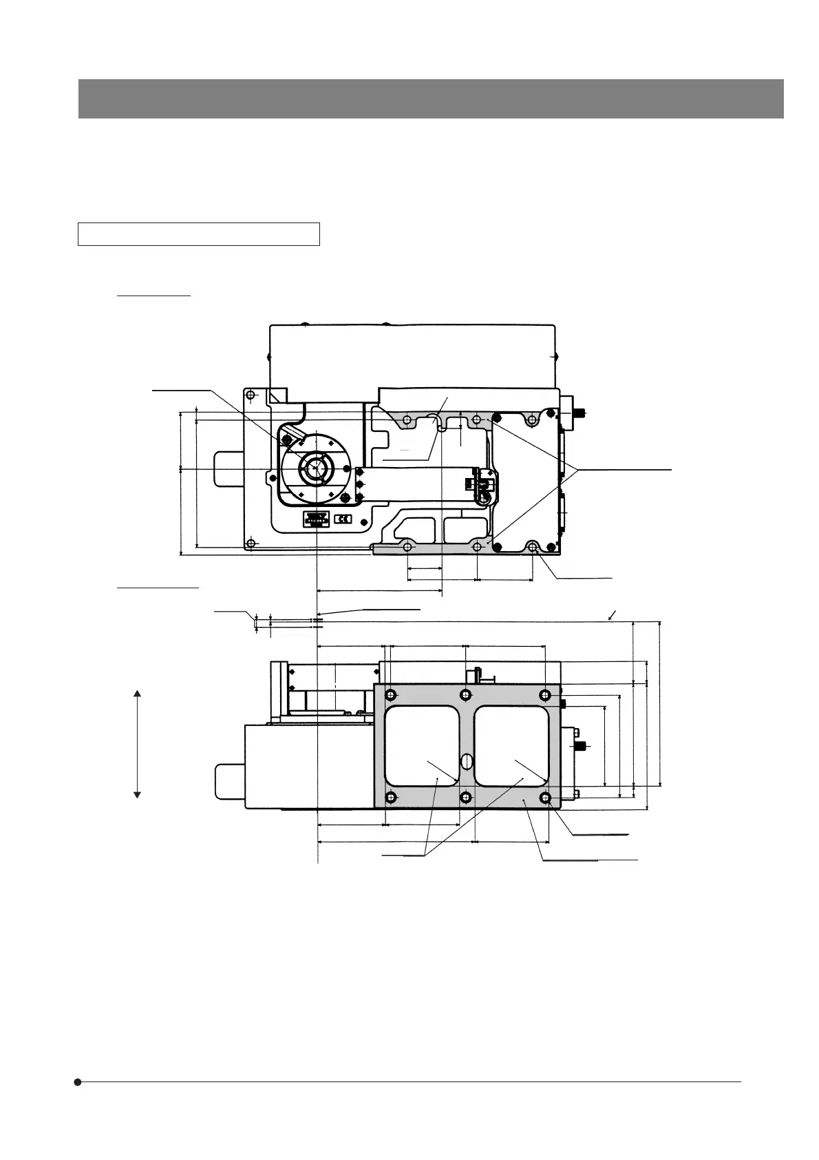
BXFMA
Optical axis
Installation surface
Stroke
Optical axis
Installation surface
Specimen surface
(standard focusing position)
6-M8 Depth 10
51
77
114
7
7
2
15
10
72
92
113
92
(148)
20
56
6-M8 Depth 10
Concave 10
Concave 4
31
63
50
113
R8
61
67
142
67
61
5
68
72
4-R10
4-R10
Bottom
Optical axis
Top
Dimensions of Installation Surfaces
Bottom Panel
Left Side Panel

Related product manuals