EasyManua.ls Logo

Omron E2C - Load Connection Examples (Continued); E2 C-WH4 A(F) Load Connection

Omron E2C
24 pages
Print Icon
To Next Page IconTo Next Page
To Next Page IconTo Next Page
To Previous Page IconTo Previous Page
To Previous Page IconTo Previous Page
Loading...
E2C
E2C
18
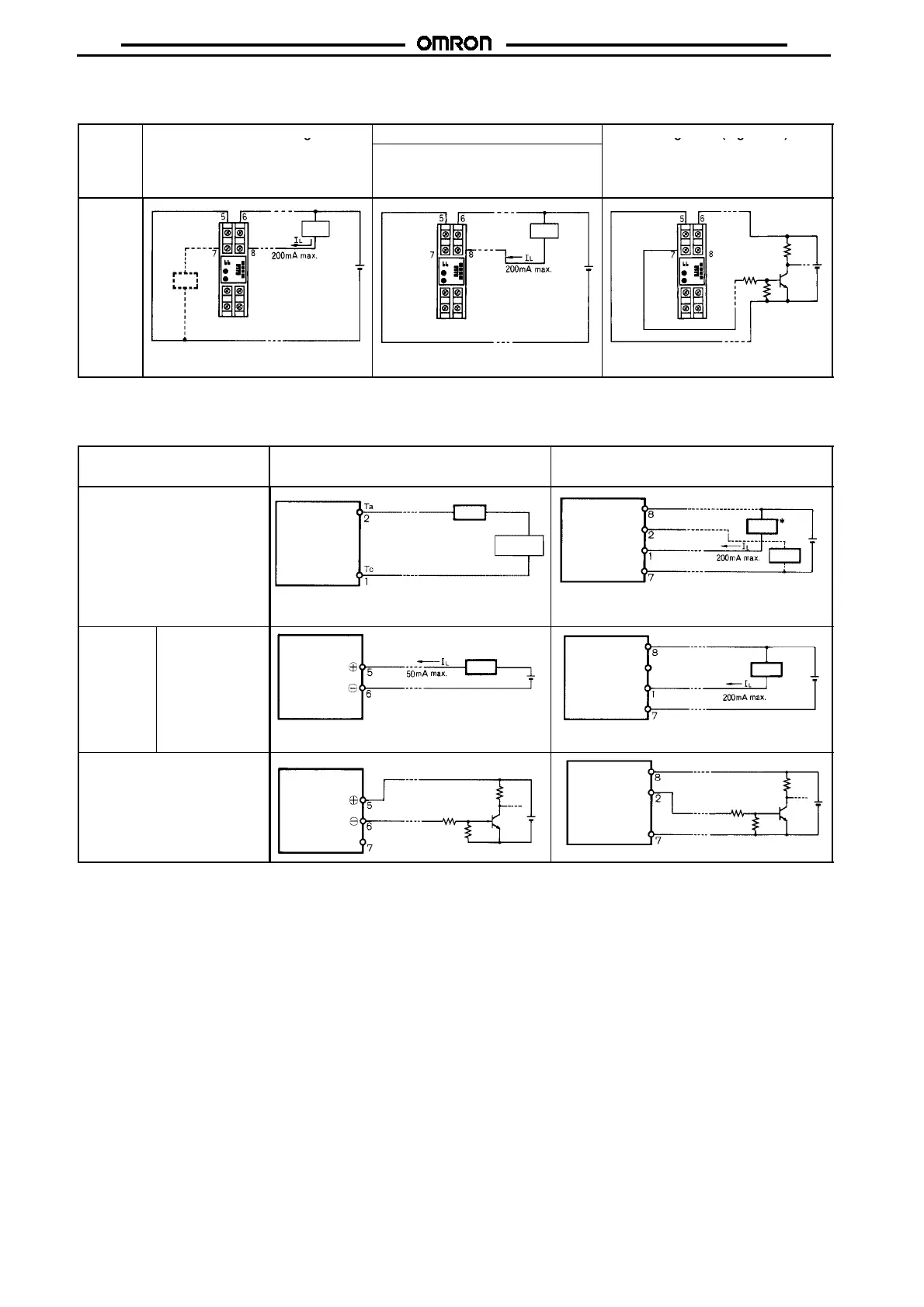
E2C-WH4A(F)
The E2C-WH4A(F) has NPN and PNP open collector outputs. Therefore, there is a degree of freedomin loadtypes and power supply polarity.
Load
Direct load driving
DC solid-state load
Voltage load (logic load)
Model
g
Relay
Solenoid
Current-absorbing load
Programmable Controller
S3D8 Sensor Controller
g
(
g
)
E2C-
WH4A
(F)
Load
Load
PNP output
NPN
output
12 to 24 V0V
Note:
Do not impose a voltage exceeding 40 V
on the loadif the load is connected toan
independent power supply.
(See
note)
(See
note)
Load
NPN
output
12 to 24 V
0V
Note:
Connect the load to the PNP output if
the load discharges current.
12 to 24 V
0V
PNP output
E2C-AK4A, E2C-AM4A
The E2C-AK4A has relay contact and transistor photocoupler outputs and the E2C-AM4A has NPN and PNP open collector outputs. There-
fore, there is a degree of freedom in load types and power supply polarity.
Model
Load
E2C-AK4A E2C-AM4A
Direct load driving
$
Relay
$
Solenoid
Amplifier Unit
Relay contact
output
Power
supply
DC or AC
Load
Amplifier Unit
Load
Load
12 to 24 V
PNP output
NPN output
0V
Note:
Do not impose a voltage exceeding 40 V on the
load if the load is connected to an independent
power supply.
DC
solid-state
load
Current-absorb-
ing load
$
Programmable
Controller
$
Sensor Con-
troller (S3D8)
Amplifier Unit
Load
Transistor photocoupler output
Note:
Connect the load to negative transistor photo-
coupler output if the load discharges current.
Amplifier Unit
Load
12 to 24 V
NPN output
0V
PNP output
Note:
Connecttheload to PNP outputiftheload
discharges current.
2
Voltage load (logic load)
Amplifier Unit
Transistor photocoupler output
(12to24V)
0V
Amplifier Unit
12 to 24 V
0V
PNP output

Related product manuals