EasyManua.ls Logo

Omron Q2A-A4004-AAA - Page 379

Omron Q2A-A4004-AAA
844 pages
To Next Page IconTo Next Page
To Next Page IconTo Next Page
To Previous Page IconTo Previous Page
To Previous Page IconTo Previous Page
Loading...
Specifications
10
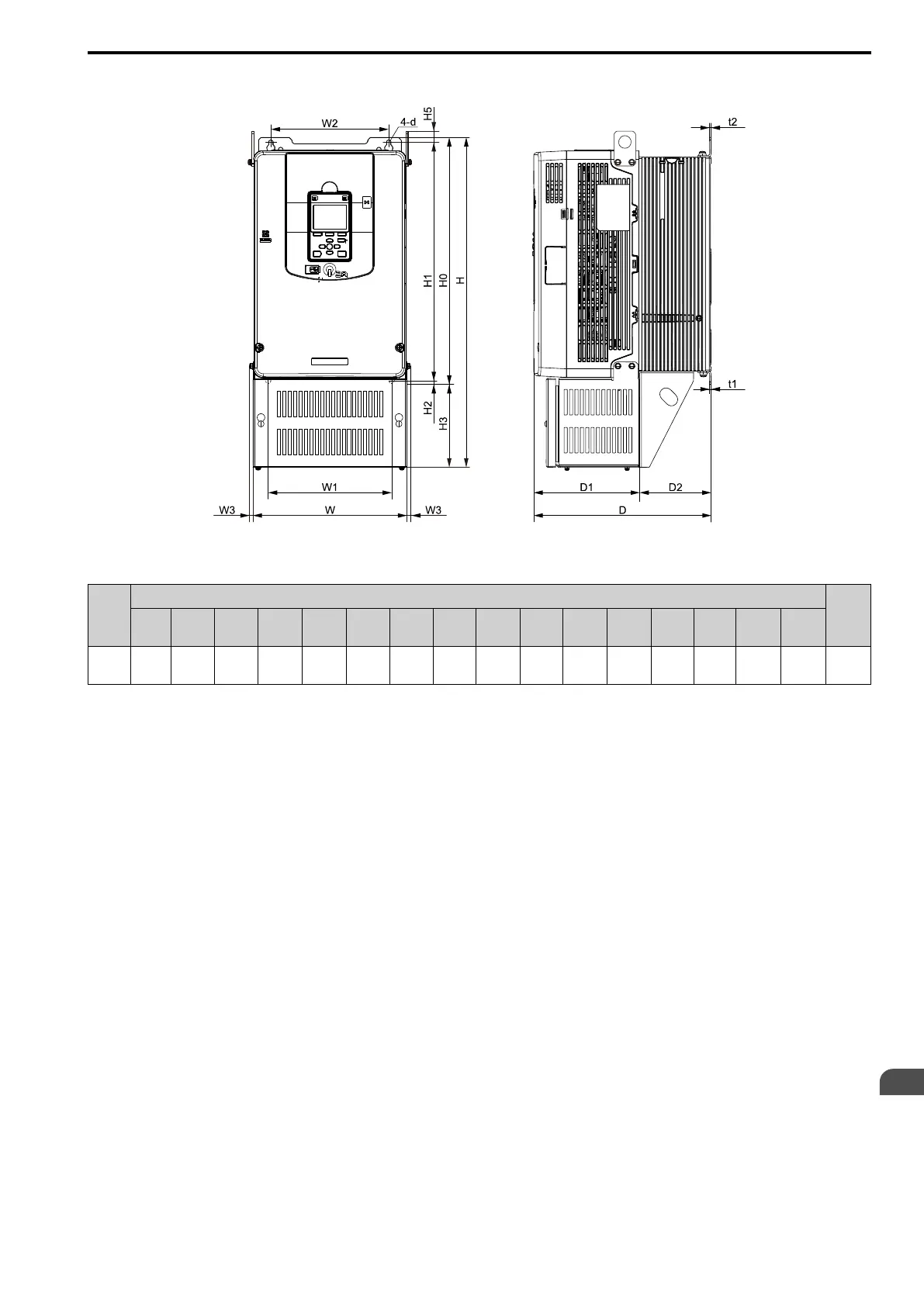
10.6 Drive Exterior and Mounting Dimensions
SIEPYEUOQ2A01A AC Drive Q2A Technical Manual 379
4075
Figure 10.13 Exterior and Mounting Dimensions Diagram 4
Table 10.30 400 V Class (UL Type 1)
Model
Dimensions mm (in.)
Weight
kg (lb.)
W H D D1 D2 W1 W2
W3
(max.)
H0 H1 H2 H3 H5 t1 t2 d
4075
244
(9.61)
500
(19.69)
280
(11.02)
166
(6.54)
114
(4.49)
195
(7.68)
186
(7.32)
10
(0.394)
400
(15.75)
375
(14.76)
17.5
(0.689)
100
(3.94)
17.5
(0.689)
2.3
(0.091)
2.3
(0.091)
M6
20
(44.09)

Table of Contents

Other manuals for Omron Q2A-A4004-AAA

Related product manuals