EasyManua.ls Logo

Omron Q2A-A4004-AAA - Page 380

Omron Q2A-A4004-AAA
844 pages
To Next Page IconTo Next Page
To Next Page IconTo Next Page
To Previous Page IconTo Previous Page
To Previous Page IconTo Previous Page
Loading...
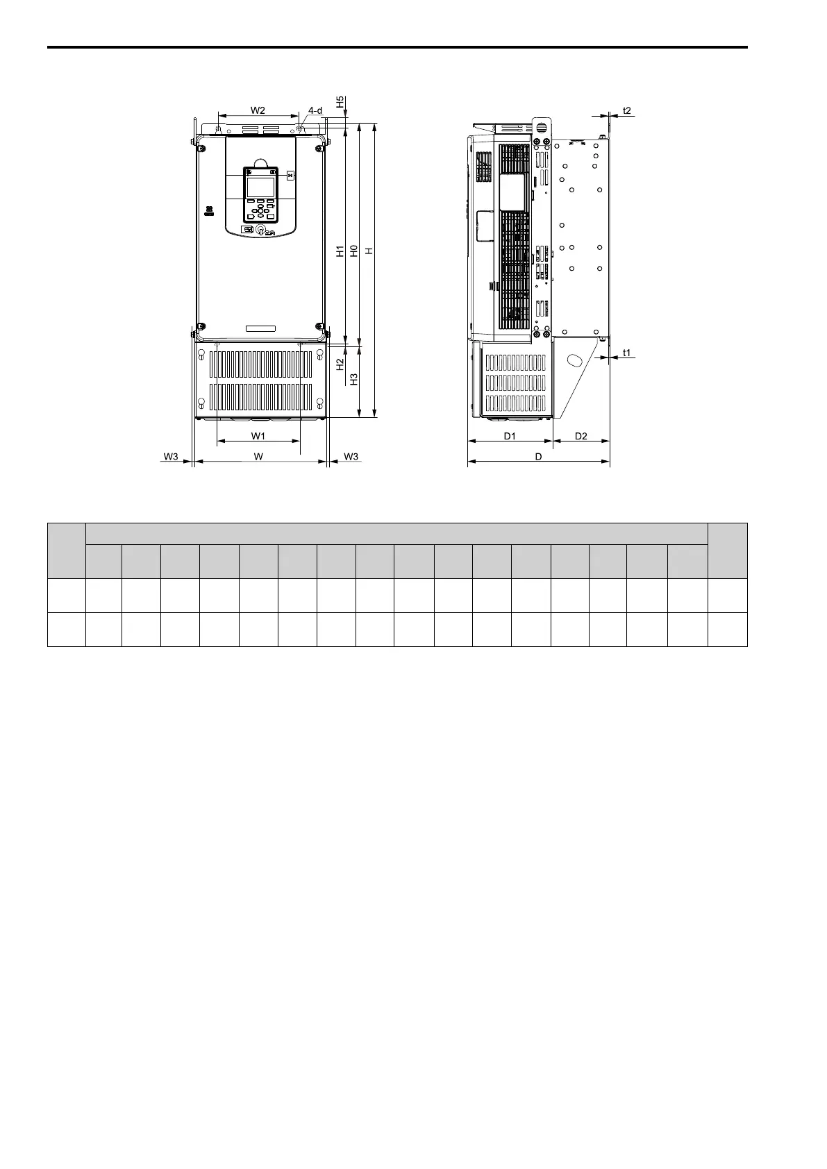
10.6 Drive Exterior and Mounting Dimensions
380 SIEPYEUOQ2A01A AC Drive Q2A Technical Manual
4089, 4103
Figure 10.14 Exterior and Mounting Dimensions Diagram 5
Table 10.31 400 V Class (UL Type 1)
Model
Dimensions mm (in.)
Weight
kg (lb.)
W H D D1 D2 W1 W2
W3
(max.)
H0 H1 H2 H3 H5 t1 t2 d
4089
259
(10.20)
580
(22.83)
280
(11.02)
166
(6.54)
114
(4.49)
170
(6.69)
165
(6.50)
10
(0.394)
450
(17.72)
424
(16.69)
16
(0.630)
130
(5.12)
21
(0.827)
2.3
(0.091)
2.3
(0.091)
M6
25
(55.11)
4103
259
(10.20)
580
(22.83)
280
(11.02)
166
(6.54)
114
(4.49)
170
(6.69)
165
(6.50)
10
(0.394)
450
(17.72)
424
(16.69)
16
(0.630)
130
(5.12)
21
(0.827)
2.3
(0.091)
2.3
(0.091)
M6
29
(63.93)

Table of Contents

Other manuals for Omron Q2A-A4004-AAA

Related product manuals