EasyManua.ls Logo

Onicon system-10 - Page 53

Onicon system-10
67 pages
Print Icon
To Next Page IconTo Next Page
To Next Page IconTo Next Page
To Previous Page IconTo Previous Page
To Previous Page IconTo Previous Page
Loading...
11451 Belcher Road South, Largo, FL 33773 • USA • Tel +1 (727) 447-6140 • Fax +1 (727) 442-5699 • sales@onicon.com
System-10-P1 Manual 09/15 - 0656-11 / 18320 A - 1 1
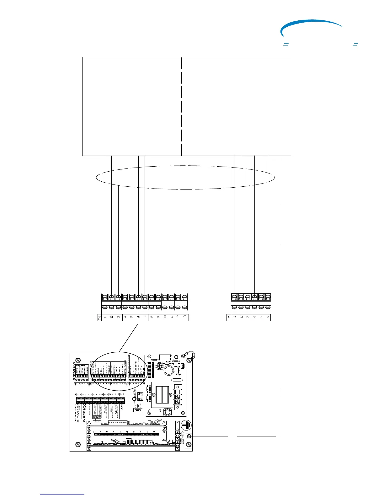
SYSTEM-10 BTU METER MOTHER BOARD
Insertion Electromagnetic
Flow Meter Input Connections
J1
5
G
60HZ
1
J2-1
+15
+24
J2-12
G
G
10
R7
H3
R1
20075-50 REV. A
LED1
T1
D1
D2
VAR1
F1
1/8 AMP
TB1
D4
D3
H1
1
Connections shown for T5-1 and T5-2
are for the same analog output from the
F-3500. This output can be configured in
the flow meter as a 4-20mA or 0 -10
VDC.
0-10 VDC + (Blue)
* Frequency - . (Yellow)
* 24VDC Supply + (Red)
* Supply Common - (Black)
* Frequency + . (Green)
F-3500 Flow Meter Connections
Connections shown with * are
required for all models.
Connections shown with (A)
are required for all
bi-directional models.
Connections shown with (B)
are required for all dual turbine models,
including bi-directional.
4-20mA + (Blue)
Scaled + (Gray)
Scaled - (Violet)
Flow Meter Inputs
* Shield
Auxiliary Flow Meter Signals
Connections shown are for flow meter
output signals not used by the Btu meter.
Both incoming and outgoing connections
are made to the same terminal.
Isolated Analog Common - (Brown)
Earth (Green/Yellow)
Factory Installed Cable
L1 N Not Used
ON
I
CON
Flow and Energy Measurement

Related product manuals