EasyManua.ls Logo

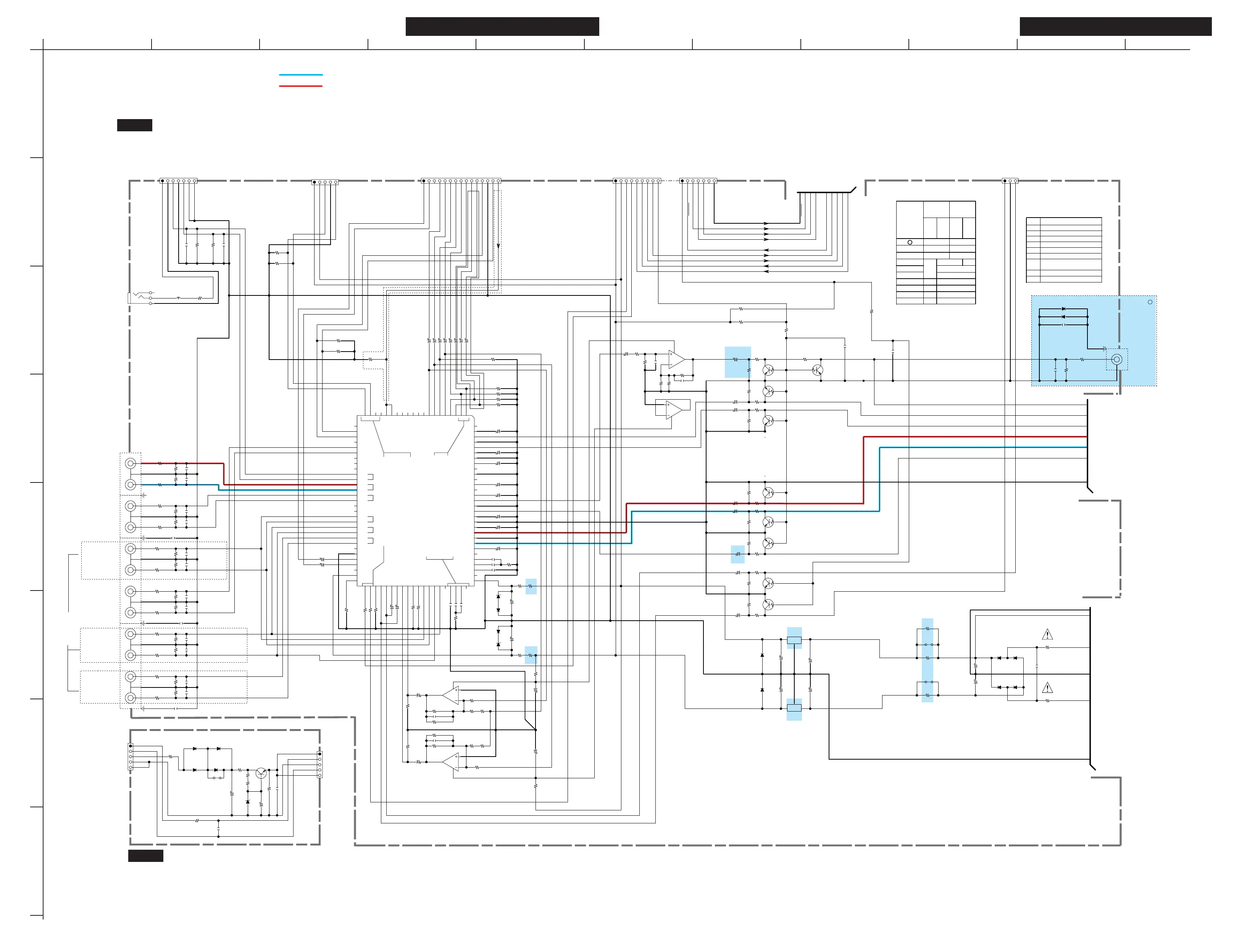
Onkyo HT-R380 - SCHEMATIC DIAGRAMS-3 a Audio INput Section; Amplifier IC;ASP Board Audio Input Schematic

Onkyo HT-R380
83 pages
To Next Page IconTo Next Page
To Next Page IconTo Next Page
To Previous Page IconTo Previous Page
To Previous Page IconTo Previous Page
Loading...
TX-SR308 HT-R280/ 380/ 538/ C230
SCHEMATIC DIAGRAMS-3a
Audio INput Section
TX-SR308 HT-R280/ 380/ 538/ C230
A
1
2
3
4
5
BCDEF GH
6
7
8
IJK
S1L+
S1L-
+22V
GND_AMP
S1_GND
DAC-SW
DMIXL
DMIXR
C
L
R
SL
SR
SW
DAC-FR
DAC-FL
VOLH
SEC1H
IPROTECT
PROTECT
VOLDATA
AMUT
VOLCLK
-15V
+15V
U_PORT_R
+15V
-15V
SPRLF
SPRLB_SPB
SPRLCS
HP_GND
Z2MUT
HPDET
AGND
GND_AMP
GND
U_PORT_L
TUN_L
TUN_R
RI
-VP
FL_2AC
FL_1AC
+3.3VMPU
RTAD
LTAD
AUX_R
DAC_FR
DAC_FL
DAC_SW
DAC_CT
DAC_SR
DAC_SL
DAC_SBR
DAC_SBL
AUX_L
GNDA_AUX
MICOUT
RI
*
TO SD-4a B-8 BAAF-0341
(MAIN AMP)
BAAF-0341
FROM SD-6 K-8 BADG-0364 (MPU SECTION)
TO SD-9 A-3 BAETC-0365 (U-PORT SECTION)
FROM SD-6 K-7 BADG-0364 (MPU SECTION)
FROM SD-6 K-6
BADG-0364
FROM SD-6 K-6 BADG-0364
VCR/DVR
Rch
Lch
OUT
CD/TV
Lch
GAME
Rch
Lch
Rch
Z2L CH
GND
Z2R CH
Downmix
Subwoofer
-7V
+7V
SW_OUT
*
SL_OUT
SR_OUT
FL/FR: -12dB
N.M
C_OUT
N.M
*N.M
*NO USE
FL_OUT
FR_OUT
C
FL
FR
SL
SR
SW
(MULTI SL IN)
(MULTI SR IN)
(MULTI FR IN)
(MULTI FL IN)
(MULTI C IN)
(MULTI SW IN)
Lch
(MULTI FL)
Rch
(MULTI FR)
DVD/BD
Rch
(MULTI SR)
Lch
(MULTI SL)
VCR/DVR
Rch
(MULTI SW)
Lch
(MULTI C)
CBL/SAT
Multi ch input
TUNER
GAME
CD/TV
CBL/SAT
VCR/DVR
DVD/BD
*
*
*
*
+15V
-15V
-12V
+12V
*
TO SD-7 K-6 BAVD-0375 (VDEO SECCION)
*
*
NC
*
*
*
RI_GND
TU_GND
MPP
+20dB
SW: +3.5dB
Z2R
Z2L
ZONE2_R
ZONE2_L
SW preout
TO SD-4aE-8BAAF-0341
( MAIN AMP)
BADIS-0373 (DIPLAY SECTION)
FROM SD-10a C-2
-VP PART13
FLAC1
FLAC2
SEC3_1
SEC3_2
FROM SD-4a A-7
BAETC-0345(TRANS TRM SECTION)
BAPS-0342
N.M
N.M N.M
+3.3VMPU
P5501B
1
2
3
4
5
6
7
P5503B
1
2
3
4
5
6
7
8
9
JL502A
1
2
3
4
5
P5504B
1
2
3
4
5
6
7
C4301
1000/35
R4161
(1W)
0.22
R4160
(1W)
0.22
C4300
334J
C4302
470/35
D4302
RL1N4003
1 2
D4303
RL1N4003
1 2
D4301
RL1N4003
1 2
D4300
RL1N4003
1 2
C4037
221J
R4027
22K
R4029
100
D4208
NC
1 2
D4218
NC
2 1
C4208102J
Q4109
RN1441
Q4108
RN1441
C4203
102J
C4204
102J
R4069
220K
R4182
220K
C4025
C4108
47/50
C4109
47/50
R4109
220K
R4108
220K
R4118
2.2K
R4119
2.2K
C407547/50
C407447/50
C407347/50
R4194
220K
C4020
221K
C4024
C4132
103J
C4065 474J
C4066 823J
C4067 223J
C4062
474J
C4063
823J
C4064
223J
C4015
NC
R4081
100K
R4080
100K
R4023
0
C4061
47/50
C4060
47/50
D4304
1SS133
D4305
1SS133
C4013
221J
C4008
221J
R4008
330
R4047
100K
R4048
100K
R4060
100K
R4059
100K
R4058
100K
R4057
100K
R4054
100K
R4053
100K
R4020
330
R4019
330
R4018
330
R4017
330
R4016
2.2K
R4015
2.2K
R4014
330
R4013
330
C4205
102J
C4018
221J
C4017
221J
C4016
NC
R4056
220K
R4055
220K
C4014
221J
R4086
1.8K
R4099
22K
R4091
22K
R4098
12K
R4090
12K
R4095
10K
Q4171
79M15
3
O
2
I
1
G
C4173
220/25
C4172
220/25
C4170
1/50
C4171
1/50
R4177
47
R4174
68
R4176
47
C4057
47/25
C4056
47/25
C4053
47/25
C4054
47/25
C407147/50
C407047/50
C407247/50
C407747/50
C407647/50
R4192
220K
R4196
220K
R4195
220K
R4193
220K
R4082
100K
R4107
VAL
C4107
VAL
Q4130B
NJM4580
5
6
8
7
R4130
220
Q4130A
NJM4580
3
2
1
4
R4131
47K
C4131
221J
C4130
47/50
R4089 0
C4050
47/25
C4051
47/25
C4052
47/25
R4117
270
R4181
220K
Q4117
RN1441
R4127
100
R4085
1.8K
C4187
470/25
D4171
MTZJ6.2B
D4174
1SS133
D4172
MTZJ6.2B
R4303 5.1K
R4304
5.1K
R4175
68
Q4003A
NJM4580
1
2
3
4
Q4003B
NJM4580
7
8
6
5
R4088 10K
R4087
10K
R4079
47K
R4078
47K
Q4107
RN1441
C4210
47/25
C4209
47/25
Q4104
RN1441
R4134
10K
R4103
220K
R4113
2.2K
C4103
47/50
C4104
47/50
R4104
220K
R4114
2.2K
R4101
220K
Q4101
RN1441
C4101
47/50
C4100
47/50
Q4100
RN1441
R4100
220K
C4102
47/50
R4102
220K
R4112
2.2K
Q4102
RN1441
R4110
2.2K
R4111
2.2K
R4167
22
C4167
220/25
R4166
22
C4166
220/25
R4190
220K
R4189
220K
R4094
10K
C4004
221K
R4007
330
R4044
100K
R4043
100K
R4003
330
R4004
330
R4067
100K
R4068
100K
R4000
330
C4003
221K
C4019
221K
C4186
470/25
Q4103
RN1441
Q4001
R2A15218FP
80
N.C.
79
IN-L9
78
IN-R9
77
N.C.
76
INLA/RECL1
75
INRA/RECR1
74
N.C.
73
IN-L8
72
IN-R8
71
IN-L7
70
IN-R7
69
IN-L6
68
IN-R6
67
IN-L5
66
IN-R5
65
IN-L4
64
IN-R4
63
IN-L3
62
IN-R3
61
IN-L2
60
IN-R2
59
IN-L1
58
IN-R1
57
N.C.
56
AGND
55
ADCR
54
ADCL
53
N.C.
52
AVEE
51
MUTE
50
CLOCK
49
DATA
48
DGND
47
SUBR
46
SUBL
45
SBLC-IN
44
SBRC-IN
43
FR-IN2
42
FL-IN2
41
SR-IN2
40
SL-IN2
39
SW-IN2
38
C-IN2
37
SBR-IN2
36
SBL-IN2
35
N.C.
34
TRER
33
BASS-R2
32
BASS-R1
31
N.C.
30
AVCC
29
N.C.
28
TREL
27
BASS-L2
26
BASS_L1
25
N.C.
24
FRC
23
FR-OUT
22
AGND
21
FL-OUT
20
FLC
19
AGND
18
CC
17
C-OUT
16
AGND
15
SW-OUT
14
SWC
13
N.C.
12
SRC
11
SR-OUT
10
AGND
9
SL-OUT
8
SLC
7
AGND
6
SBRC
5
SBR-OUT
4
AGND
3
SBL-OUT
2
SBLC
1
N.C.
100
SBR-IN1
99
SBL-IN1
98
SR-IN1
97
SL-IN1
96
SW-IN1
95
C-IN1
94
FR-IN1
93
FL-IN1
92
N.C.
91
RECL3
90
RECR3
89
N.C.
88
N.C.
87
N.C.
86
INL11/RECL5
85
INR11/RECR5
84
INL10/RECL4
83
INR10/RECR4
82
INLB/RECL2
81
INRB/RECR2
(Botom view)
Q4170
78M15
3
O
2
G
1
I
R4001
10
R4002
10
P4000
P4002
4
2
1
3
P4003
4
2
1
3
P4005
7
2
1
3
5
4
6
P4006
7
2
1
3
5
4
6
J6500
J6501
P4009
2
3
1
R4213
0
R4092
330
R4093
3.3K
R4096
330
R4097
3.3K
C4091 101J
C4090 101J
R4133
1.2K
R4132
15K
C4007
221J
D4173
1SS133
C4085
47/25
C4086 47/25
JL503A
NSCT-3P876
1
2
3
C4001
152J
C4002
152J
R4005
15
R962
8.2K
JL953B
NPLG-5P590
1
2
3
4
5
JL951B
NSCT-5P99
5
4
3
2
1
C962 104Z
Q960
2SC2235
R964
33K
R963
8.2K
D961
RL1N4003
C961 47/50(VR)
R961
220(1W)
R950
8.2(1/2W)
C960
220/63(VR)
C950
104J
D962
UDZS36B
R960
8.2(1/2W)
J960
D960
RL1N4003
D964
KDS4148U
2 1
D965
KDS4148U
2 1
L4001
LBC2518T2R2M
P5502B
1
2
3
4
5
6
7
8
9
10
11
12
13
14
15
C4055
47/25
BAAF-0341
A
U0010
AMP (IC), ASP PC BOARD
U0011 -VP PC BOARD BAPS-0342
DC Canadian model
DD USA model
DF Taiwanese model
MO Saidi Arabian model
MQ Hong kong model
PA Australian model
PB U.K. model
PP
MP CE(European) country model
MR Chinese model
JJ Japanese model
NOTE
DEL:Deletion
ADD:Addition
AUDIO ANALOG SIGNAL(TV/CD)
FRONT L
FRONT R
PROTECT
IPROTECT
VOLH
SEC1H
HP_GND
SPRLCS
SPRLB_SPB
SPRLF
HPDET
TO SD-4a K-5 BAAF-0341
(MAIN AMP)
MMO
MPP
HT-R380
HT-R280
A
MDD
MDC
MDF
MDD
MDC
MPP
2.2uF/50V
47uF/50V
C4107
2.2K
R4107
R4001
220K
MMO
MMQ
MMR
TX-SR308
HT-RC230
HT-R538
J6500
J6501
Q4170
78M15
78M12
79M12
Q4171
R4176
R4177
79M15
47
15
R4005
R4002
10
15
10
ADD
ADD
DEL
DEL
DEL
DEL

Other manuals for Onkyo HT-R380

Related product manuals