EasyManua.ls Logo

Onkyo TX-NR3007

Onkyo TX-NR3007
281 pages
To Next Page IconTo Next Page
To Next Page IconTo Next Page
To Previous Page IconTo Previous Page
To Previous Page IconTo Previous Page
Loading...
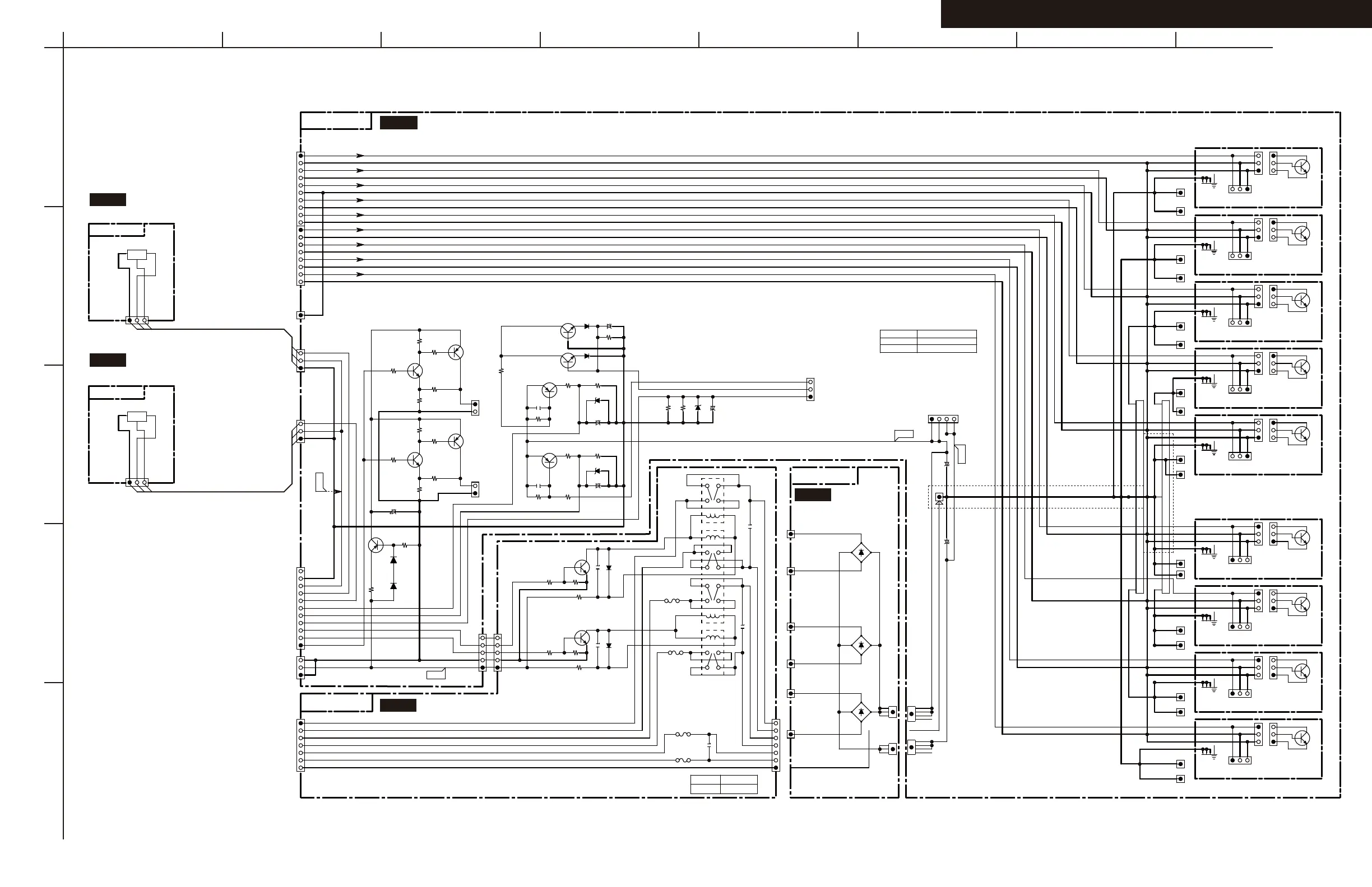
SCHEMATIC DIAGRAMS-3 / PART-8
AMP3 (POWER SUPPLY, PROTECT ,ETC.) SECTION
TX-NR1007/3007/5007/NA1007/5007, DTR-70.1/80.1
A
1
2
3
4
5
B C D E F G H
IPRO
FANCTRL
VPRO
GND_NFC
+12V
GND_12V
+B1
VOLH
-B1
C
inputRH
inputL
L
R
VOLH
IPROTECT
VPROTECT
+3.3VDG
GNDDG
THERMAL_1
THERMAL_2
SEC1H
SEC1M
GND_inputSL
GND_NFLH
GND_NFR
GND_NFRH
GND_NFL
GND_inputL
GND_NFSR
GND_NFSBR
GND_NFSBL
inputSR
inputSL
inputLH
GND_inputLH
GND_inputR
GND_inputSR
GND_inputC
SBR
RH
SR
SBL
LH
SL
inputR
inputC
GND_inputRH
GND_inputSBR
inputSBR
GND_inputSBL
inputSBL
GND_NFSL
GNDDG_2
+3.3V_2
THER_2 THER_1
+3.3V_1
GNDDG_1
S1L-
S1L+
GND_AMP
S1H-
S1M+
S1M-
S1H+
L side
R side
From Main Trans
PART-24 : F4,H4,I4
TO BAAMP-0191
PART-7 : G1
TO BAAMP-0192
PART-7 : J1
PROTECT
C
P6400
BUS PLATE
R
L
500mA(max)
FAN
SL
LH
SBL
SR
RH
SBR
BCETC-0183
BCETC-0184
MID-B
HI-B
LO-B
Trans center tap
MODELF6601~04
20A 250V ALL
C6901 C6902 MODEL
1007,3007,70.1
5007,80.1
18000u/75v
22000u/75v
TO BADG-0208
PART-18 : J8
BATRM-0215
PART-23 : E3
(From Part-7) (From Part-7)
(From Part-7) (From Part-7) (From Part-7)
(From Part-7) (From Part-7)
(From Part-7)
(From Part-7)
(To Part-6) (To Part-6) (To Part-6) (To Part-6) (To Part-6) (To Part-6) (To Part-6) (To Part-6) (To Part-6)
TO BAAMP-0191
PART-7 : F8
TO BAASP-0202
PART-10 : K2
TO BAASP-0202
PART-10 : K2
C6706
10/50
+
D6222
1SS133
2
1
D6221
1SS133
2
1
C6902
LIST
+
R6709
5.6K
C6901
LIST
+
P6340
1
2
3
4
R6222
(1W)
1
JL6041A
1
2
3
JL6900A
1
2
3
P6601I
#18
1
D6704
MTZJ3.3B
C6704
1/50
+
D6703
MTZJ3.3B
R6706
22K
R6704
33K
R6701
22K
D6702
1SS133
Q6551
2SA950
Q6560
2SC1815
R6560
4.7K
C6222
220/25
Q6561
2SA950
R6550
4.7K
R6223
5.6K
R6564
22K
R6563
1.2K
R6561
330
R6562
1.8K
R6554
22K
R6553
1.2K
R6552
1.8K
R6551
330
C6703
223J
R6702
10K
R6708
33K
P6550
2
1
R6712
10K
C6713
223J
R6716
22K
D6713
MTZJ3.3B
C6714
1/50
+
R6714
33K
P6140B
#18
P6140A
#18
1
P6140E
#18
1
P6140G
#18
1
P6140C
#18
1
P6140F
#18
1
P6140D
#18
1
JL6602A
5
4
3
2
1
Q6000
2SC1740S-S
P5020B
P5030B
3
2
1
Q6002
2SC1740S-S
P6012B
3
2
1
P5022B
Q6001
2SC1740S-S
P6011B
3
2
1
P5021B
Q6004
2SC1740S-S
P5024B
Q6008
2SC1740S-S
P6018B
3
2
1
P5028B
P5018B
3
2
1
Q6006
2SC1740S-S
P6016B
3
2
1
P5026B
P5016B
3
2
1
Q6005
2SC1740S-S
P5025B
P5035B
3
2
1
Q6003
2SC1740S-S
P5023B
Q6007
2SC1740S-S
P5027B
P5037B
3
2
1
R6710
15k
P5002A
#18
1
P6603
nejitanshi
P6602
nejitanshi
P5014B
3
2
1
P5032B
3
2
1
P5034B
3
2
1
P5038B
3
2
1
P5036B
3
2
1
P5031B
3
2
1
P5010B
3
2
1
P5015B
3
2
1
P5017B
3
2
1
P5033B
3
2
1
D6701
1SS133
R6721
NC
C6701
330/16
+
JL6402B
1
2
3
3
JL6403B
P6402
1
2
3
P6401
1
2
3
P6010B
3
2
1
P6015B
3
2
1
P6017B
3
2
1
P6013B
3
2
1
P6560
1
2
P6140I
#18
1
P6140H
#18
1
JL6403A
3
2
1
Q6381
LM61CIZ
1
G
2
O
3
V
JL6402A
3
2
1
Q6380
LM61CIZ
1
G
2
O
3
V
P6601E
#18
1
P6601F
#18
1
P6601G
#18
1
P6601H
#18
1
P6601D
#18
1
P6603B
kanagu
P6602B
kanagu
D6611
LN25XB60
D6621
LN25XB60
D6601
LN25XB60
4
3
1
2
4
3
1
2
4
3
1
2
P6601C
#18
1
D6602
1SS133
C6601
102J
R6602
4.7K
Q6611
2SC1740S
C6602
334J/250V
C6611
102J
D6612
1SS133
R6612
4.7K
R6611
1K
R6601
1K
Q6601
2SC1740S
F6604B
F6603B
F6603A
F6604A
C6622
334J/100V
C6612
334J/100V
F6602B
F6602A
P6500
7
6
5
4
3
2
1
JL6602B
1
2
3
4
5
P6601A
7
6
5
4
3
2
1
F6601B
F6601A
RL6602
1
2
3 4
5
6
RL6611
3
2
1 6
5
4
RL6612
1
2
3 4
5
6
RL6601
3
2
1 6
5
4
Q6226
2SB1240
3
1
2
Q6701
2SC240-BL
Q6702
2SC2240-BL
Q6703
2SA970-BL
Q6713
2SA970-BL
P5000A
10
9
8
7
6
5
4
3
2
1
P5001A
8
7
6
5
4
3
2
1
P6240I
#24
1
P6240H
#24
1
P6240F
#24
1
P6240D
#24
1
P6240B
#24
P6240A
#24
1
P6240C
#24
1
P6240E
#24
1
P6240G
#24
1
+3.3V
P7210A
1
2
3
4
5
6
7
8
9
10
11
Q6550
2SC1815
P5013B
1
2
3
P5011B
3
2
1
P6014B
3
2
1
P5012B
3
2
1
+12.5V
+60V
-60V
R6603
(1/2W)
22
R6613
(1/2W)
22
U0012
RELAY PC BOARD
U0011
DIODE PC BOARD
U0013
THERMAL SENS PC BOARD
U0014
THERMAL SENS PC BOARD
BAAF-0180
U0010
POWER SUPPLY PC BOARD
BAPS-0182
BAPS-0181
1
2

Other manuals for Onkyo TX-NR3007

Related product manuals