EasyManua.ls Logo

Onkyo TX-SR803E - Zone 2 - Multiroom Control Kits; Using Multiroom Kits with Zone 2 and Cabinets; Using Multiroom Kits with Other Components

Onkyo TX-SR803E
104 pages
Print Icon
To Next Page IconTo Next Page
To Next Page IconTo Next Page
To Previous Page IconTo Previous Page
To Previous Page IconTo Previous Page
Loading...
85
Zone 2
—Continued
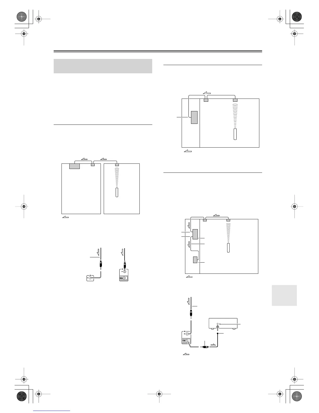
To control the AV receiver with the remote controller
while you’re in the Zone 2 room, you’ll need a commer-
cially available multiroom remote control kit.
Multiroom kits are made by Niles and Xantech.
These kits can also be used when there isn’t a clear line
of sight to the AV receiver’s remote sensor, such as when
it’s installed inside a cabinet.
Using a Multiroom Kit with Zone 2
In this setup, the IR receiver in Zone 2 picks up the infra-
red signals from the remote controller and feeds them
through to the AV receiver in the main room via the con-
necting block.
The miniplug cable from the connecting block should be
connected to the AV receiver’s IR IN jack, as shown
below.
Using a Multiroom Kit with a Cabinet
In this setup, the IR receiver picks up the infrared signals
from the remote controller and feeds them to the AV
receiver located in the cabinet via the connecting block.
Using a Multiroom Kit with Other
Components (TX-SR803/803E Only)
In this setup, an IR emitter is connected to the
TX-SR803/803E’s IR OUT jack and placed in front of
the other component’s remote control sensor. Infrared
signals received at the AV receiver’s IR IN jack are fed
through to the other component via the IR emitter. Sig-
nals picked up by the TX-SR803/803E’s remote control
sensor are not output.
The IR emitter should be connected to the
TX-SR803/803E’s IR OUT jack, as shown below.
Using the Remote Controller in
Zone 2 and Multiroom Control Kits
Connecting
block
Remote controller
IR Receiver
Main room Zone 2
Signal flow
TX-SR803/803E
TX-SR703/703E/8370
From the connecting block
Miniplug cable
IR IN
Connecting
block
Remote controller
IR Receiver
Inside
cabinet
Signal flow
TX-SR803/803E
IR IN
IR OUT
Connecting
block
IR Receiver
Remote controller
Signal flow
IR Emitter
Other component
TX-SR803/803E
Remote control
sensor
Other component
Emitter
IR Emitter
Signal flow
Miniplug
Miniplug cable
TX-SR803En.book Page 85 Friday, August 26, 2005 9:26 AM

Table of Contents

Related product manuals