EasyManua.ls Logo

OSCO MSG-A - STRING METHOD FOR NONSTANDARD INSTALLATION

Default Icon
36 pages
Print Icon
To Next Page IconTo Next Page
To Next Page IconTo Next Page
To Previous Page IconTo Previous Page
To Previous Page IconTo Previous Page
Loading...
MSG-A • MSG-D OPERATOR INSTALLATION GUIDE
- 6 -
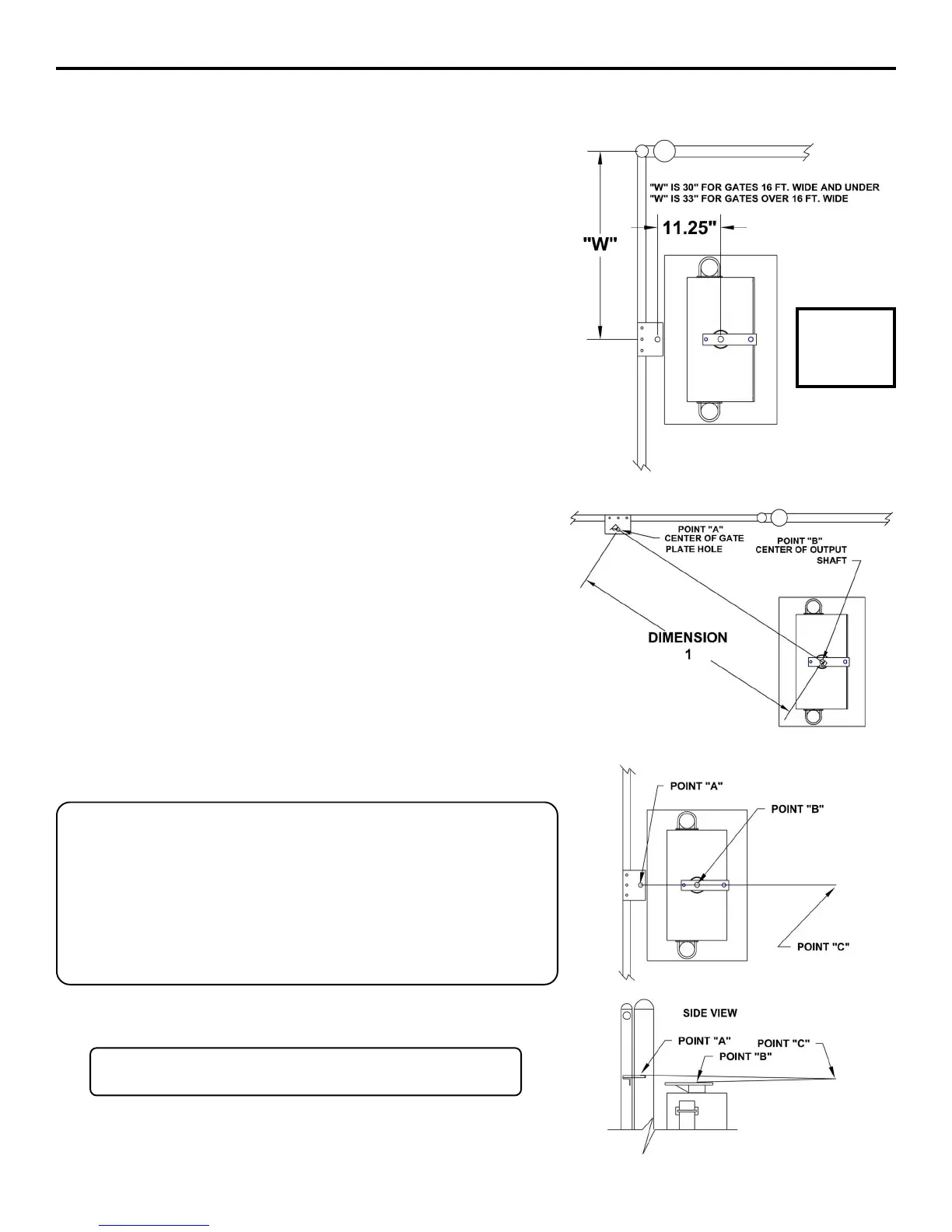
STRING METHOD FOR NONSTANDARD INSTALLATION OF SWING GATE OPERATORS
Step A: Position the Operator
1. Connect the gate plate assembly onto the gate at the recommended
location for a standard installation (Dimension “W”).
2. Open the gate to its fully-open position.
3. Position the operator parallel to the gate. The distance from the operator
output shaft to the gate plate pivot point is shown at right. The operator
should be positioned the same distance from the gate hinge as the gate
plate has been; ie: the “W” dimension.
Step B: Measure the Crank Extension and Link Center to Center
Distances
1. Close the gate.
2. Using a piece of tape, attach a string to the top of the operator output
shaft, at its center. Holding the string taut and using another piece of
tape, hold the other end of the string across the hole in the gate plate.
This distance is Dimension 1. Carefully measure this dimension and
write it down.
3. Open the gate.
4. Pick up the string, while it is still attached at both ends, and pull it taut
again while positioning it directly over the center of the operator shaft, at
Point “B, and work your way back along the string until you reach
Point “C.
5. While holding the string taut, measure the distance from Point “B” to
Point “C. This is the required center to center distance for the crank
extension.
6. Measure the distance from Point “A” to Point “C. This is the required
center to center distance for the link section.
7. When added together, the distances from Point “A” to Point “B” and
Point “B” to Point “C” should equal the Dimension 1 measurement.
These measurements will be needed when placing an order for special
length crank extensions and links. Also note that the measurements you
have just calculated are center to center only, and are not overall dimen-
sions, which would also include other attachment hardware, such as gate
arm clamps.
It is also possible that both open and closed limit switches may be acti-
vated at either end of gate travel due to the total gate travel required, and
the shape of the limit switches and cams. This problem can be corrected
by carefully bending the limit switch arm slightly and readjusting its cam.
PLEASE NOTE: Your operator may look different when installed.
The drawings on this page are for general reference only.
DOOR MUST
FACE AWAY
FROM
DRIVEWAY

Table of Contents

Related product manuals