EasyManua.ls Logo

Otis Elevator HydroFit - Machine Room Tank Diagram

Otis Elevator HydroFit
60 pages
Print Icon
To Next Page IconTo Next Page
To Next Page IconTo Next Page
To Previous Page IconTo Previous Page
To Previous Page IconTo Previous Page
Loading...
20
HYDROFIT Owner’s Information Manual
WARNING: The use and ownership of this work is defined in the legend upon the front page hereof.
In the hydraulic elevator, it is the volume of oil being added into the cylinder (and not the
pumping action of the pump) that causes the plunger to lift. The pump does not pump
pressure, it only produces flow. Pressure results from the restriction of the hydraulic oil to
flow.
The four key physical requirements for hydraulic lifting are the motor, the pump, the
control valve, and the plunger/cylinder assembly. The various hydraulic models employed
by Otis each use the technology in slightly different ways. As this chapter moves forward,
those differences will be presented.
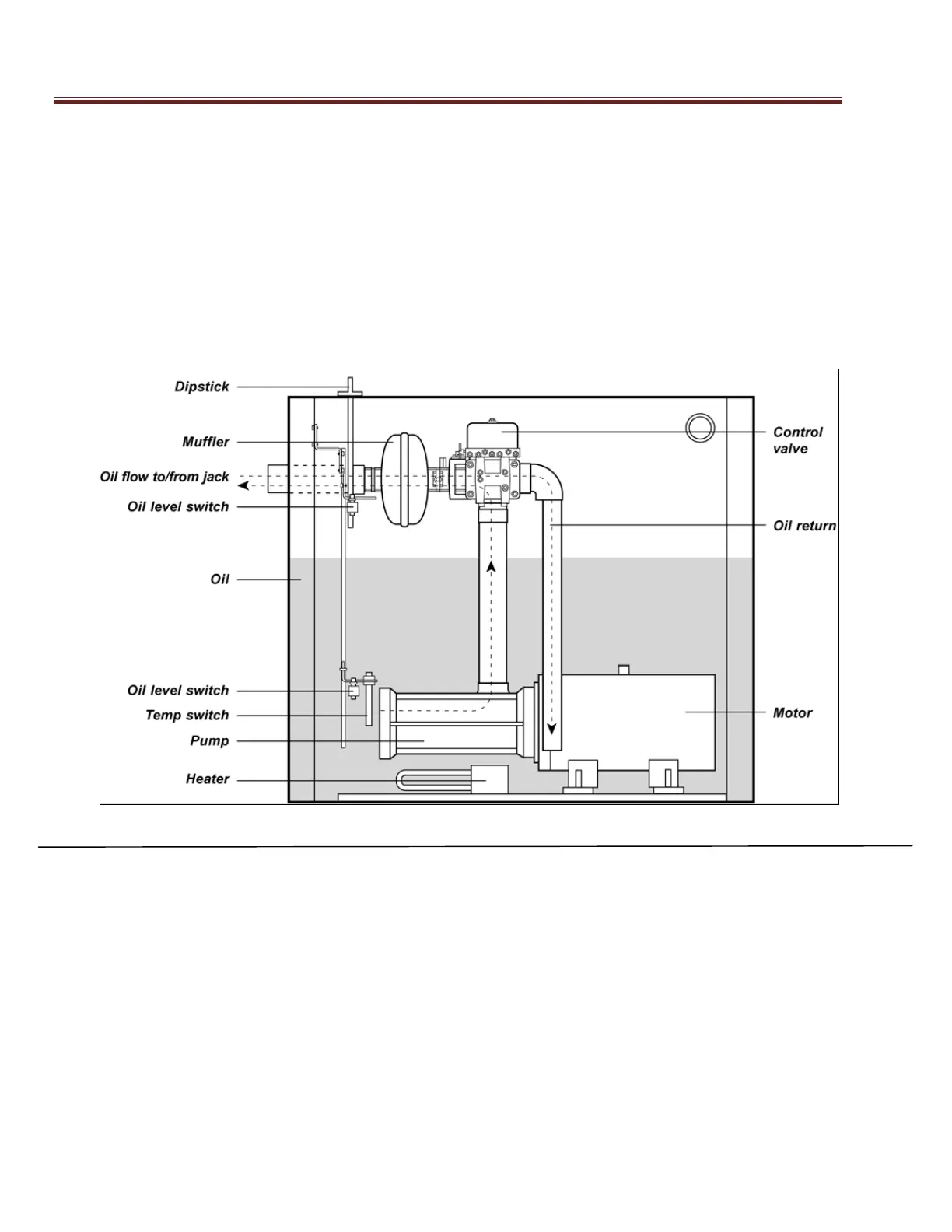
HydroFit/HydroAccel Machine Room Tank

Table of Contents