EasyManua.ls Logo

Oval ALTI mass CA003 - 12 About Maritime Certification

Default Icon
162 pages
Print Icon
To Next Page IconTo Next Page
To Next Page IconTo Next Page
To Previous Page IconTo Previous Page
To Previous Page IconTo Previous Page
Loading...
L
--
740
--
28
--
E
1
12. ABOUT MARITIME CERTIFICATION
ALTImass transmitter is approved of the maritime certification under below conditions:
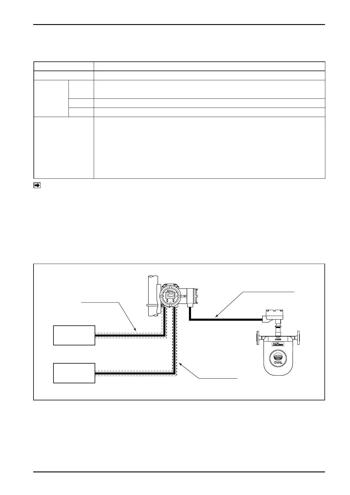
Regarding Cable Wiring
If using ALTImass as certified equipment for maritime applications, use metal conduit tube, marine cable
(with shield), etc. for the power and signal cables and connect shielded sections to the transmitter
housing.
Be sure to use the dedicated cable for the connection between the sensor and the transmitter, and
implement waterproofing treatment which satisfies IP56.
Item Contents
Classification Society DNV GL
Unitable
Sensor
TypeU
CA00A, CA001, CA003, CA006, CA010, CA015, CA025, CA040, CA050, CA080
(CA100, CA150, CA15H, CA200, CA20H, CA250) 1
TypeS CS010, CS015, CS025, CS040, CS050, CSR50, CS080
TypeB CB006, CB010, CB015, CB025, CB040, CB050
Location Classes
Temperature  D  (25 to 55 )
Humidity    B  (Relative Humidity: less than 100%)
Vibration    A  
(2 to 13.2Hz with 1mm amplitude, 13.2 to 100Hz with 0.7g acceleration)
Install at the place where mechanical vibration from engine,
compressor, pump and so on is not introduced into transmitter
directly.
EMC      A  (All locations except bridge and open deck)
Enclosure    C  (IP56)
N O TE :
1. Sensors in parentheses are certified only as separately mounted type.
Fig.12.1
DedicatedCable
PowerCable
SignalCable
Power
Source
Receiver

Table of Contents

Related product manuals