EasyManua.ls Logo

Oval LS5076 - ストレーナ; Strainer

Oval LS5076
46 pages
Print Icon
To Next Page IconTo Next Page
To Next Page IconTo Next Page
To Previous Page IconTo Previous Page
To Previous Page IconTo Previous Page
Loading...
S-177-1
(
E)

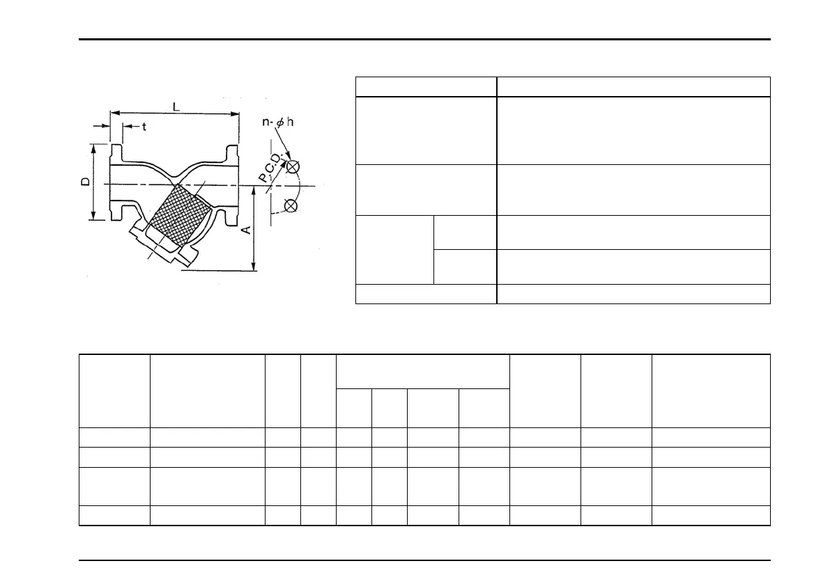
11.2 ストレーナ
Strainer
●仕様 Specifications
項目 Item 内  容    Description
使用温度範囲
(流体温度)
Operating Temp.
Range (fluid temp.)
0 ~+120℃     0 to +120℃
最高使用圧力
Max. Operating
Pressure
1.18MPa(12kgf/cm
2
材料
Materials
本体
Body
FC250
ネット
Net
SUS304
塗装色 Finish マンセル2.5YR6/13  Munsell 2.5YR6/13
S-177-1
(
E)
45
単位:mm  Dimensions in millimeters
形  式
Strainer
Model
呼び径
フランジ規格
Nominal Dia.
Flange Rating
L A
フランジ
Flange
概算質量
Weight
kg
ネット
メッシュ
Net
Mesh
対応フロー
ペット-NX
Applicable
Flowpet-NX
D t P.C.D. n-φh
SS5278A 20A JIS 10K RF 125 82 100 18 75 4-15 3.4 80 LS5076-2 A
SS5378A 25A JIS 10K RF 140 104 125 18 90 4-19 5.3 60 LS5276-2 A
SS5578A 40A JIS 10K RF 170 129 140 20 105 4-19 7.7 60
LS5376-2 A
LS5576-2 A
SS5678A 50A JIS 10K RF
190 153 155 20 120
4-19 9.6
60
LS5676-2 A

Table of Contents

Related product manuals