EasyManua.ls Logo

Panasonic CS-E15DB4EW - Page 88

Panasonic CS-E15DB4EW
98 pages
Print Icon
To Next Page IconTo Next Page
To Next Page IconTo Next Page
To Previous Page IconTo Previous Page
To Previous Page IconTo Previous Page
Loading...
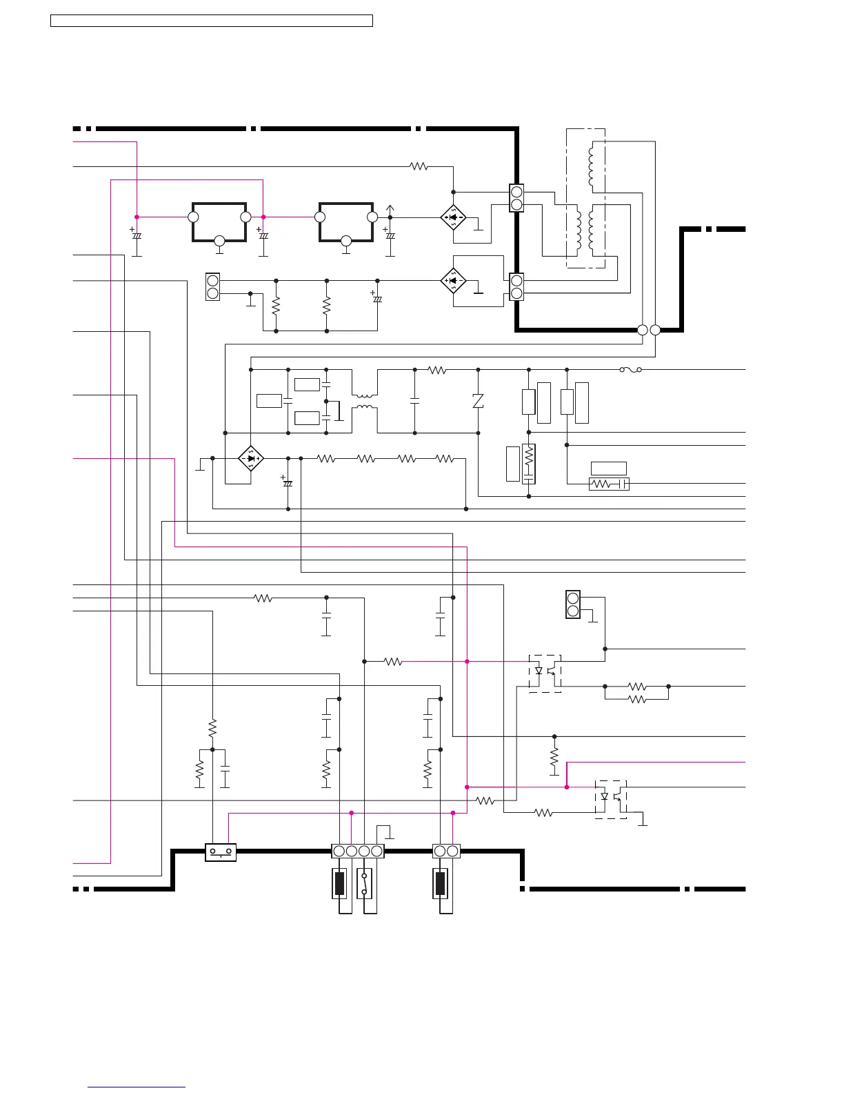
SCHEMATIC DIAGRAM 3/4
C31
0.01µ
C05
1µ
CN-TH2
CN-TH1
SW02
AIR
TEMP
SENSOR
(15k 3950)
DRAIN PUMP
TEST RUN
FLOAT
SW
4
3
2
1
PIPE
TEMP
SENSOR
(20k 3950)
1
2
R55
10k
R54
1k
12
R57
1k
R56
10k
R33
15k
C04
1µ
R31
20k
R39
160
R36
1k
C40
1000p
C29
1000p
2
1
2
1
2
3
4
1
NR
DB01
CN-T1
T01
A40C1030
CN-T2
1
2
CN-V2
2
3
4
1
DB03
C17
3300µF
35V
C13
470µF
63V
C11
0.22µ
C16
470µF
25V
C18
100µF
16V
12V
IC04
O
G
I
5V
IC03
O
G
I
R61
5.1k
R05
22k
1/4W
R69
22k
1/4W
R59
7.5
10W
R66
82k
1/4W
R65
82
1/4W
R64
82k
1/4W
R63
82k
1/4W
DB02
C33
C37
270µ
450V
SSR02
CR02
C19 L01
ZNR01
511U
FUSE01
T3.15A L 250V
C24
SSR01
CR01
1
2
CN-V1
4
1
2
3
PC05
B3PAA0000209
R26
6.2k1/4W
R23
6.2k1/4W
4
1
2
3
PC03
B3PAA0000209
R02
20k
88
CS-E15DB4EW CU-E15DBE / CS-E18DB4EW CU-E18DBE / CS-E21DB4ES CU-E21DBE

Table of Contents

Related product manuals