EasyManua.ls Logo

Panasonic CS-E18HKEW - Refrigeration Cycle Diagram

Panasonic CS-E18HKEW
70 pages
Print Icon
To Next Page IconTo Next Page
To Next Page IconTo Next Page
To Previous Page IconTo Previous Page
To Previous Page IconTo Previous Page
Loading...
19
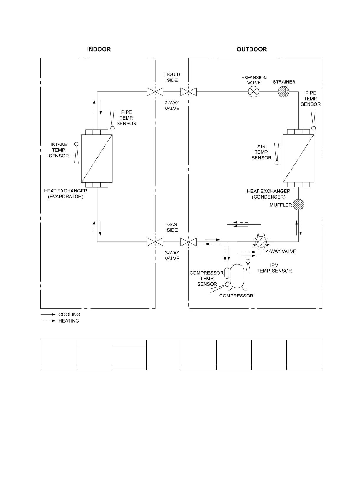
6 Refrigeration Cycle Diagram
Piping size Rated
Length
(m)
Max
Elevation
(m)
Min.
Piping
Length
(m)
Max.
Piping
Length
(m)
Additional
Refrigerant
(g/m)
Model Gas Liquid
E18HKE 1/2” 1/4” 5 15 3 20 20
* If piping length is over common length, additional refrigerant should be added as shown in the table.

Table of Contents

Related product manuals