EasyManua.ls Logo

Panasonic CS-Z20VKEW

Panasonic CS-Z20VKEW
213 pages
To Next Page IconTo Next Page
To Next Page IconTo Next Page
To Previous Page IconTo Previous Page
To Previous Page IconTo Previous Page
Loading...
34
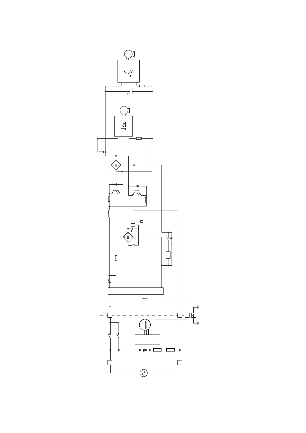
8.2 CS-Z25VKEW CU-Z25VKE CS-Z35VKEW CU-Z35VKE
CS-Z42VKEW CU-Z42VKE CS-XZ25VKEW CU-Z25VKE
CS-XZ35VKEW CU-Z35VKE
2
(OUTDOOR UNIT)
S1
3
RY-PWR
TEMP. FUSE
U
FUSE301
SC
M
TEMP. FUSE
(INDOOR UNIT)
SINGLE
PHASE
POWER
SUPPLY
RY-PWR2
N
L1
MS
3 ~
MS
3 ~
FUSE3
IC19
DB101
FUSE6
FUSE5
REACTOR
4-WAYS
VALVE
SC
DB1
FUSE8
TH1
NTC
RY-PWR
RY-AC
PTC
PTC2
SEN1
NOISE FILTER
FUSE1

Table of Contents

Other manuals for Panasonic CS-Z20VKEW

Related product manuals