EasyManua.ls Logo

Panasonic CS-Z20VKEW

Panasonic CS-Z20VKEW
213 pages
To Next Page IconTo Next Page
To Next Page IconTo Next Page
To Previous Page IconTo Previous Page
To Previous Page IconTo Previous Page
Loading...
41
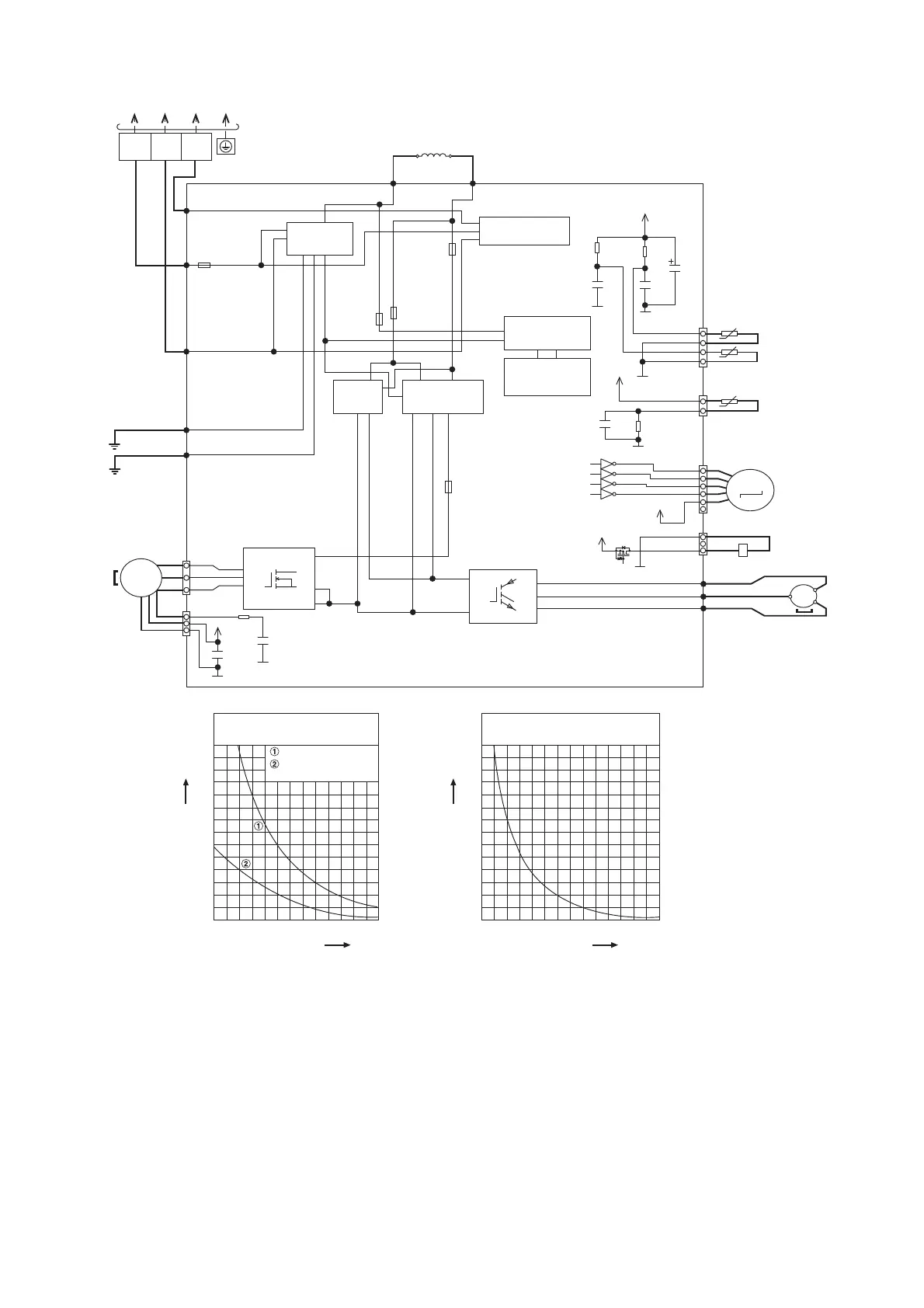
10.2.2 CU-Z25VKE CU-Z35VKE CU-Z42VKE CU-Z50VKE CU-Z71VKE
Sensor (Thermistor)
Characteristics
70
60
50
40
30
20
10
0
-10 0 10
Temperature (
o
C)
Resistance (kΩ)
20 30 40 50
Outdoor Air Sensor
Outdoor Heat Exchanger
Sensor
Compressor Temp. Sensor
(Thermistor) Characteristics
70
60
50
40
30
20
10
0
20 40 60
Temperature (
o
C)
Resistance (kΩ)
80 100 120 140
M
TO INDOOR UNIT
TERMINAL
BOARD
S1 2 3
RED
GRY GRY
REACTOR
RAT2
(GRY)
RAT1
(GRY)
DATA
(RED)
BLK
AC-BLK
(BLK)
WHT
GRN
GRN
FAN
MOTOR
FUSE 1
FOR Z25/35/42VK
(20A 250V)
FOR Z50/71VK
(25A 250V)
FUSE 3
T3.15A L250V
AC-WHT
(WHT)
FG1 (GRN)
CN-MTR2
(WHT)
CN-MTR1
(RED)
FG2 (GRN)
1
10
P
N
U
U (RED)
V (BLU)
W (YLW)
CN-STM1
(WHT)
V
W
Q1
14
W
IC19
U
V
16
1
3
3
5
NOISE FILTER
CIRCUIT
RECTIFICATION
CIRCUIT
PFC
CIRCUIT
COMMUNICATION
CIRCUIT
RECTIFICATION
CIRCUIT
SWITCHING
POWER
SUPPLY CIRCUIT
CN-TH1
(WHT)
CN-TANK
(WHT)
CN-HOT
(WHT)
1
1
1
1
3
3
6
4
OUTDOOR AIR TEMP. SENSOR
(THERMISTOR)
PIPING TEMP. SENSOR
(THERMISTOR)
COMPRESSOR TEMP.
SENSOR (THERMISTOR)
ELECTRO-MAGNETIC
COIL
(4-WAY VALVE)
YLW
YLW
YLW
RED
BLU
COMPRESSOR
ELECTRO-MAGNETIC COIL
(EXPANSION VALVE)
MS
3~
ELECTRONIC CONTROLLER
MS
3~
FUSE 8
T3.15A
L250V
FUSE 6
(20A 250V)
FUSE 5
(20A 250V)
5V
G5
C401
0.1u
25V
B1
15V
IC8
16
15
14
13
1
2
3
4
5V
G5
C99
1u
10V
B1
R28
4.99k
1%
5V
C98
470u
10V
KY
G5
G5
G5
C10
1u
10V
B1
R22
15k
1%
R21
15.8k
1%
C9
1u
10V
B1
G6
C414
0.01u
50V
B1
R403
1k
G4A
16V
Q55
D
S
G

Table of Contents

Other manuals for Panasonic CS-Z20VKEW

Related product manuals