EasyManua.ls Logo

Panasonic Elite Big PAC-i U-200PZH2E8 - 4-Way Cassette Type

Panasonic Elite Big PAC-i U-200PZH2E8
316 pages
To Next Page IconTo Next Page
To Next Page IconTo Next Page
To Previous Page IconTo Previous Page
To Previous Page IconTo Previous Page
Loading...
3-5
33
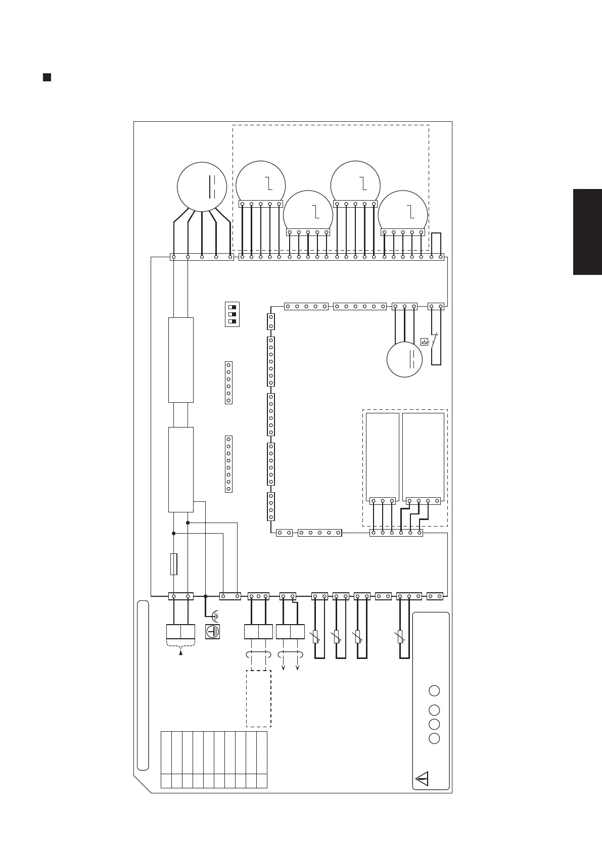
ELECTRIC CIRCUIT DIAGRAM
POWER SUPPLY
220
-
230
-
240V
50Hz
L
TERMINAL
BOARD
R1
R2
N
BR R
R
Y
B
BR
W
R
Y
B
BR
W
R
Y
B
BR
W
R
Y
B
BR
W
O
BL
W
Y
B
LB or B
P
BL
BL
BL
BL
B
G
BL
BL
W
BL
INDOOR AIR
TEMP. SENSOR(TA)
INDOOR HEAT EXCHANGER
TEMP. SENSOR(E1)
INDOOR HEAT EXCHANGER
TEMP. SENSOR(E2)
BL
BL
R
W
B
FLOAT
SWITCH
HUMIDITY SENSOR(HUS)
CAUTION
Terminal No. , , & are D.C. signal circuit.
Do not supply 220-230-240V.
U1
U2 R2R1
REMOTE
CONTROLLER
W.D.
CHANGE
MOTOR1
FAN MOTOR
ACXF20-00971/AB
RECTIFICATION
CIRCUIT
NOISE FILTER
CIRCUIT
CONTROL BOARD(MAIN)
FUSE F301
T5.0A L250V
DRAIN
PUMP
ECONAVI PANEL
CONTROL BOARD
(MOTION SENSOR)
Y
BL
R
ECONAVI PANEL
CONTROL BOARD
(FLOOR TEMP. SENSOR)
B
BL
R
1
1
1
4
3
1
5
1
1
1
2
3
6
3
1
3
1
2
TM1
1
1
5
1
5
1
5
1
5
2
1
2
1
2
1
3
1
1
2
3
1
1
5
1
1
6
5
6
10
11
15
16
20
21
22
4
5
6
7
1 6 1 6
1 8 1 1 2 36
21 17
EMG
(BRN)
FS
(WHT)
E2/E3
(BLK)
E1
(RED)
TA
(YEL)
ACIN(BLK)
OC
(BLU)
RC
(BLU)
HUS
(RED)
OP1(YEL)
DP
(WHT)
PMV
(WHT)
3WAY
(BLK)
TOOL
(BLK)
OPTION
(WHT)
T10
(YEL)
GRL
(WHT)
TEST/DISP/CHK
(BLK)
TP6/TP3/TP1
SW001
FAN DRIVE
(WHT)
NANO
(WHT)
DCM
(WHT)
ECONAVI
(WHT)
LM
(WHT)
TERMINAL
BOARD
W.D.
CHANGE
MOTOR2
W.D.
CHANGE
MOTOR3
W.D.
CHANGE
MOTOR4
U1
U2
BL
BL
B BLUE
BL BLACK
BR BROWN
G GREEN
LB
LIGHT BLUE
O ORANGE
P PINK
R RED
W WHITE
Y YELLOW
WIRE COLOR
2
1
BL
(GRN)
TO THE OUTDOOR UNIT
or INDOOR UNIT
t
t
t
t
HU
(WHT)
1
2
EXCT
(RED)
41
4-Way Cassette Type S-50PU2E5B, S-60PU2E5B, S-71PU2E5B, S-100PU2E5B, S-125PU2E5B
Electric Wiring Diagram
SM830276-00_欧州向け R32シングル TD&SM.indb 5 19/02/26 10:39:17

Table of Contents

Related product manuals