EasyManua.ls Logo

Panasonic MADLN15BL - Page 74

Panasonic MADLN15BL
111 pages
Print Icon
To Next Page IconTo Next Page
To Next Page IconTo Next Page
To Previous Page IconTo Previous Page
To Previous Page IconTo Previous Page
Loading...
No. SX-DSV03335 - 72-
R2.0 Industrial Device Solution Business Unit, Panasonic Corporation
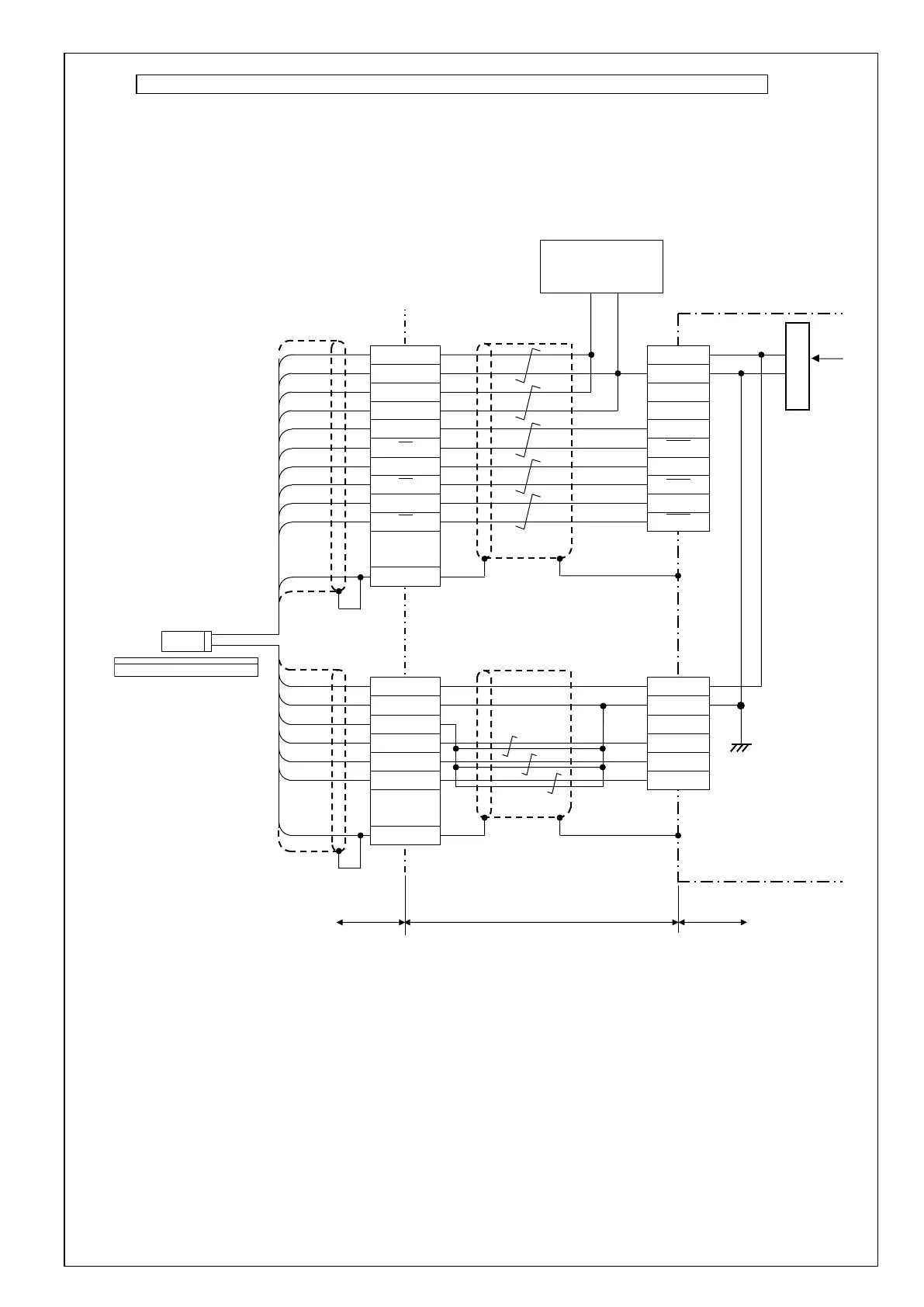
Wiring example of using the external power supply (When CS signal part twisted pair cable is used)
The wiring example below is for A / B phase, origin signal differential input type.
Connect the ground of external power supply and the sensor to the EX0V, please set the same potential of the
control ground of inside the servo driver.
Open the EX5V pin, make sure that no voltage is supplied this pin.
X5
X6
1
+5V
FG
EX0V
2
0V
3
+5V
4
0V
EXA
5
A
EXB
7
B
EXB
8
B
EXZ
10
Z
EXA
6
A
EXZ
9
Z
E5V
1
+5V
E0V
2
0V
3
CS-GND
CS3
4
CS3
CS2
5
CS2
CS1
6
CS1
FG
External power supply
+5V 0V
Cable
Scale
Servo driver
Detection head
Feedback scale unit
Regulator
EX5V

Table of Contents

Related product manuals