EasyManua.ls Logo

Panasonic MGSDB2 Series

Panasonic MGSDB2 Series
25 pages
To Next Page IconTo Next Page
To Next Page IconTo Next Page
To Previous Page IconTo Previous Page
To Previous Page IconTo Previous Page
Loading...
– 19 –– 18 –
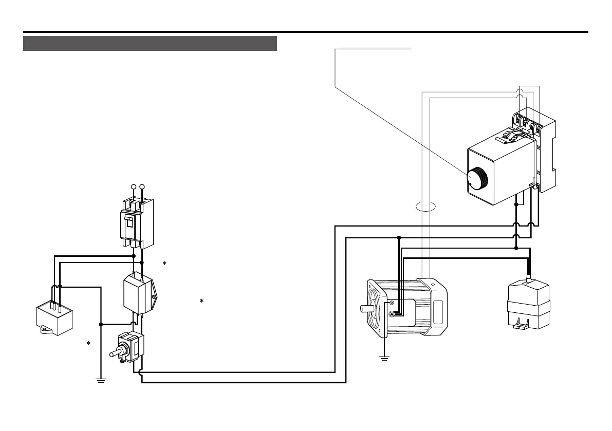
4. Wiring diagram
Power switch
TG
2
Capacitor cap
Motor
Speed control knob
White
Gray
Black
PinkPink
187
6
5
4
3
This knob adjusts the rotating speed of the motor from
90 (min
–1
) to 1400/1700 (min
–1
) at 50/60 Hz.
Ground the return circuit to the earth terminal.
Should be class D earthing (100 Ω or less, ø1.6 mm or more).
Ground the return circuit to the earth
terminal.
Should be class D earthing (100 Ω or
less, ø1.6 mm or more).
Tightening torque: 1.0 – 1.5 N·m
Noise filter
Surge absorber
(option)
Molded case circuit breaker
(MCCB): 5 A
<Caution>
Install ground-fault circuit
interrupter in the power
supply.
Power supply
100 V system: 1ø100 – 120 V
200 V system: 1ø200 – 240 V
<Precautions>
The input voltage must be in
the range of rated voltage
compatible with the motor
specification.
Install a noise filter and surge
absorber to protect against
external noise and lightning surge.
Miniature DIN
terminal block
AT7803:
Panasonic
See Section 6.
References.
Capacitor
(supplied with the motor)
For wiring connection of
the capacitor, see the
motor instruction manual.
Wiring diagram
The motor speed can be adjusted from the speed setting knob on
the controller front panel.
The thick continuous lines
represent main circuit. Use conductor
of size 0.75 mm
2
(AWG 18) or larger for the main line.
The thin continuous lines
represent signal circuit. Use conductor
of size 0.3 mm
2
(AWG 22) or larger in the signal circuit.
When the distance from the tachometer generator (TG) is long, use
shielded twisted pair cable.
<Caution>
Do not ground the shielding material.

Related product manuals