EasyManua.ls Logo

Panasonic PT-TW230E - Dimensions; Ceiling Mount Bracket Safeguards

Panasonic PT-TW230E
77 pages
Print Icon
To Next Page IconTo Next Page
To Next Page IconTo Next Page
To Previous Page IconTo Previous Page
To Previous Page IconTo Previous Page
Loading...
ENGLISH -
75
Appendix
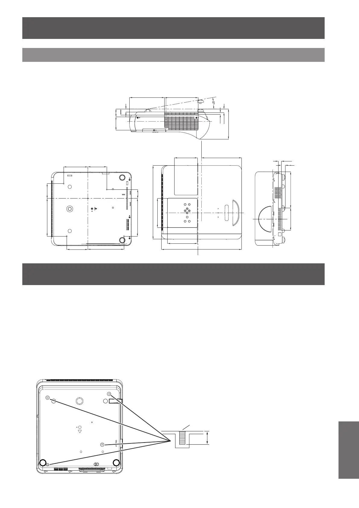
Dimensions
<Unit : inch (mm)>
Actual dimension may differ by product.:
Ceiling mount bracket safeguards
Installation work of the ceiling mount bracket should only be carried by a qualied technician.
z
Even if it is during guaranteed period, the manufacturer is not responsible for any hazard or damage caused
z
by using a ceiling mount bracket which is not purchased from an authorized distributors, or environmental
conditions.
Remove an unused ceiling mount bracket promptly.
z
Ensure to use a torque driver and do not use an electrical screwdriver or an impact screwdriver.
z
For details, see the work instruction manual packed together with the ceiling mount bracket.
z
The model Nos. of the accessories and the parts sold separately are subject to change without notice.
z
Make sure the screws on the ceiling mount kit cannot touch the metal parts materials (metallic lath, wire or
z
board) in the ceiling board. Otherwise it may result in re hazard.
Bottom view
Specications
6.56(166.7)
6.29(159.8)
0.55(14)
1.14(29)
1.46(37.1)
2.51(63.8)
5.65(143.4)
0.70(17.9)
0.34(8.7)
4.23(115)
3.54(90)
6.77(172)
3.94(100)
2.76(70)
7.09(180)
1.65(42)
7.09(180)
4.33(110)
7.53(191.3)
5.60(142.2)
5.46(138.7)
15.11(383.9)
13.78(350)
6.78(172.1) 4.16(105.7)
0.56(14.2)
0.72(18.4)
Model No. of ceiling mount bracket:
ET-PKV100H (for high ceilings)
ET-PKV100S (for low ceilings)
Model No. of projector mount base:
ET-PKT100B
M5 x 0.7
12mm (0.47")
Torque:1.2
±
0.1N
.
m

Table of Contents

Other manuals for Panasonic PT-TW230E

Related product manuals