EasyManua.ls Logo

Panasonic S-28MM1E5 - Placing the Unit Inside the Ceiling

Panasonic S-28MM1E5
58 pages
To Next Page IconTo Next Page
To Next Page IconTo Next Page
To Previous Page IconTo Previous Page
To Previous Page IconTo Previous Page
Loading...
10
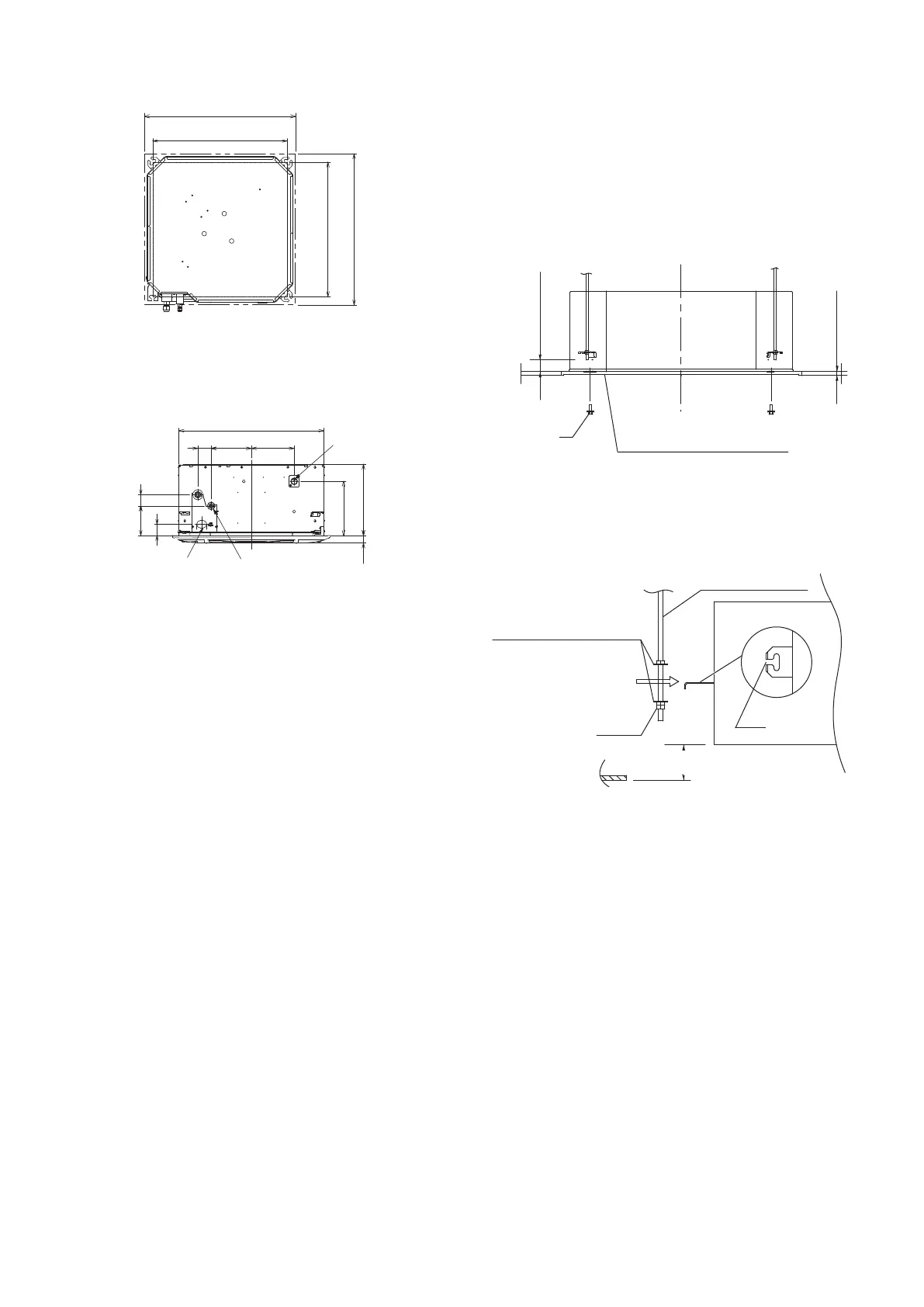
Fig. 3-2
(3) Determine the pitch of the suspension bolts using the
supplied full-scale installation diagram. The diagram shows
the relationship between the positions of the suspension
fitting, the unit, and the panel.
160
45
170
30
117 45
53
215
575
283
Fig. 3-3
3-3. Placing the Unit Inside the Ceiling
(1) When placing the unit inside the ceiling, determine the
pitch of the suspension bolts using the supplied full-scale
installation diagram. (Fig. 3-4)
Tubing and wiring must be laid inside the ceiling when
suspending the unit. If the ceiling is already constructed, lay
the tubing and wiring into position for connection to the unit
before placing the unit inside the ceiling.
(2) The length of suspension bolts must be appropriate for a
distance between the bottom of the bolt and the bottom of
the unit of more than 15 mm. (Fig. 3-4)
Over 15 mm
13 – 18 mm (Y1 Type)
Full-scale installation diagram
(printed on top of container box)
Supplied bolt
Fig. 3-4
(3) Thread the 3 hexagonal nuts and 2 washers (field supply)
onto each of the 4 suspension bolts (Fig. 3-5). Use 1 nut
and 1 washer for the upper side, and 2 nuts and 1 washer
for the lower side, so that the unit will not fall off the
suspension lugs.
Nuts and washers
(use for upper and lower)
Suspension bolt
Double nut
Notch
Suspension lug
13 – 18 mm (Y1 Type)
Fig. 3-5
(4) Adjust so that the distance between the unit and the ceiling
bottom is 13 to 18 mm. Tighten the nuts on the upper side
and lower side of the suspension lug.
(5) Remove the protective polyethylene used to protect the fan
parts during transport.
Drain tube
connection port
(outer dia ø26)
Refrigerant tubing joint
(liquid side)
ø6.35 (flared)
Power supply port
Unit: mm
600
Ceiling opening dimensions
534
Suspension bolt pitch
600
Ceiling opening dimensions
534
Suspension bolt pitch
Unit: mm
Panaindoor336013Eng.indb10Panaindoor336013Eng.indb10 2012/03/2121:07:042012/03/2121:07:04

Table of Contents

Other manuals for Panasonic S-28MM1E5

Related product manuals