EasyManua.ls Logo

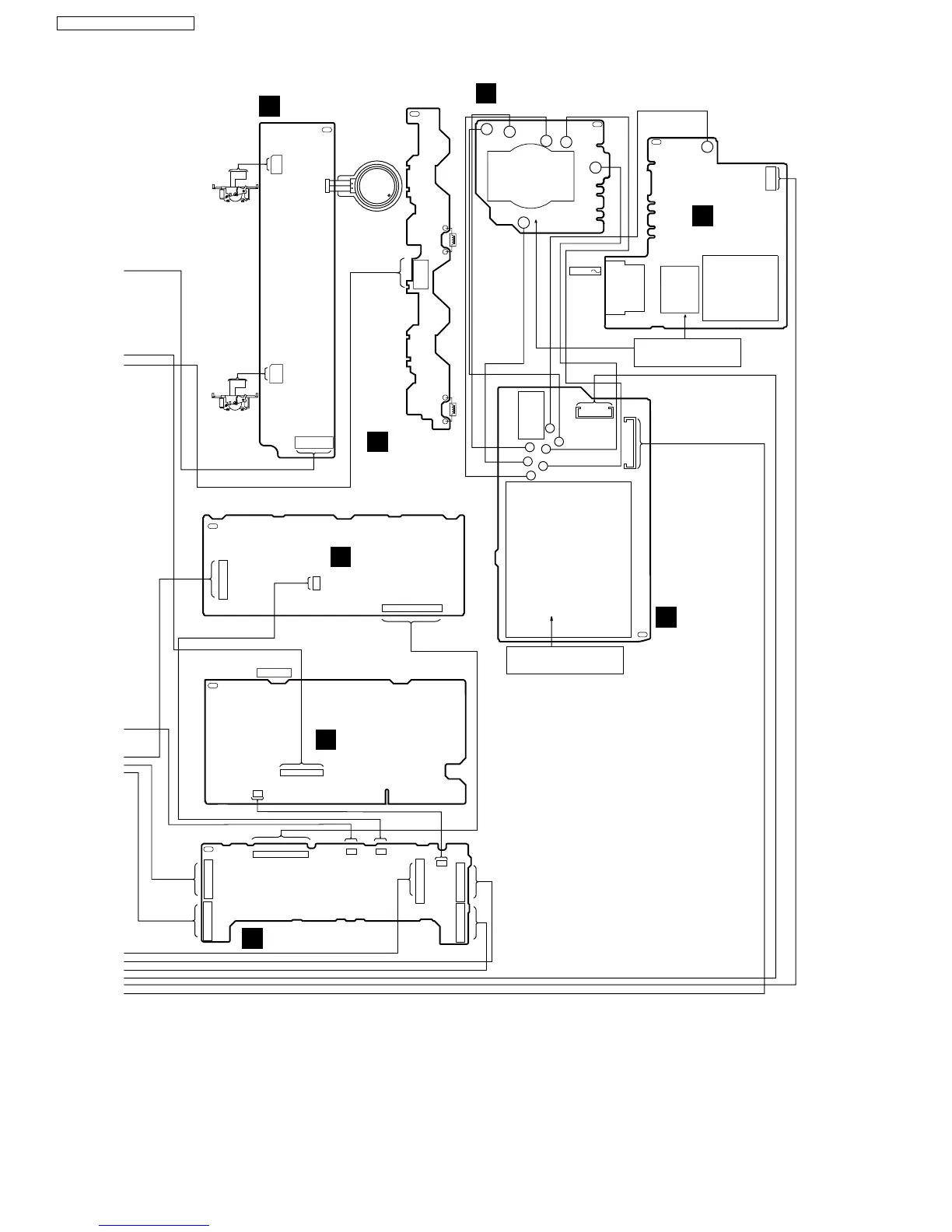
Panasonic SA-VK81D - Power Supply

Panasonic SA-VK81D
154 pages
Print Icon
To Next Page IconTo Next Page
To Next Page IconTo Next Page
To Previous Page IconTo Previous Page
To Previous Page IconTo Previous Page
Loading...
SOLDER SIDE
I
POWER AMP P.C.B.
SOLDER SIDE
H
POWER SUPPLY P.C.B.
H5802/W5802
15 . . . . . . . . . . . . . 1
H5803
/W5803
8
.
.
.
.
.
.
.
1
TRANSFORMER
P.C.B.
M
VOLTAGE SELECTOR
P.C.B.
L
AC INLET
P.C.B.
SOLDER SIDE
1
CN953
2
3
PbF
PbF
SOLDER SIDE
SOLDER SIDE
PbF
T501 (MAIN TRANSFORMER)
CAUTION
RISK OF ELECTRIC SHOCK
AC VOLTAGE LINE. PLEASE DO NOT
TOUCH THIS P.C.B
1
.
.
.
.
.
.
.
10
CN950
CN951
RL502
1 . . . . . 7
W1B
YEL
W3B
D.BLU
W5B
ORG
W6B
BWN
W4B
BLK
W7B
L.BLU
W2B
PUR
CAUTION
RISK OF ELECTRIC SHOCK
AC VOLTAGE LINE.
PLEASE DO NOT TOUCH THIS P.C.B
T502
SUB-TRANSFORMER
L500
110V
127V
220~230V
240V
50/60HZ
AC IN
JK500
W6A
BWN
W3A
D.BLU
W7A
L.BLU
W2A
PUR
W1A
YEL
W5A
ORG
W4A
BLK
S501
VOLTAGE
SELECTOR
PbF
PbF
PbF
VOLUME
CN5811
1 . . . . . . . . . . . . . 15
CP6804
1 . . . . . . . . .11
CN5802
2 1
H6801
2 1
CP5802
12
.
.
.
.
.
.
.
1
W5801/
H5801
1
.
.
.
.
.
.
.
.
15
CP5801
12
.
.
.
.
.
.
.
1
CP5804
1
.
.
.
.
.
.
.
12
CP5803
1
.
.
.
.
.
.
.
12
SOLDER SIDE
E
TACT SWITCH P.C.B.
DECK
MECHANISM
P.C.B.
SOLDER SIDE
CN971
10
.
.
2
9
.
.
1
PbF
CS1002
W1002
CS1001
CN1001
F
DECK P.C.B.
SOLDER SIDE
14 . . . . . . 2
13 . . . . . . 1
(DECK 2)
R/P HEAD,
ERASE HEAD
1. . . 5
1. . . 5
(DECK 1)
PLAYBACK HEAD
1
3
5
2
4
1
3
5
2
4
1
2
MOTOR
-
+
PbF
G
K
W5808
2
1
CN5801
2 1
W5811
2 1
124
SA-VK81DGCS / SA-VK81DGCP

Table of Contents

Related product manuals