EasyManua.ls Logo

Panasonic SC-BTT770 - Speaker Installation Options

Panasonic SC-BTT770
56 pages
Print Icon
To Next Page IconTo Next Page
To Next Page IconTo Next Page
To Previous Page IconTo Previous Page
To Previous Page IconTo Previous Page
Loading...
Advanced operations
Optional speaker
settings
47
VQT3M06
Optional speaker settings
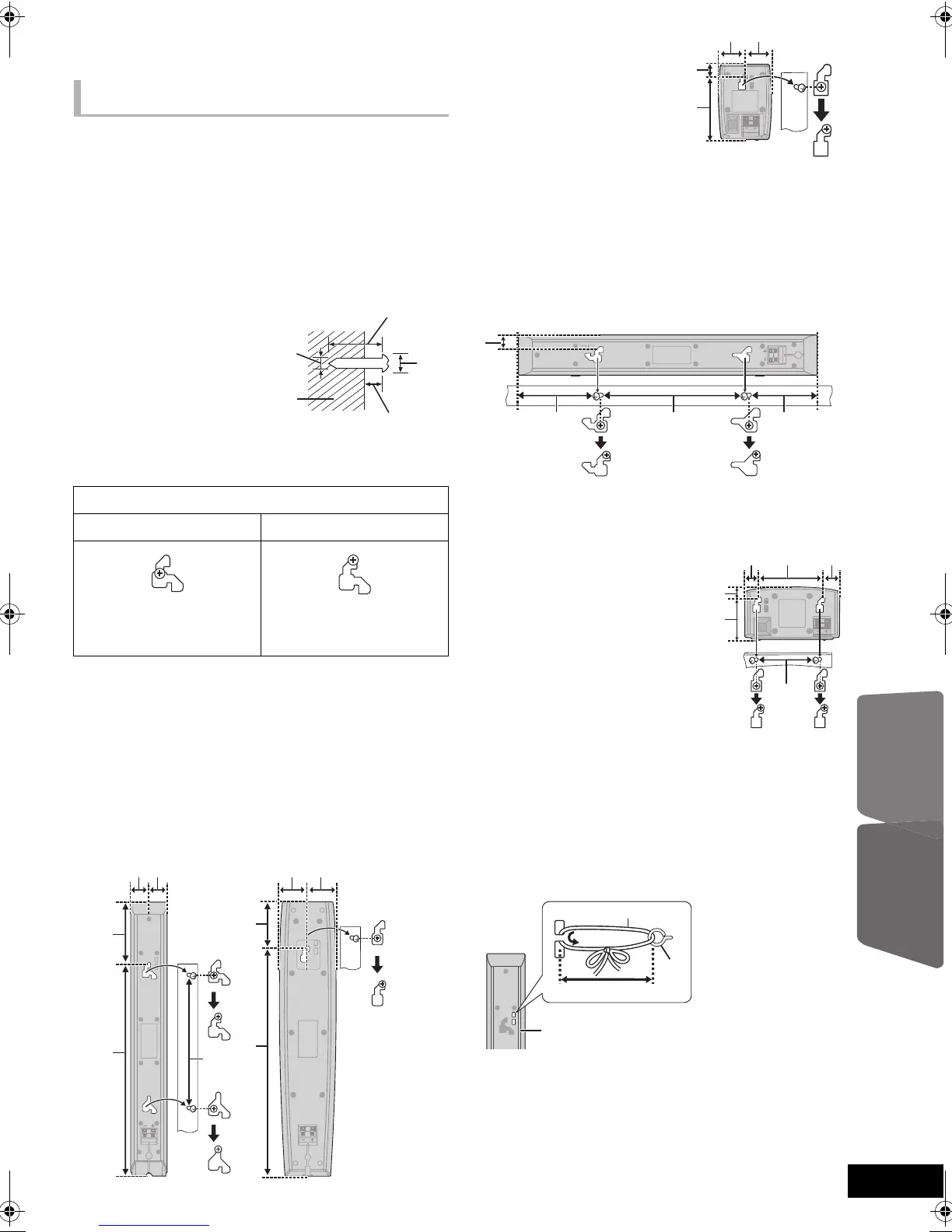
Speaker installation option
You can attach all of the speakers (except subwoofer) to a wall.
The wall or pillar on which the speakers are to be attached
should be capable of supporting 10 kg per screw. Consult a
qualified building contractor when attaching the speakers to
a wall. Improper attachment may result in damage to the wall
and speakers.
Do not attempt to attach these speakers to walls using
methods other than those described in this manual.
1 Drive a screw (not supplied) into the wall.
A At least 30 mm
B 4.0 mm
C 7.0 mm to 9.4 mm
D Wall or pillar
E 5.5 mm to 7.5 mm
2 Fit the speaker securely onto the screw(s)
with the hole(s).
Use the measurements indicated below to identify the
screwing positions on the wall.
Leave at least 20 mm of space above the speaker and 10 mm
on each side to allow enough space for fitting the speaker.
[BTT775]
Front speaker, Surround speaker
[BTT770] [BTT370]
Front speaker
Attach to a wall without the base and the stand.
[BTT770] [BTT370]
Surround speaker
[BTT270]
Front speaker, Surround speaker
F 28.5 mm
G 97 mm
H 335 mm
I 210 mm to 212 mm
J 40 mm
K 63 mm
L 322 mm
M 40 mm
N 17.6 mm
O 98.7 mm
[BTT775] [BTT770]
Centre speaker
[BTT370] [BTT270]
Centre speaker
P 18.8 mm
Q 117 mm
R 209 mm to 211 mm
S 97 mm
T 23 mm
U 95 mm to 97 mm
V 26 mm
W 16.7 mm
X 63.7 mm
To avoid speaker dropping
[BTT775]
Front speaker, Centre speaker, Surround speaker
[BTT770] [BTT370]
Front speaker, Centre speaker
e.g., [BTT775] Front speaker
Consult a qualified building contractor to avoid damage to
the wall or speakers.
Use a string of less than 2.0 mm, which is capable of
supporting over 10 kg.
Attaching to a wall
e.g., [BTT775] Front speaker
DO NOT DO
In this position, the
speaker will likely fall if
moved to the left or right.
Move the speaker so that
the screw is in this
position.
[BTT370]
[BTT770]
[BTT775]
A String (not supplied)
B Screw eye (not supplied)
C Less than 10 cm
D Rear of the speaker
SCBTT775_770_370_270EBEPGN_VQT3M06.book 47 ペー 011年1月18日 火曜日 午後6時14分

Table of Contents

Other manuals for Panasonic SC-BTT770

Related product manuals