EasyManua.ls Logo

Panasonic SC-HTB550GK

Panasonic SC-HTB550GK
154 pages
To Next Page IconTo Next Page
To Next Page IconTo Next Page
To Previous Page IconTo Previous Page
To Previous Page IconTo Previous Page
Loading...
109
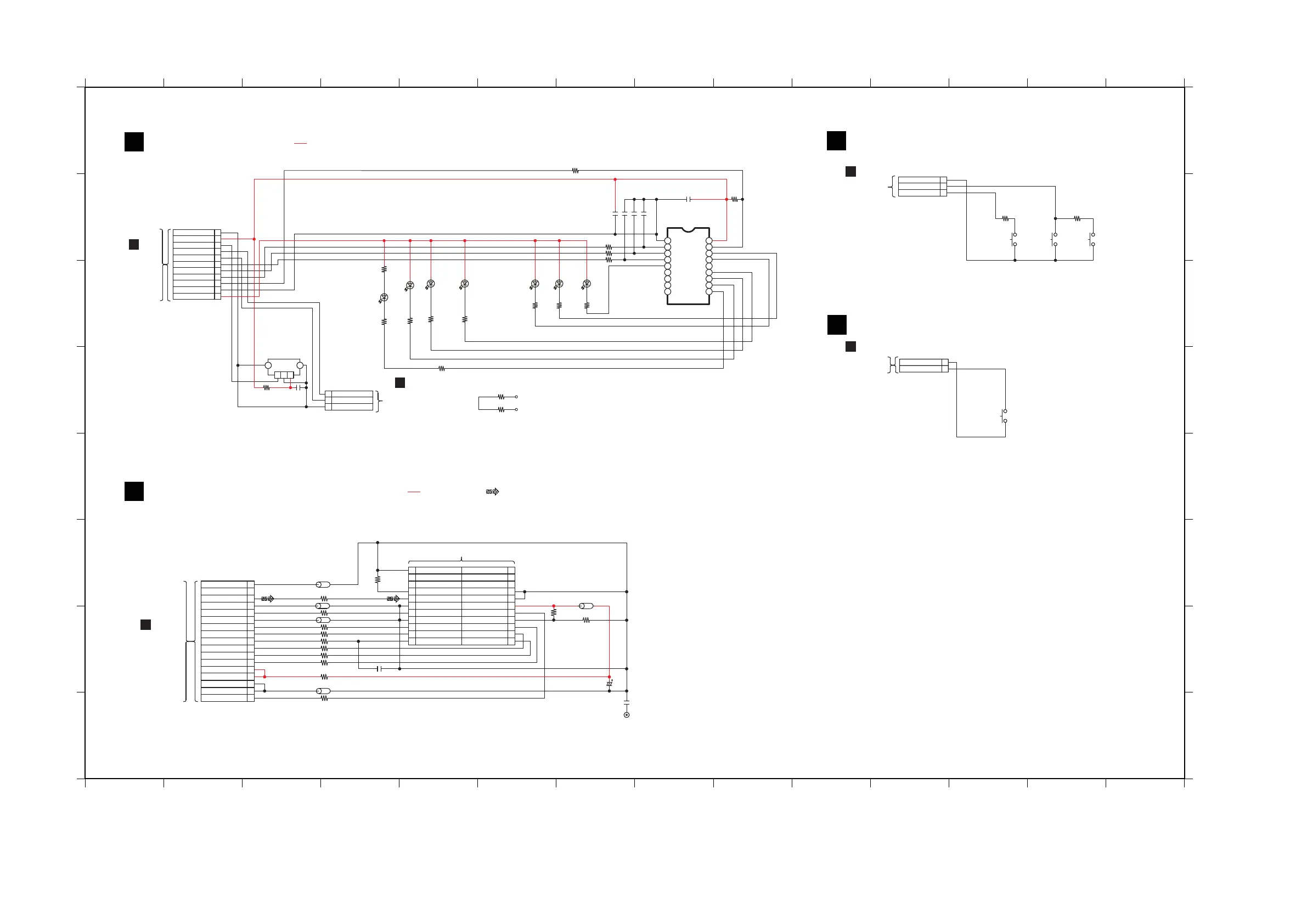
16.2.11. PANEL / BUTTON / POWER BUTTON / WIRELESS ADAPTER CIRCUIT
CC
PANEL CIRCUIT
SCHEMATIC DIAGRAM - 11
D
BUTTON CIRCUIT
E
POWER BUTTON CIRCUIT
PANEL / BUTTON / POWER BUTTON / WIRELESS ADAPTER CIRCUIT
SC-HTB550GK/GS/GSX (SU-HTB550GK/GS/GSX)
A
1
2 3 4 5 6 7 8 9 10 11 12 13 14
1 2 3 4 5 6 7 8 9 10 11 12 13 14
C
D
B
E
G
H
F
A
C
D
B
E
G
H
F
F
WIRELESS ADAPTER CIRCUIT
A
TO
MAIN (CPU)
CIRCUIT (CN2205)
IN SCHEMATIC
DIAGRAM - 6
1
17
TO DIGITAL TRANSMITTER MODULE
TO
MAIN (CPU)
CIRCUIT
(CN2204)
IN SCHEMATIC
DIAGRAM - 6
A
TO
BUTTON CIRCUIT
(JW6003)
IN SCHEMATIC
DIAGRAM - 11
D
1
11
TO
PANEL CIRCUIT
(JW6002)
IN SCHEMATIC
DIAGRAM - 11
C
TO
MAIN (CPU)
CIRCUIT
(CN2206)
IN SCHEMATIC
DIAGRAM - 6
A
1
2
: +B SIGNAL LINE
: +B SIGNAL LINE
: AUDIO OUTPUT SIGNAL LINE
100PC6010
C6002
4.7
C6001
0.1
R6015
10K
C6012 100P
C6011 100P
17
15
14
8
9
6
13
7
12
11
10
3
1
2
4
5
16
18
IC6001
C0JBAQ000073
LED DRIVER
R6014 100
6
8
9
7
2
1
4
5
3
10
11
CN6001
G2
213
G1
B3RAD0000049
REMOTE SENSOR
Z6001
R6008
47
C6008
4.7u
100R6011
R6012 100
R6002
180
R6004
220
R6013
180
R6003
180
R6009
220
1
3
2
JW6002
D6002
B3ABA0000187
D6003
B3ABA0000187
D6006
B3ABA0000187
D6004
B3ADA0000087
D6007
B3ABA0000187
R6001
180
D6001
B3ABA0000187
R6010 100
Q0
DATA
Q3
Q4
Q1
Q2
CLK
LCK
GND
OE
Q7
Q5
Q6
Q9
Q8
Q11
Q10
VDD
...GS/GSX
...GK
KEY1
KEY2
VREF GND
LED_OE
DGND
REG5V
KEY1
KEY2
REMOTE
VREF(3.3V)
LED_CLK
LED_DATA
LED_LCK
VREF GND
RE
VDD
GND
S6003
1.2K 1.2K
R6006
1
3
2
JW6003
R6007
S6002
S6004
KEY1
VREF GND
KEY2
SELECTOR
VOLUME -
VOLUME +
S6001
1
2
JW6004
POWER
KEY1
VRFGND
C3000
0.01
100PC3001
ET3000*
LB3001
J0JBC0000015
LB3014
J0JBC0000015
LB3004 J0JBC0000015
LB3006 J0JBC0000015
LB3013
J0JBC0000015
R3014
10K
R3012 100
R3010 100
R3013
100
R3005 100
R3004 100
R3003 1
R3009 100
R3007
100
R3008 100
R3006 100
R3002
18K
R3001
10K
CN3000
C3003
6.3V220
6
5
8
9
11
12
10
14
15
13
7
2
1
4
3
17
16
CN3001
176
221
185
194
203
212
9
12
14
8 15
13
167
11
10
ADAT1
ADAT3 (RESERVED)
ADAT2 (RESERVED)
5V GND
RESERVED
RESERVED
RESERVED
RESERVED
RF_GND
SCL
WCLK
SSB
BCLK
DGND
DGND SM0
SDO
SDI
INT
WM_DET
5V
ADAT0
SSB
LRCK
SDO
BCLK
DGND
DGND
RF_GND
SDI
SCL
INT
RF+5V
ADAT1
ADAT0
WM_DET
RF_GND
RF+5V
RF_GND
R6005
180
D6005
B3ABA0000187
R6017
0
R6019
0
0
K101
K102
0

Table of Contents

Related product manuals