EasyManua.ls Logo

Panasonic tc-l32e5

Panasonic tc-l32e5
69 pages
To Next Page IconTo Next Page
To Next Page IconTo Next Page
To Previous Page IconTo Previous Page
To Previous Page IconTo Previous Page
Loading...
TC-L32E5
14
7.2. Panel Assembly
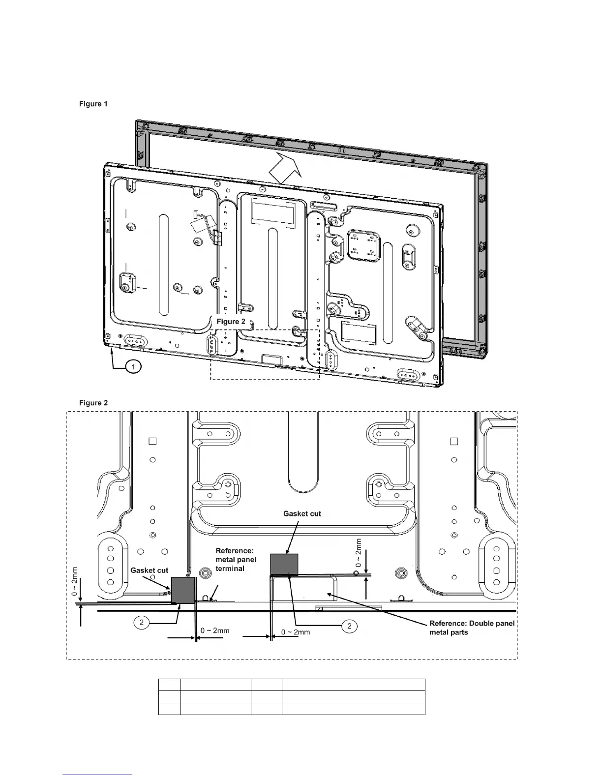
1. Assemble the panel to the cabinet, first fitting in the upper part and then sliding in the lower part (Figure 1).
2. Fit 2 gaskets at the bottom of the cabinet, make sure the gasket cut is facing the right direction as indicated in Figure 2.
No. Part Num. Quant. Description
1 VVX32F125G00 1 LCD PANEL
2 TEWB644 2 GASKET (T18*W18*L15)

Table of Contents

Related product manuals