EasyManua.ls Logo

Panasonic WH-SXC09F9E8

Panasonic WH-SXC09F9E8
161 pages
To Next Page IconTo Next Page
To Next Page IconTo Next Page
To Previous Page IconTo Previous Page
To Previous Page IconTo Previous Page
Loading...
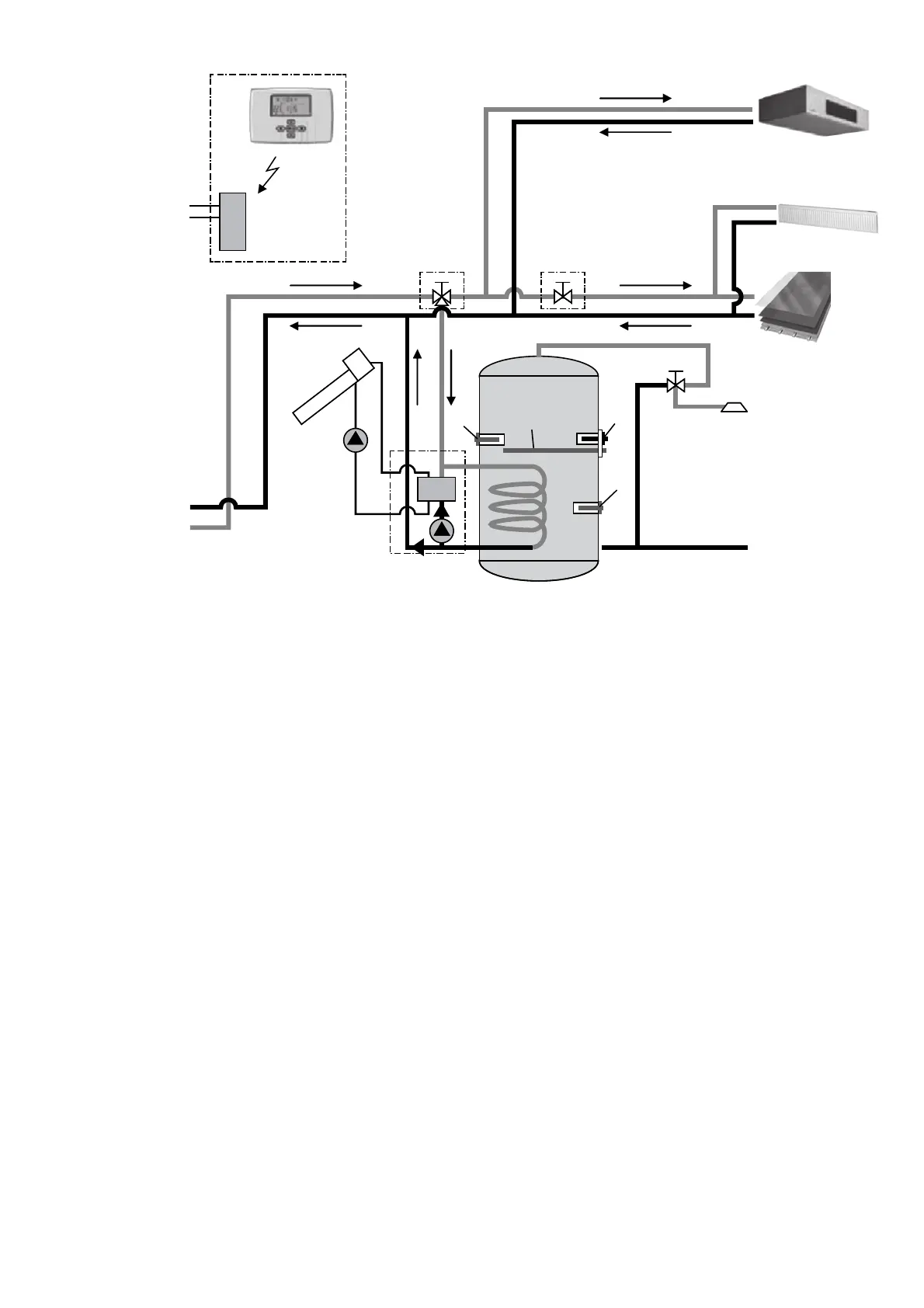
27
To Water Inlet
Indoor Unit
From Water Outlet
Indoor Unit
Room Thermo
Fan Coil Unit
(Heating / Cooling)
Panel Heater Uni
t
(Heating)
Floor Heating Panel
(Heating)
Cold Water
Supply
Connect to
Indoor Unit
3-Way Valve 2-Way Valve
OLP
Heater 1 (3kW)
THs
Buffer Tank Unit
Solar Unit
THt
HEX

Table of Contents

Other manuals for Panasonic WH-SXC09F9E8

Related product manuals