EasyManua.ls Logo

Parker Hyperchill-Plus ICEP007 - Page 61

Parker Hyperchill-Plus ICEP007
98 pages
Print Icon
To Next Page IconTo Next Page
To Next Page IconTo Next Page
To Previous Page IconTo Previous Page
To Previous Page IconTo Previous Page
Loading...
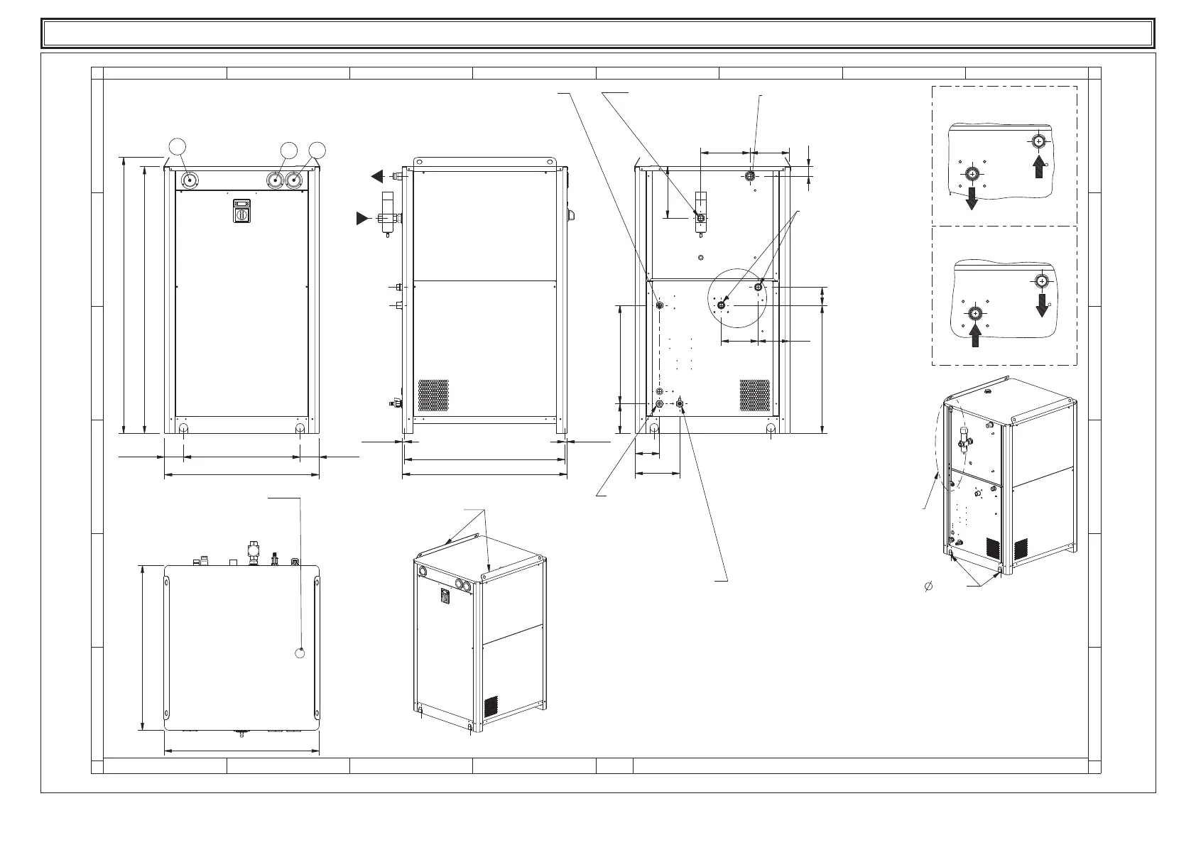
Dimensional drawings -Water condenser ICEP007-014
16
ICEP007-024 (60Hz)
802
752
625 88
154180
92 (*) 568 (*)
92 (*)
10 (*)
782 (*)
10 (*)
145
118
216
480
756 MAX.
806 MAX.
1301
192
47
240
252
1345 MAX.
1234
12345678
A
B
C
D
E
F
A
B
C
D
E
F
1 - WATER/OIL MANOMETER
2 - LOW PRESSURE REFRIGERANT MANOMETER
3 - HIGH PRESSURE REFRIGERANT MANOMETER
1
2
3
WATER/OIL CONNECT.
ATTACCHI ACQUA/OLIO
3/4"BSP-F
SEE CONNECTION DETAIL
VEDI DETTAGLIO
CONDENSER WATER INLET
INGRESSO ACQUA CONDENS.
3/4"BSP-F
CONDENSER WATER OUTLET
USCITA ACQUA CONDENS.
3/4"BSP-F
BLEED VALVE FOR
CLOSED CIRCUIT VERSION
VALVOLA DI SFIATO
PER VERSIONE A CIRCUITO CHIUSO
CIRCUIT WATER DISCHARGE
SCARICO ACQUA CIRCUITO
ELECTR.SUPPLY
CABLE INLET
INGRESSO CAVO
ALIM. ELETTR.
WATER CHARGE FOR
OPEN CIRCUIT VERSION
CARICO ACQUA PER
VERSIONE A CIRCUITO APERTO
SCALA 0.050
LIFTING EYEBOLTS
GOLFARI DI SOLLEVAMENTO
SCALA 0.050
WATER LEVEL INDICATOR
FOR OPEN CIRCUIT VERSION
INDICATORE LIVELLO ACQUA
PER VERSIONE A CIRCUITO APERTO
(*) N°4 x 12
BASE FIXING HOLES POSITION
FORI FISSAGGIO BASE
WATER VERSION
VERSIONE AD ACQUA
OUT
IN
OIL VERSION
VERSIONE AD OLIO
IN
OUT

Table of Contents