EasyManua.ls Logo

Payne PG8MAA - Furnace Control Diagram; Heating and Cooling Application Wiring Diagram with Single Stage Thermostat

Payne PG8MAA
52 pages
Print Icon
To Next Page IconTo Next Page
To Next Page IconTo Next Page
To Previous Page IconTo Previous Page
To Previous Page IconTo Previous Page
Loading...
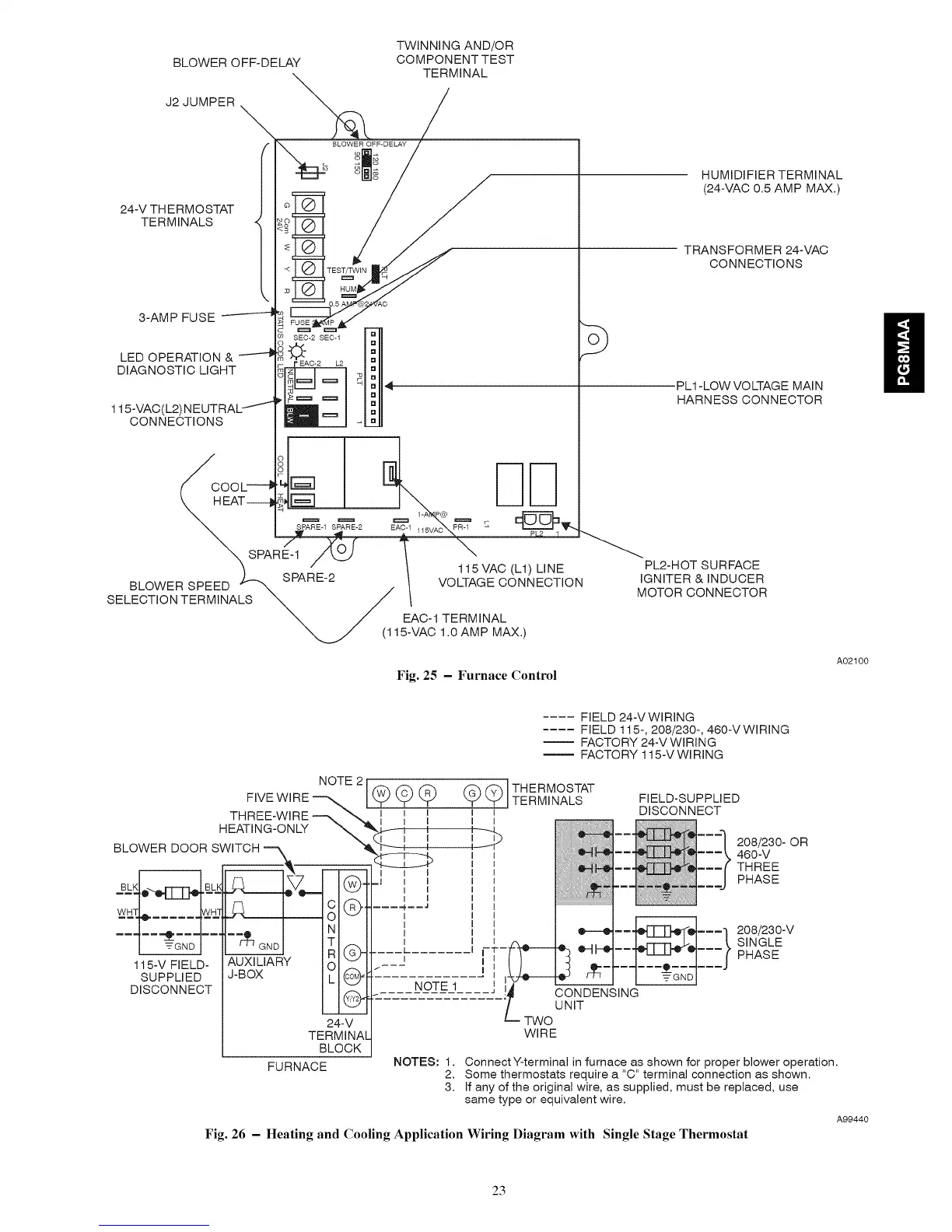
BLOWER OFF-DELAY
J2 JUMPER
TWINNING AND/OR
COMPONENTTEST
TERMINAL
24-V THERMOSTAT I
TERMINALS
3-AMP FUSE _--------4
LED OPERATION & -------4
DiAGNOSTiC LIGHT
115-VAC(L2) NEUTRAL -_I"
CONNECTIONS
Fig. 25 - Furnace Control
HUMiDIFiER TERMINAL
(24-VAO 0.5 AMP MAX.)
TRANSFORMER 24-VAC
CONNECTIONS
PL1-LOW VOLTAGE MAiN
HARNESS CONNECTOR
PL2-HOT SURFACE
iGNiTER & iNDUCER
MOTOR CONNECTOR
A02100
.... FIELD 24-V WIRING
.... FIELD 115-, 208/230-, 460-VWIRING
-- FACTORY 24-V WIRING
FACTORY 115-V WIRING
NOTE 2
FIVEWIRE @
THREE-WIRE --,- _ I i
HEATING-ONLY _ "_ _--',
BLOWER DOOR SWITCH _ _--_l____
. -J I I
I I
I I
C @ ---.e--a
O l
N l
i
T i
R@ '
I
115-V FIELD- AUXILIARY O /---
SUPPLIED J-BOX L @
DISCONNECT @
24-V
TERMINAL
BLOCK
FURNACE
I I
I I
I
fT
,I
NOTE 1 I
NOTES: 1.
2.
3.
THERMOSTAT
TERMINALS
i:i:iiiiiiii/iiii/iiiiii!ii_
_iiiiiii/i//@,i_iii_
ii:_:_iiiiiii',',iiiii/iiiiiiii_!ii_
H
4_,qHF4m
_ ttl
FIELD-SUPPLIED
DISCONNECT
CONDENSING
UNIT
TWO
WIRE
208/230-OR
460-V
THREE
PHASE
208/230-V
SINGLE
PHASE
ConnectY-terminal in furnace as shown for proper blower operation.
Some thermostats require a "C" terminal connection as shown.
if any of the original wire, as supplied, must be replaced, use
same type or equivalent wire.
A99440
Fig. 26 - Heating and Cooling Application Wiring Diagram with Single Stage Thermostat
23

Table of Contents

Related product manuals