EasyManua.ls Logo

Peak i-Flow N2 - Rawl Bolt Data Table 1

Peak i-Flow N2
32 pages
Print Icon
To Next Page IconTo Next Page
To Next Page IconTo Next Page
To Previous Page IconTo Previous Page
To Previous Page IconTo Previous Page
Loading...
Page 18
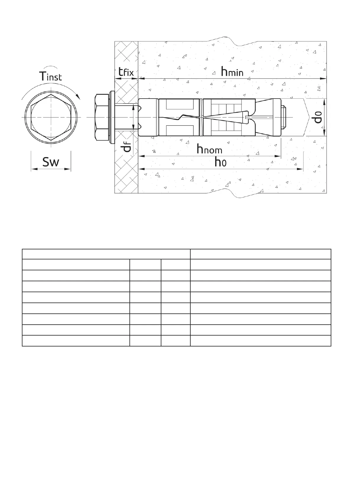
Size M12
Thread Diameter d [mm] 12
Hole Diameter in Substrate d
0
[mm] 18
Installation Torque T
inst
[Nm] 80
Min. Hole Depth in Substrate h
0
[mm] 85
Installation Depth h
nom
[mm] 75
Min. Substrate Thickness h
min
[mm] 130
Min. Spacing s
min
[mm] 80
Min. Edge Distance c
min
[mm] 90
Rawl Bolt Data Table 1
Figure 4