EasyManua.ls Logo

Peak i-Flow N2 - General Construction; I-Flow N2 Select 1-3 Bank Assembly

Peak i-Flow N2
32 pages
Print Icon
To Next Page IconTo Next Page
To Next Page IconTo Next Page
To Previous Page IconTo Previous Page
To Previous Page IconTo Previous Page
Loading...
Page 6
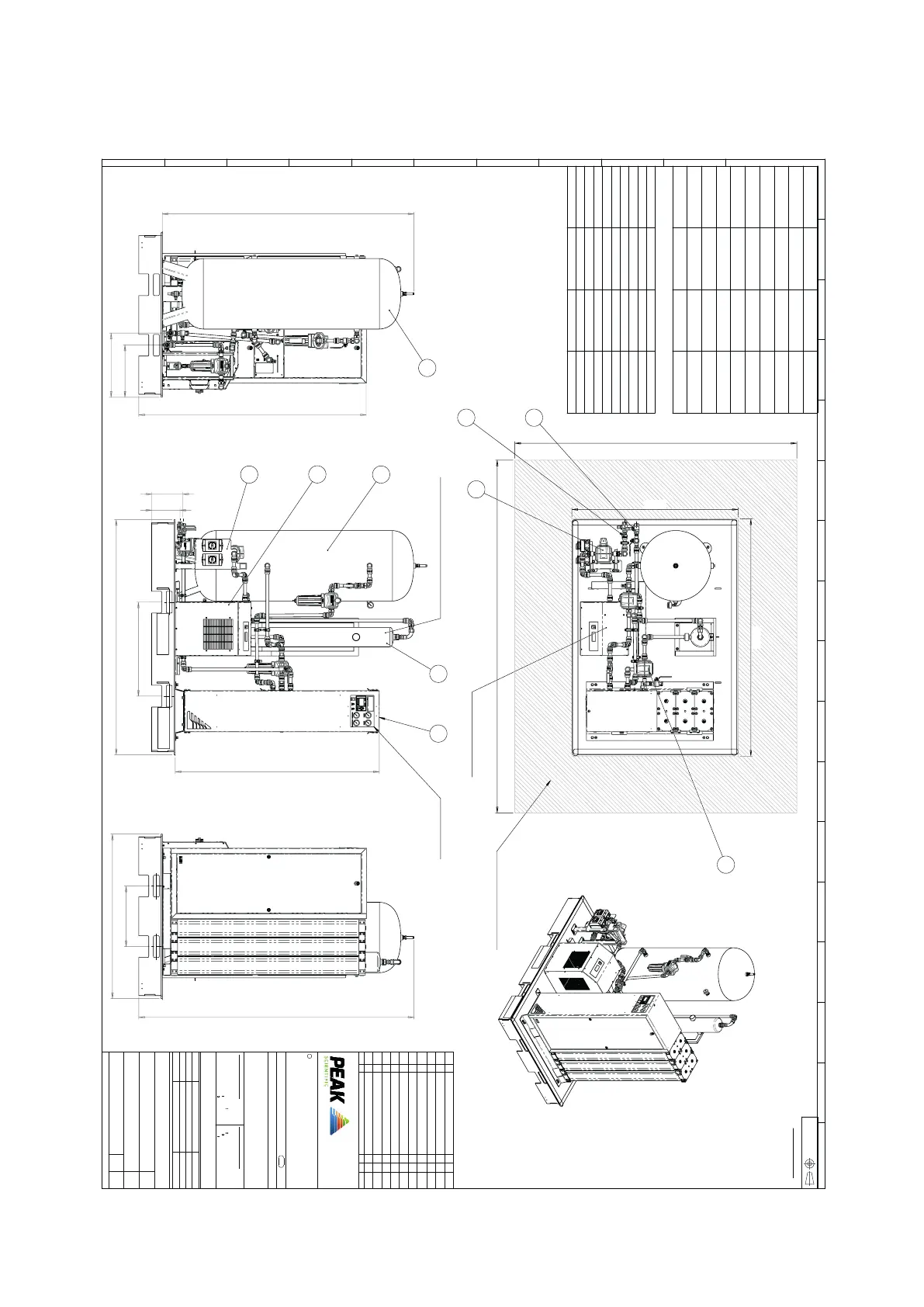
General Construction
i-Flow N2 Select 1-3 Bank Assembly
Figure 1
3000
2400
1400
2000
3
2
8
9
PURE DRYER - 1/2/3 BANK - 3301236
1737
2000
800
241
266
CARBON TOWER - PART NUMBER FOR 1/2/3 BANK - 3303951
5 1
4
6
7
I FLOW - 1 BANK - 20-7012
- 2 BANK - 20-7022
- 3 BANK - 20-7032
1936
445
546
2142
4
2343
515
1400
SERVICE ACCESS 500MM ALL ROUND
ITEM NO.
PART NO.
DESCRIPTION
QTY
1
VARIOUS
I-FLOW
1
2 3304099
FILTER DF-V 0210 SP
1
3 3300506
FILTER DF-S 0210 STD
2
4 3302071
RECEIVER 500L
1
5 3303951
CARBON TOWER
1
6 3301236
PURE AIR DRYER
1
7
N/A
POWER SUPPLY 230V AC
50/60 Hz 2AMP (EACH)
2
8
N/A
AIR INLET 3/4" F. BSP
1
9
N/A
N2 OUTLET 3/4" F. BSP
1
PART NO.
DESCRIPTION
N2 OUTLET PRESS. (BAR)
WEIGHT (KG)
3303934
I Flow SKID 1A
9 805
3303940
I Flow SKID 1B
7 805
3303945
I Flow SKID 1C
6 805
3303936
I Flow SKID 2A
9 885
3303941
I Flow SKID 2B
7 885
3303946
I Flow SKID 2C
6 885
3303937
I Flow SKID 3A
9 985
3303942
I Flow SKID 3B
7 985
3303947
I Flow SKID 3C
6 985
A
B
C
D
E
2
3
6
5
4
7
8
1
F
G
H
9
10
11
12
15
13
14
16
17
J
I
K
IF IN DOUBT ASK
THIRD ANGLE
PROJECTION
A
DCL:
FABRICATION TOLERANCE
UNLESS NOTED OTHERWISE
GENERAL METAL FABRICATION
0.5mm
SHEET METAL FORMING
0.2mm
ANGULAR TOLERENCES
0.5°
MACHINING TOLERANCE
UNLESS NOTED OTHERWISE
X
0.5mm
X.X
0.1mm
X.XX
0.05mm
GLOGAN
LEAD ENGINEER:
LAST SAVED BY:cmcgarry - 14/05/2021
0
APP DATE:
APP:
SIG:
DESCRIPTION OF CHANGE
REV:
ECN:
SHEET: 1 OF 1
STATUS:
SHEET:
SCALE:
REV:
A2
1:15
N/A
REFER TO BOM OR PART LEVEL DRAWINGS
N/A
07/04/2021
MSZCZESNIAK
PRODUCTION
17/02/2021
CMCGARRY
CRITICAL DIMENSIONS WILL BE MARKED
C
PEAK SCIENTIFIC INSTRUMENTS Ltd
PEAK SCIENTIFIC OWN THE COPYRIGHT FOR THIS DRAWING. NO INFORMATION
CONTAINED IN THIS DRAWING MAY BE CONVEYED TO A THIRD PARTY WITHOUT
THE WRITTEN CONSENT OF THE COPYRIGHT HOLDER.
ALL MATERIALS SHALL BE COMPLIANT WITH THE RoHS DIRECTIVE
DATE:
NAME:
FINISH
MATERIAL:
ORIGINATED BY:
DETAILED BY:
CHECKED BY:
MODEL LOCATION: C:\EPDM\Peak ePDM\Engineering\Projects\Marcin\IFLOW SKID\3303937_42_47 - 3 BANK SKID ASSEMBLY
PART No:
DRG TITLE:
FOUNTAIN CRESCENT
INCHINNAN BUSINESS PARK
RENFREWSHIRE, PA4-9RE
Tel: +44 (0)141 812 8100
Fax: +44 (0)141 812 8200
WWW.PEAKSCIENTIFIC.COM
SKID ASSEMBLY 1-3 BANK