EasyManua.ls Logo

Peak i-Flow N2 - General Construction; I-Flow N2 Select 4 Bank Assembly

Peak i-Flow N2
32 pages
Print Icon
To Next Page IconTo Next Page
To Next Page IconTo Next Page
To Previous Page IconTo Previous Page
To Previous Page IconTo Previous Page
Loading...
Page 7
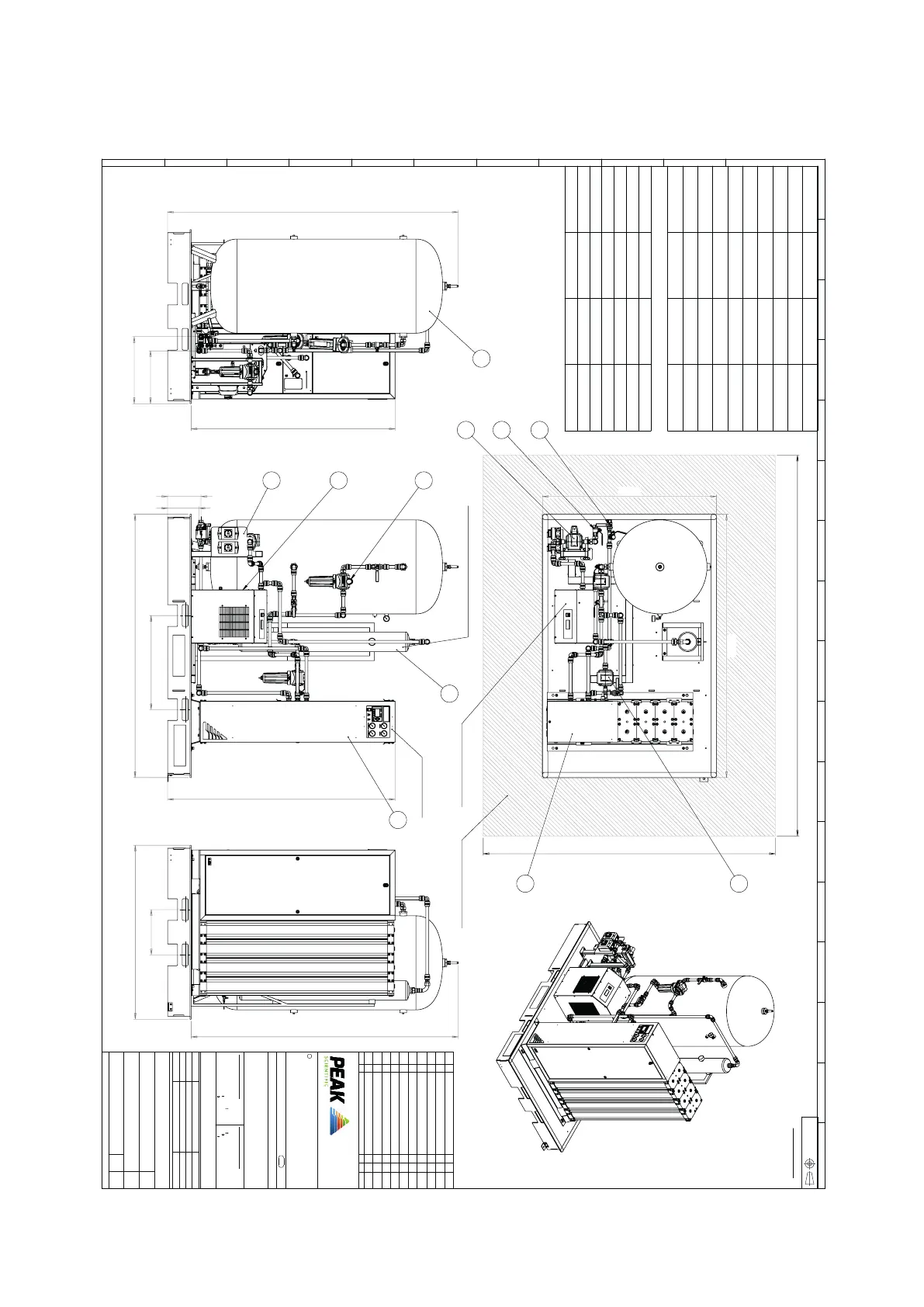
General Construction
i-Flow N2 Select 4 Bank Assembly
Figure 1
2240
800
284
269
1938
3
4
5
7
CARBON TOWER - PART NUMBER FOR 4 BANK - 3303951
I FLOW - 4 BANK - 20-7042
1
2240
1480
3240
2480.00
1
6
8
9
5
SERVICE ACCESS 500MM ALL ROUND
PURE AIR DRYER - 4 BANK - 3301236
385
1480
2272
1737
2473
450
570
2
N/A
SKID ASSEMBLY 4 BANK
N/A
GLOGAN
PRODUCTION
0
ITEM NO.
PART NO.
DESCRIPTION
QTY.
1
VARIOUS
I-FLOW
1
2
3303953
TANK 900L - 11 BAR VAR
RAL 5015 BLUE
1
3
3301236
PURE AIR DRYER DC0125
1
4
3303951
CARBON TOWER AKC 0150
1
5
3300078
FILTER DF-0210_STD_BSP
1
6
3304099
FILTER DF-V 0210 SP
2
7
N/A
POWER SUPPLY 230 V AC
50/60HZ 2AMP (EACH)
2
8
N/A
AIR INLET 3/4 F. BSP
1
9
N/A
N2 OUTLET 3/4 F. BSP
1
PART NO.
DESCRIPTION
N2 OUTLET PRESS. (BAR)
WEIGHT (KG)
3303938
I FLOW SKID 4A
9 1215
3303943
I FLOW SKID 4B
7 1215
3303948
I FLOW SKID 4C
6 1215
3303939
I FLOW SKID 5A
9 1365
3303944
I FLOW SKID 5B
7 1365
3303949
I FLOW SKID 5C
6 1365
A
B
C
D
E
2
3
6
5
4
7
8
1
F
G
H
9
10
11
12
15
13
14
16
17
J
I
K
IF IN DOUBT ASK
THIRD ANGLE
PROJECTION
DCL:
FABRICATION TOLERANCE
UNLESS NOTED OTHERWISE
GENERAL METAL FABRICATION
0.5mm
SHEET METAL FORMING
0.2mm
ANGULAR TOLERENCES
0.5°
MACHINING TOLERANCE
UNLESS NOTED OTHERWISE
X
0.5mm
X.X
0.1mm
X.XX
0.05mm
LEAD ENGINEER:
LAST SAVED BY:cmcgarry - 14/05/2021
APP DATE:
APP:
SIG:
DESCRIPTION OF CHANGE
REV:
ECN:
SHEET: 1 OF 1
STATUS:
SHEET:
SCALE:
REV:
A2
1:15
REFER TO BOM OR PART LEVEL DRAWINGS
09/11/2020
MSZCZESNIAK
13/05/2021
CMCGARRY
CRITICAL DIMENSIONS WILL BE MARKED
C
PEAK SCIENTIFIC INSTRUMENTS Ltd
PEAK SCIENTIFIC OWN THE COPYRIGHT FOR THIS DRAWING. NO INFORMATION
CONTAINED IN THIS DRAWING MAY BE CONVEYED TO A THIRD PARTY WITHOUT
THE WRITTEN CONSENT OF THE COPYRIGHT HOLDER.
ALL MATERIALS SHALL BE COMPLIANT WITH THE RoHS DIRECTIVE
DATE:
NAME:
FINISH
MATERIAL:
ORIGINATED BY:
DETAILED BY:
CHECKED BY:
MODEL LOCATION: C:\EPDM\Peak ePDM\Engineering\Projects\Marcin\IFLOW SKID\LARGE SKID ASSY
PART No:
DRG TITLE:
FOUNTAIN CRESCENT
INCHINNAN BUSINESS PARK
RENFREWSHIRE, PA4-9RE
Tel: +44 (0)141 812 8100
Fax: +44 (0)141 812 8200
WWW.PEAKSCIENTIFIC.COM