EasyManua.ls Logo

Pentair MICROBRITE - EasyTouch;IntelliTouch Load Center Wiring Diagram; MicroBrite Light Wall Switch Wiring Diagram

Pentair MICROBRITE
84 pages
Print Icon
To Next Page IconTo Next Page
To Next Page IconTo Next Page
To Previous Page IconTo Previous Page
To Previous Page IconTo Previous Page
Loading...
MicroBrite Color and White Light Installation and User’s Guide MicroBrite Color and White Light Installation and User’s Guide
15
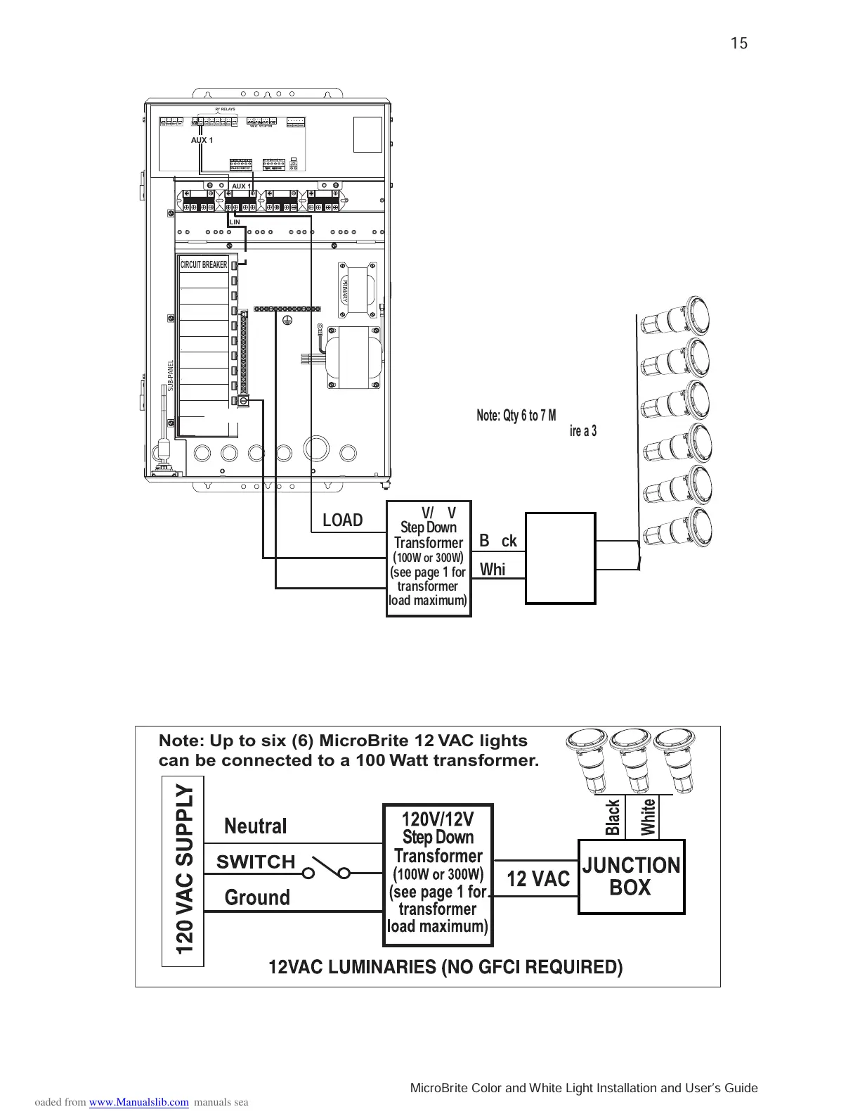
Note: Up to six (6) MicroBrite 12 VAC lights
can be connected to a 100 Watt transformer.
AUX 1
LINE 1
LOAD 1
Neutral
Ground
GROUND
Black
White
JUNCTION
BOX
Five MicroBrite 12 VAC
Lights require a 100 Watt
transformer.
120V/12V
Step Down
Transformer
(
100W or 300W
)
Black
White
CIRCUIT BREAKER
LOAD 1
LINE 1
NEUTRAL
EASYTOUCH 4 AUTOMATION CONTROL
®
AUXILIARY RELAYS
AUX 1
(see page 1 for
transformer
load maximum)
Note: Qty 6 to 7 MicroBrite 12 VAC
Lights require a 300 Watt
transformer.
EasyTouch
®
and IntelliTouch
®
Control System Load Center Wiring Diagram
MicroBrite
Light with Wall Switch Wiring Diagram

Table of Contents

Other manuals for Pentair MICROBRITE

Related product manuals