EasyManua.ls Logo

Philips 190B8CS/00 - PCB Layout; Main Board

Philips 190B8CS/00
120 pages
Print Icon
To Next Page IconTo Next Page
To Next Page IconTo Next Page
To Previous Page IconTo Previous Page
To Previous Page IconTo Previous Page
Loading...
28
HUDSON 8
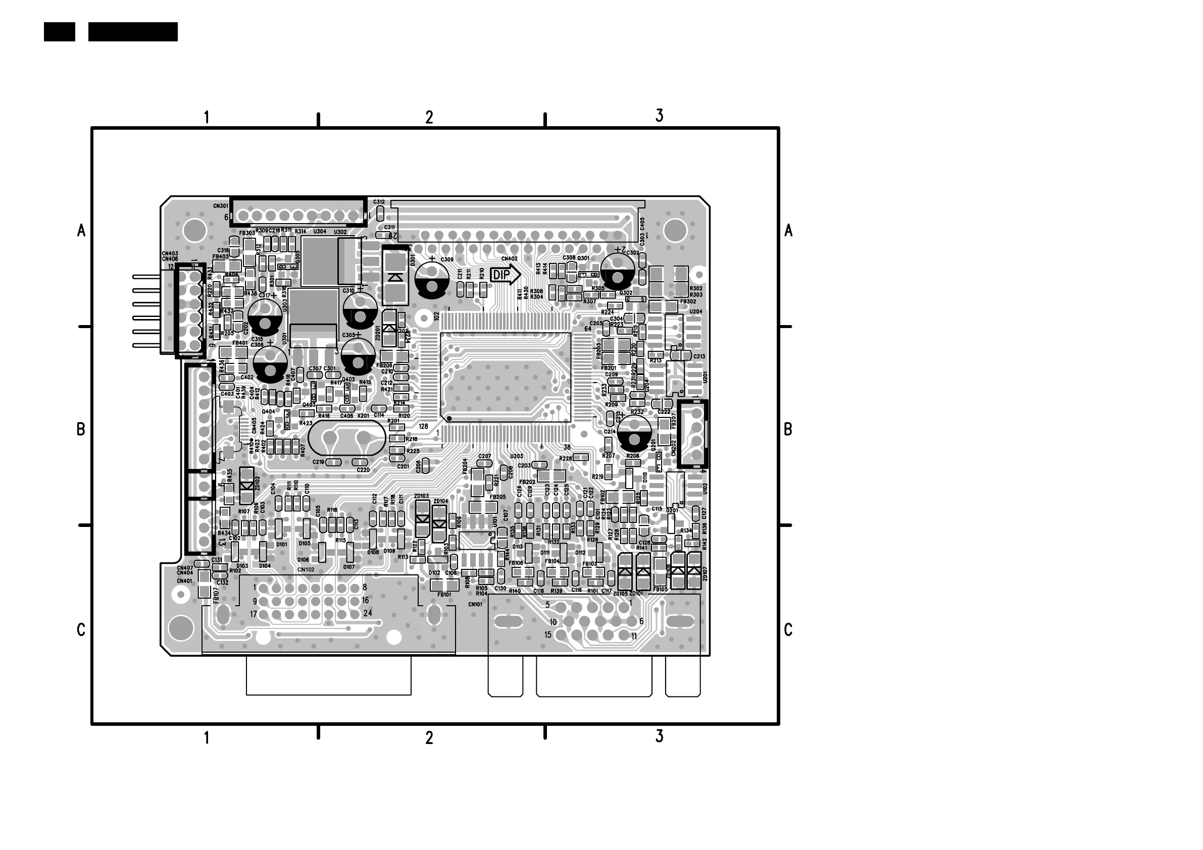
7. PCB Layout
7.1 Main Board
715G2561-1
C101 B3 C215 B3 D105 C1 Q301 A3 R144 C2 R410 B1
C102 C1 C216 A1 D106 C2 Q302 A3 R201 B2 R411 A3
C103 C1 C219 B2 D107 C2 Q305 A1 R202 A2 R412 B1
C104 B1 C220 B2 D108 C2 Q402 B2 R205 A1 R413 A3
C105 C2 C222 B3 D109 C2 Q403 B2 R206 B3 R414 A3
C106 C2 C301 B2 D110 B3 Q404 B1 R207 B3 R415 B2
C107 C2 C302 A3 D111 C3 R101 C3 R209 B3 R416 B2
C110 B1 C303 A3 D112 C3 R102 C1 R210 A2 R417 B2
C111 B2 C304 A3 D113 C2 R103 C2 R211 A2 R418 B1
C112 B2 C305 B2 D201 B3 R104 C2 R213 B3 R421 B2
C113 C2 C306 B1 D301 A2 R105 C2 R214 B2 R423 B1
C114 B2 C307 B1 FB101 C2 R106 C1 R215 B3 R424 B1
C115 C3 C308 A3 FB102 B3 R107 C1 R218 B2 R430 A3
C116 C3 C309 A2 FB103 C3 R108 C2 R219 B3 R431 B1
C117 C3 C310 A2 FB104 C3 R109 B2 R220 A1 R432 A1
C118 C2 C311 A2 FB105 C3 R110 B1 R221 B2 R433 A1
C121 B3 C312 A2 FB106 C2 R111 B1 R223 B3 R434 B1
C122 B3 C315 A1 FB107 C1 R113 C2 R224 A3 R435 B1
C123 B2 C316 A1 FB201 B3 R115 C2 R225 B2 R436 B1
C124 B3 C317 A1 FB202 B3 R116 C2 R228 B3 R437 A1
C125 B3 C401 B1 FB203 B3 R117 B2 R229 B3 R438 A1
C126 B2 C402 B1 FB204 B2 R118 B2 R230 B3 R439 B1
C127 B3 C403 B1 FB205 B2 R120 B2 R231 B3 U101 B2
C128 C3 C404 B1 FB206 B2 R122 C2 R232 B3 U102 B3
C129 B2 C405 A3 FB207 B3 R123 B3 R233 B3 U201 B3
C130 C2 C406 B2 FB302 A3 R124 B3 R234 B2 U203 B2
C131 C1 C407 B1 FB303 A1 R125 B3 R301 A1 U204 B3
C132 C1 CN101 C3 FB401 B1 R126 C3 R302 A3 U301 B1
C201 B2 CN102 C2 FB403 A1 R127 C3 R303 A3 U302 A2
C202 A1 CN202 B3 FDT1 B3 R128 C3 R304 A3 U303 B1
C203 B2 CN301 A2 FDT10 <1 R129 C3 R305 A3 U304 A2
C204 B3 CN401 B1 FDT11 C8 R131 C2 R307 A3 X201 B2
C205 B3 CN402 A2 FDT12 <8 R132 C3 R308 A3 ZD101 C3
C206 B2 CN403 B1 FDT13 C1 R133 C3 R309 A1 ZD102 B1
C207 B2 CN404 B1 FDT2 A2 R134 C3 R311 A1 ZD103 B2
C208 B2 CN405 B1 FDT3 A3 R135 C2 R312 A1 ZD104 B2
C209 B3 CN406 A1 FDT4 C1 R136 C3 R314 A1 ZD105 C3
C210 B2 CN407 B1 FDT5 C1 R138 C2 R316 A1 ZD106 C3
C211 A2 D101 C1 FDT6 <1 R139 C3 R402 B1 ZD107 C3
C212 B2 D102 C2 FDT7 C8 R140 C2 R403 B1 ZD201 B2
C213 B3 D103 C1 FDT8 <8 R141 C3 R404 A1
C214 B3 D104 C1 Q201 B3 R142 C3 R407 B1
http://www.wjel.net

Table of Contents

Related product manuals