EasyManua.ls Logo

Philips 55PFL4909 - [Type B]

Philips 55PFL4909
81 pages
Print Icon
To Next Page IconTo Next Page
To Next Page IconTo Next Page
To Previous Page IconTo Previous Page
To Previous Page IconTo Previous Page
Loading...
[TYPE B]
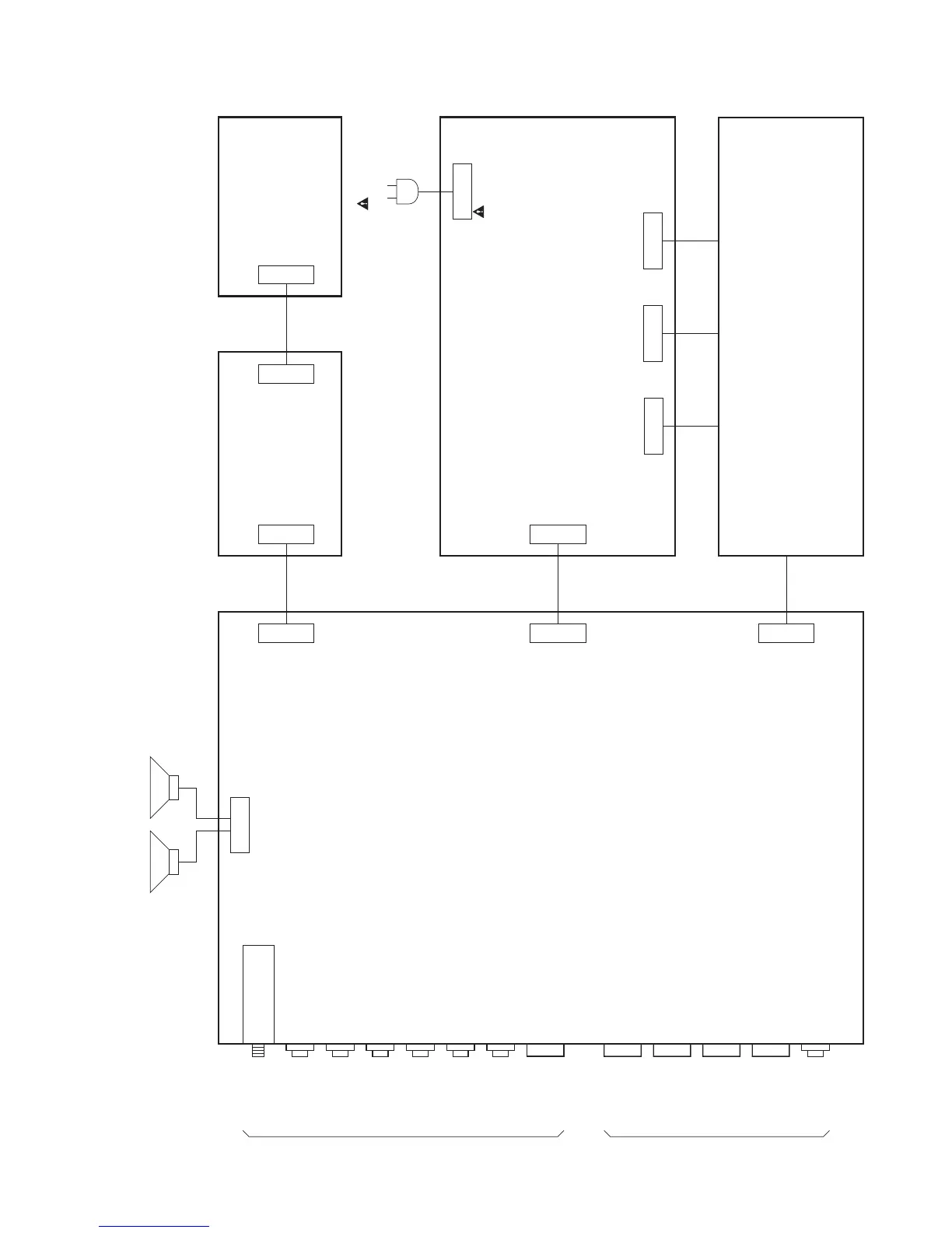
PL14.26BWI
11-2
23
1
CN501
1
23
CN3602
1
51
CN3013
9
1
CN4052
1
9
CN3101
BW
CN601
POWER SUPPLY CBA
IR SENSOR CBA UNIT
LCD PANEL ASSEMBLY
AC CORD
CL3601
CL3013
CL3101
1
2
CN4001
1
2
CN4051
FUNCTION CBA UNIT
CL4001
DIGITAL MAIN CBA UNIT
14
CN3801
SP3801
SPEAKER
L-CH
SP3802
SPEAKER
R-CH
CL3801
TUNER UNIT
COMPONENT
-Y/VIDEO-IN
COMPONENT
-Pb-IN
COMPONENT
-Pr-IN
AUDIO(L)-IN
AUDIO(R)-IN
REAR
DIGITAL
AUDIO-OUT
(COAXIAL)
HDMI-
CONNECTOR-1
HDMI-
CONNECTOR-2
HDMI-
CONNECTOR-3
PC-RGB-IN
USB JACK
SIDE
HEADPHONE
JACK
12
CN1101
14
CN1201
12
CN1401

Table of Contents

Related product manuals