EasyManua.ls Logo

Philips FM24 - Page 103

Philips FM24
122 pages
Print Icon
To Next Page IconTo Next Page
To Next Page IconTo Next Page
To Previous Page IconTo Previous Page
To Previous Page IconTo Previous Page
Loading...
Circuit Descriptions and List of Abbreviations
EN 103FM24 9.
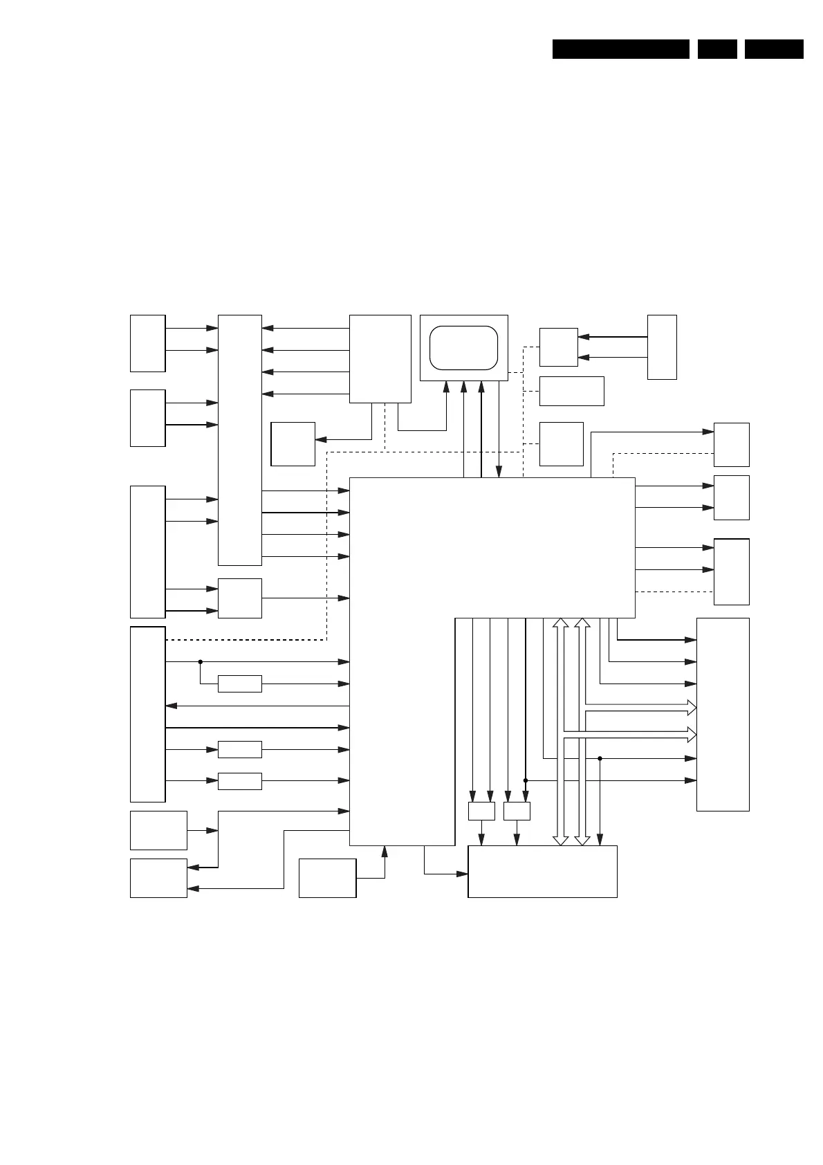
9.4.4 Control (Diagrams SC7, 8 and 9)
Introduction
As a main controller, the so-called ARTISTIC is used, better
known as OTC (On screen display, Teletext and Control). It is
a 8051 (XA) based controller from Philips Semiconductors, the
SAA5801H.
Although the OTC is the main controller, it acts as a 'slave'
when communicating with the PixelWorks IC via the I
2
C-bus 2.
When the monitor is connected to an F21RE Receiver box, the
UART commands from the Receiver box will control the
monitor.
In stand-alone mode, the monitor can be controlled via the
Remote Control or via the RS232C port.
DDC1/2B (Display Data Channel, an I
2
C based protocol) is
implemented with separate NVMs for the two VGA inputs and
the DVI-D input as well.
It is also possible to use the RS232C port for software upload
to the PW Scaler and the OTC. The target for downloading is
controlled via a switch in the RS232C path; the switch itself is
controlled by the OTC.
OTC Processor
Figure 9-16 Control Part
This part describes the Main Control part of the SCAVIO panel
and the interfaces with the software. The control function
consists of the following tasks:
Control of external IOs, like fan speed, temperature,
service and RC5,
UART communication with Receiver box,
RS232 control / communication,
Supports the uploading of new SW into the Flash-ROMs,
Start-up of monitor and initialisation via I
2
C,
Error detection and storing.
Start-up and Shut-down
The POR signal is not generated on the PSU, but on the
SCAVIO board. This is done with a fully integrated ADM810T
POR chip (item 7517), which senses the 3.3 V coming from the
PSU. The sense level is 3.08 V. During power-up as well as
power-down, this chip will make the RESET signal high. During
power-up, this signal will be held 'high' until 240 ms after V
CC
has become stable.
During power-down, the system will be reset as soon as the
V
CC
drops below 3.08 V.
CL16532099_004.eps
170801
RS232
IO
EXPANDER
PCF8574
PDP
TXD
7340 7540
7812
RXD
SELECT-1
SELECT-2
SELECT-3
SELECT-4
MSP-
RESET
POWER
DOWN
TEMP-1
TEMP-2
VGA2
(FLEX)
UART
RS232
SWITCH
SYNC
DETECT
&
RESET
AUDIO
(MSP)
7656
7530
EPLD
ADC
CLOCK
GENERATOR
CLOCK
GENERATOR
8V TEST
5V TEST
VGA2-TXD
VGA2-RXD
VGA1
PSU
VGA1-TXD
VGA1-RXD
VGA1-H
VGA1-V
8V
5V
RC5-IN
RC-CNTL
WP
7506
7510
8V-TEST
RS-232-ACT
SAA5801
OTC
PDP-GO
CPU-GO
IRQ-PDP
7383
I2C-1
UART-ACT
TXD-OTC
RXD-OTC
SYNC-ACT
I2C-1
5V-TEST
RAS
7500
7605
7430
PW-RESET
PW-START
I2C-2
RED-LED
NVM-WE
GREEN-LED
&
CASH
AC(0:9)
AC(0:20)
DC(0:15)
DC(0:15)
ROM-CS
RAM-CS
ROM-OE
RAM-OE
WE
CASL
POWER-OK
STANDBY
RESET
RC
RECEIVER
SERVICE
INPUT
DRAM
PW
LEDS
NVM
OTC
FLASH ROM
SERVICE_IN
RC-OUT
3V3-STBY
I2C-NVM
www.freeservicemanuals.info
31/8/2014
Digitized in Heiloo, Holland

Related product manuals