EasyManua.ls Logo

Philips L01.2E AB - Block Diagrams, Testpoint Overviews, and Waveforms; Block Diagram

Philips L01.2E AB
60 pages
Print Icon
To Next Page IconTo Next Page
To Next Page IconTo Next Page
To Previous Page IconTo Previous Page
To Previous Page IconTo Previous Page
Loading...
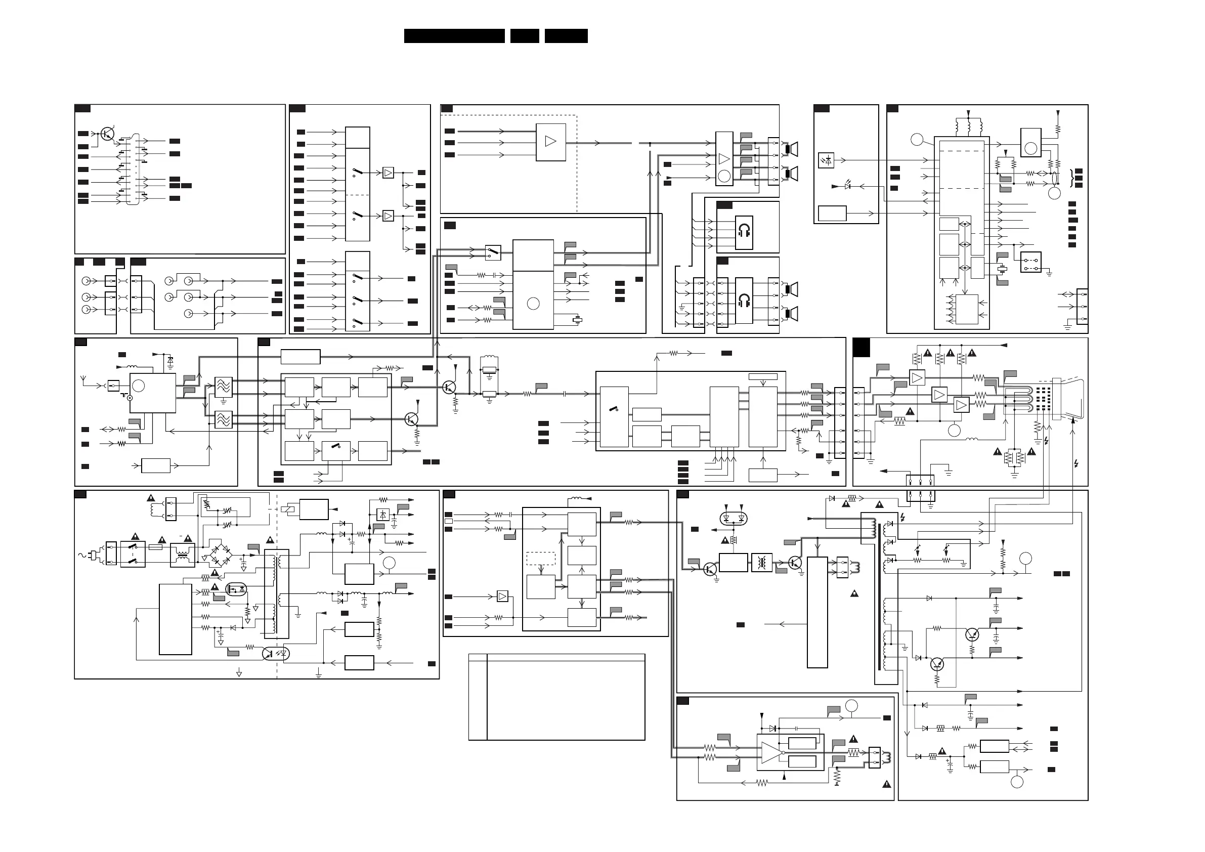
Block Diagrams, Testpoint Overviews, and Waveforms
13L01.2E AB 6.
6. Block Diagrams, Testpoint Overviews, and Waveforms
Block Diagram
POWER SUPPLY
0212
43
2
1
2
3
13
12
10
9
3
5
7
N.C.
6
1
CL 16532008_034.eps
300501
P1
I1
I2
P2
P3
P5
V10
I3
I4
P4
V9
C4
C5
C2
A1
C1
0265
SDA
SCL
0211
150 - 250V
SINGLE RANGE
90 - 276V
FULL RANGE
5201
5001
FM-RADIO
TUNER
+
TV TUNER
3543
5562
3001
3000
3564
2564
3213
3251
3259
EHT INFO
SANDCASTLE
N.C.
H FLYBK
2254
3242
3247
5604
3611
36033604
3625
3624
56035602
2203
3544
3558
7560
2567
7561, 7562
7564
6001
BZX79-C33
6520
2521
A1
SYNCHRONISATION
A6
LINE DEFLECTION
A2
FRAME DEFLECTION
A3
TUNER IF
A4
SIDE AV
OR
E1
OR
E C
FRONT I/O
A12
REAR I/O SCART
A14
AUDIO/VIDEO
SOURCE SWITCHING
A10
A7
A7
VIDEO IF, SOUND IF
A5
A5
A8 A9
A6
A7
A2
A2
Degaussing
Coil
1515
5520
7580
7520
TEA1507
DRAIN
DRIVE R
SENSE
DEMAG
VCC
CONTROL
IC
CTRL
ENERGIZING
CIRCUIT
AC
6503
6502
6501
6500
7801
HEF4052BT
5500 :
5502
0231
MAINS
SWITCH
1000 6, 7 9
1
2
11
FM
VIF_1
VIF_2
SIF1
L1-IN
LF FRONT-IN
SIF2
RF_AGC
1
1
2
3
4
1500
1
1
1
2
2
+t
+t
+t
3
T4E
2503
6564
6562
AUDIO SUPPLY GND
M_AUX
MAIN AUX
POWER DOWN
V
LOTAUX
R
P
R
3
+13V
V
LOTAUX
+5V
VT_SUPPLY
V
A
B
C
P6
5560 5563 5561
6560
6561
95V
MAIN SUPPLY
2561
POWER
DOWN
CIRCUIT
12V
+3.3V
+3.9V
3570
+8V
+8V
V
DEFL
A7
STDBY_CON
HOT GROUND COLD GROUND
7540, 6540
REFERENCE
CIRCUIT
7541, 7542
STANDBY
CIRCUIT
7515
TCET1103
3527
3525
3523
3526
7521
STP7NB60FP
8
6
5
3522
3531
3519
4
1
D
S
G
VT
AGC
5
SEL-IF-LL-M-TRAP
A7
A14
A12
A2
A5 A6
A2
A2
4
IF
FM
0253
3
10
18
38
49
7206
3230
3208
7201
MONO/AM_
MONO_SOUND
33
48
19
22
23
28 29
24
7001
7002
FILTER
SELECTION
FMR
QSS_AM_DEM_OUT
AUDIO CARRIER
FILTERS
7200-A
TDA95XX
1002
1003
1004
VIDEO
IF
AGC
VIDEO
PLL
DEMOD.
VIDEO
AMPLIFIER
SOUND
FM-DEMOD.
DE-EMPH.
AUDIO
SWITCH
SOUND
AMPL.
+ AVL
QSS
SOUND
IF + AGC
QSS MIXER
AM DEMOD.
S2
L1
V5
L6
L7
L8
L5
L4
S1
11
30 H DRIVE
V DRIVE+
V DRIVE-
N.C.
H
V
9
17
31
34
7200-D
TDA95XX
H-DRIVE
2nd LOOP
H-SHIFT
TXT/OSD
DISPLAY
16
H/V SYNC
SEPARATOR
H-OSC
+PLL
40
47
1200
5.5MHz
1201
6MHz
A14
A14
A14
C-IN
45
A10
SY-CVBS-IN
44
A14
A10
A10
A10
CVBS1-IN
42
EW
+
GEOMETRY
VIDEO IDENT
7200-C
TDA95XX
I/O
SWITCHING
Y-DELAY
EHT INFO
PROC.
EHT INFO
R-Y
B-Y
U
V
R
G
B
R
G
B
56
57
58
55
Y
VIDEO
FILTERS
RGB
MATRIX
RGB
INSERT
BLACK
STRETCH
WHITE
STRETCH
RGB
CONTROL
OSD TEXT
INSERT
BLUE
STRETCH
WHITE-P.
ADJ
VIDEO
IDENT
L
0251
3
V
L
R
1
0219
6
3
1
MONO
V
L
R
CVBS-FRONT-IN
L-FRONT-IN
R-FRONT-IN
A
B
C
STEREO
A7
SEL_MAIN_FRNT_RR
SEL_MAIN_FRNT_RR
9
A9
A7
A9
A14
SC2-CTRL
10
A12
L-FRONT-IN
SC1-LIN
SC1-R IN
L1-OUT
1
A14
L1-IN
7803
7804
5
A14
L2-IN
2
A9
SC1-LOUT
4
A12
R-FRONT-IN
12
A14
R1-IN
14
3
13
A14
R2-IN
15
A9
SC1-R-OUT
11
SWITCH
LOGIC
7802
HEF4053BT
9
A5
CVBS-FRONT-IN
5
A14
Y-CVBS-IN
SY-CVBS-IN
3
4
SWITCH
LOGIC
A9
A14
A14
A1
A4
A4
A7
A9
A12
A14
R-OUT
2
A9
SC1-R-OUT
R2-OUT
1
15
A10
A14
L-OUT
12
A9
SC1-1-OUT
L2-OUT
13
14
A10
AUDIO AMPLIFIER
A8
HEADPHONE
A12
FRONT CONTROL
A12
CONTROL
A7
7941:7943
A7
BASS-PANORAMA
MAIN-OUT-L
A5
MONO/AM-MONO-SOUND
MONO SETS ONLY
A7
TREBLE-BUZZER-HOSP-APP
+3.3V
36063607
+3.9V
+3.3V
A10
A9
A8
A7
A11
A6
3833
3834 2847
A10
A10
NICAM + 2CS (STEREO) DECODER
A9
7831
MSP34X5G
QSS-AM-DEM-OUT
FMR
47
A5
MONO/AM-MONO-SOUND
7834
7835
6692
TSOP1836
MAIN-OUT-L
44
A10
SC1-L IN
41
A10
SC1-R IN
42
A7
SDA
8
A7
SCL
7
25
4
SC2-CTRL
A10
30
SC1-R OUT
SC1-L OUT 2X
A5
A7
A1
MONO/AM-MONO-SOUND
31
MAIN-OUT-R
24
51
52
DEMODULATOR
NICAM, 2CS,
AM, FM
3832
ERR
10
ERR
7
1831
18M432
63
1660
12MHz
H
V
64
7901 AN7522N (STEREO)
7902 AN7523N (MONO)
62 L+
L
8
9
VOLUME MUTE
1
MAINAUX
7209, 7210
FM RADIO
PRE-AMPLIFIER
0246
WITHOUT
SIDE AV
+HP
A2
4L-
A3
10 R-
A4
12 R+
R
L
R
4
3
2
1
0255
4
3
2
1
L+
L-
R-
R+
L+
L-
R-
R+
HEADPHONE
E1
L+
L-
R-
R+
L+
L-
R-
R+
SERVICE
COMPAIR
CONNECTION
1
2
3
0254
1
2
3
4
5
0246
1
2
3
4
5
OR
IR IR
STATUS1
STATUS2
LED
+3.3V
6691
LOCAL
KEYBOARD
KEYBOARD-
PROTN
KEYBOARD-
_PROTN
7200-B
TDA95XX
I/O
VST
PWM-
DAC
ROM
RAM
CPU
OSD
TELETEXT
DISPLAY
IIC
BUS
TRANSCEIVER
I/O
PORTS
67
68 7
72
71
3
8
6
5
66 61 59
1
2
POWER DOWN
69
LED
5
80
7602
M24C08
EEPROM
(NVM)
SDA
SCL
SEL-IF-LL-M-TRAP
A10
70
SEL-MAIN-FRONT-RR
A1
6
STANDBY-CON
A8
78
BASS PANORAMA
A8
77
TREBLE-BUZZER-HOSP-APP
A8
73
VOLUME/MUTE
SDA
SCL
5241
+8V
V
LOTAUX
+13V
V
LOTAUX
+13V
V
DEF
M_AUX
R-V-IN
0243 0245
9641
9631
SDM
SDA
0217
SCL
1/10
PAGES
MEMORY
TELE
TEXT
CVBS
SYNC
R
G
B
BL
COR
PAL/NTSC
SECAM
DECODER
BASE
BAND
DELAY
EHT INFO
POWER-DOWN
A2
A1
A6
A1
EHT o
A2
V-DRIVE
+
GEOMETRY
3244
S3
L2
3249
S4
15
3250
S5
MAIN SUPPLY
95V
6406
BAV70
7401
HFLYBK
7402
BUT11APX
3404
3431
3425
7403
7404
DRIVER
STAGE
5444
LINE
OUTPUT
CIRCUIT
L3
3220
3201
3202
3203
3204
3235
0221
1
2
HOR.
DEFL.
COIL
0222
1
2
VERT.
DEFL.
COIL
5445
6409
3416
VIDEOSUPPLY
2
7
1
FOCUS VG2
EHT
0220
0244
321
8
5
EHT INFO
A3
A4
V
GUARD
A5
BLK-IN
A6
A2
EHT o
4
N.C.
3
10
9
6
6410
6405
6423
V
LOTAUX
+5V
V
LOTAUX
+13V
+8V
FILAMENT
-13V
VT_SUPPLY
3411
3428 3427
2417
3421
3413
7406, 7409
7405
3412
6402
6413
2419
PROT
CIRCUIT
PROT
CIRCUIT
3423
7408
3422
7407
2410
A2
BLK-IN
BLK
V-OUT 2X
A14
3214
V1-OUT
A14
A14
A14
G-Y-IN
B-U-IN
FBL-1
51 52 53 50 54
7204
V6
V7
V9
1
2
3
4
5
6
1
2
3
4
5
6
OSD
OR
OR
INPUT
SWITCHING
ERR
4
ERR
7
TV
FM
ERR
9
ERR
5
ERR
11
ERR
6
Error Description
0 No error
1 X-Ray / over voltage protection (USA only)
2 High beam (BCI) protection
3 Vertical guard protection
4 I2C error while communicating with the sound processor
5 Power ON reset (POR bit) 3.3V protection / +8V protection
6 General I2C error
7 Power Down (over current) protection
8 EW protection (Large Screen only)
9 I2C error EEPROM error
10 I2C error PLL tuner
11 Black current loop instability protection
ERROR CODE LIST
+
-
3474
3475
3479
F1
F2
F5
7471
TDA9302H
-13V
VLOT AUX +13V
3471
3471
6471
2473
7
2
4
6
3
1
OP. AMP
5
VDRIVE+
VDRIVE-
F3
F4
V_GUARD
FLYBACK
GENERATOR
THERMAL
PROTECTION
CRT
B
R
G
B
3347
5341
3337
3327
3317
CRT
3350
3348
3349
25kV
3316 3326
3317
3336
V FOCUS
EHT
V
G
2
V14
V15
+160V
+160V
V16
V12
V11
V13
7311:
7313
-
7321:
7323
-
7331:
7333
-
BLKCURINFO
FILAMENT
2422
A14
A10
L-OUT
R1-OUT
A14
A10
R-OUT
A13
3504
3503
7241
R
7
5
3
G
B
ERR
2
ERR
2
ERR
3
A10
A10
A10
A5
A5
A10 A5
A7
A5
SCART 1
7101
CVBS1-IN
V1-OUT
V-OUT
R-Y-IN
A5
L1 - OUT
A5
B-U-IN
A5
G-Y-IN
R1 - OUT
STATUS 1
A5
FBL-1
L1-IN
R1-IN
1
2
20
21

Related product manuals